【海口】千江悦【售楼处】2025首页网站-【海口】千江悦欢迎您@【海口】千江悦最新楼盘详情-售楼中心-在售户型-备案价@营销中心400电话
扫描到手机,新闻随时看
扫一扫,用手机看文章
更加方便分享给朋友
【海口】千江悦
🌈售楼处电话☎️400-033-1899转接6666【售楼中心】【已认证】
🌈营销中心电话☎️400-033-1899转接6666【营销中心】【已认证】
🌈开发商营销中心-----欢迎来电预约尊享折扣-----匠心钜制恭迎品鉴
千江悦 华策分享版
📍项目位置:海口江东新区南渡江东岸椰海大道南侧
🏛开发商:海南富德房地产开发有限公司(港资企业)
物业公司:自持物业
项目占地面积:964亩
项目建筑面积:约270820㎡(其中住宅约224201㎡)
总户数:2030户
🚖 车位:1:1.6地上车位人车分流(3226)
⭐开盘时间:2022年10月24日
⭐交房时间:2024年12年31日
在售的产品产权:70
总栋数:24栋
楼间距:40米左右
朝向:东西向
建筑形态:板楼
🏙容积率:1.5
绿地率:46%
物业费:4.8元
水电费:民水民电
☸ 公摊:18
在售:1#、2#、3#、6#、22#、23#
在售产品:
(一)住宅
面积:98-125㎡房
首付:55万
总高:12-15层
单价:18000-19800,精装
交房时间:2024年年底
付款方式:一次性,按揭
(二)商铺
物业费:3元
水电费:商水商电
在售:清悦畔临街商铺
面积:110-805(剩余10套左右)
套均:250万-2576万
总高:底商(一楼和二楼)
单价:一楼:3.2万左右,二楼2.2万左右,毛坯
交房时间:现铺
付款方式:一次性,按揭
必买的理由
1,《千江悦·东汇》为70年城镇住宅用地,房子属于不动产是永久产权,土地到期后自动续期,民法典第359条已明确规定。
2,位置。项目位于海南自贸港最为核心的江东新区综合服务组团CAZ。(城市是要发展的,我们一定要顺势而为)
3,医疗。两所三甲医院,(省中医院已经建好,市妇幼保健院正在建设中预计明年开业)
4,教育。周边省一级,市直属学校环伺,(东岸小学)
5,自然生态资源优越海南母亲河南渡江穿流而过以及江边带状公园,居住极为舒适。
6,项目容积率1.5。(个人觉得容积率是您买房应该最为看重的一个规划指标)
7,小高层。总高12-15层居住非常的舒适。
8,户型使用率最低95%以上,个别户型使用率达到100%。(一样的建筑面积为什么不买个户型使用率高的小区呢?毕竟现在房价也不便宜,多送您10多个平米就相当于多送您十几二十万。)
9,绿地率46%。更多的绿化空间,更舒适居住体验
10,车位充足。住户2030户,车位3226个。
11,小区配套丰富(篮球场,网球场,迷你足球场,滑板公园,宠物公园,森林探险,一楼架空层泛会所,小区业主双会所,成人儿童双游泳池.....)
12,瓷砖外立面。成本更高,更显高档,历久弥新
13,商业。小区自带数万平米商业,满足业主日常生活需求。
小区配套:双业主会所、架空层泛会所、户外泳池、人工湖水系、篮球场、羽毛球场、小型足球场、户外影院、围合式慢跑道、滑板公园、儿童游乐园等
🏛教育:海口东岸小学(市直属)、北师大(市直属省一级)、海师大(省一级)枫叶国际
医院:海南省中医院(三甲)、海口市妇幼保健院(三甲)
🏞环境:南渡江带状公园
*项目区位图
*项目鸟瞰图
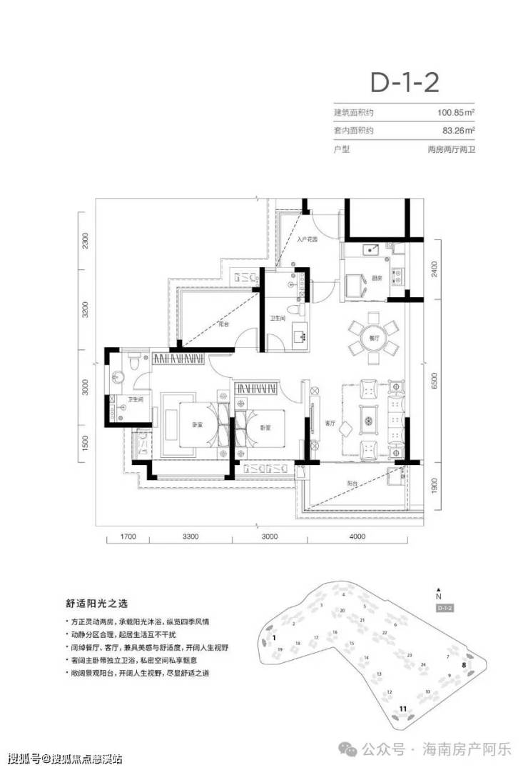
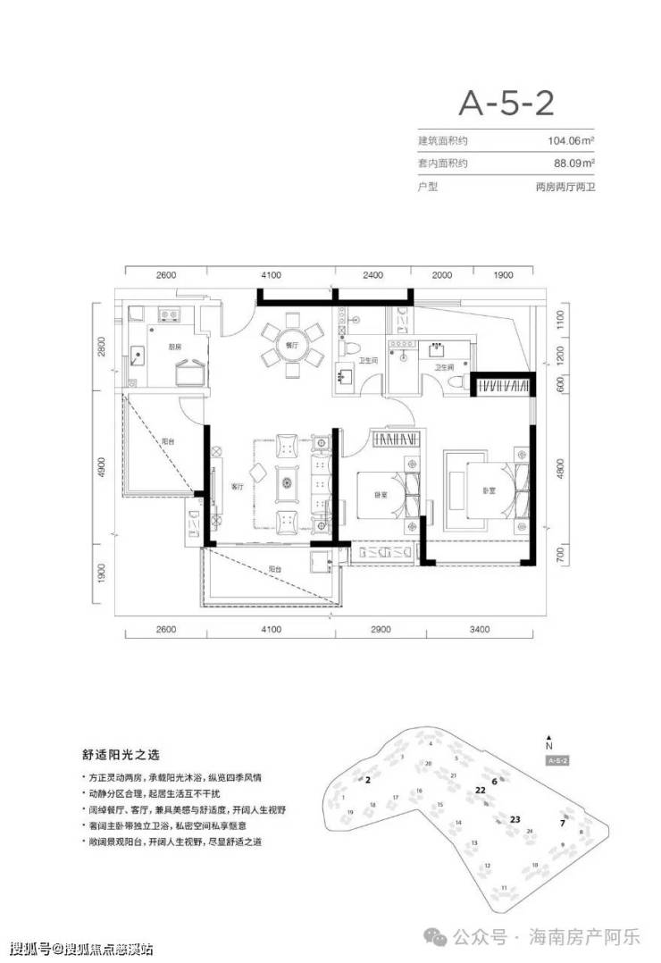
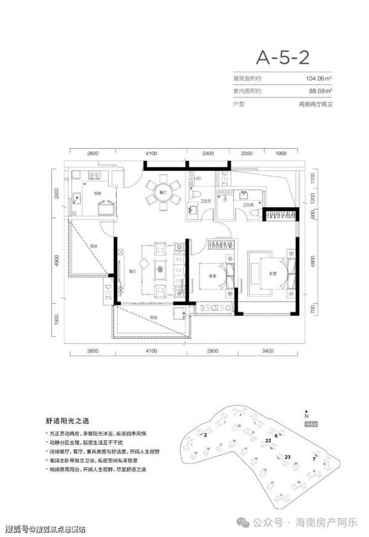
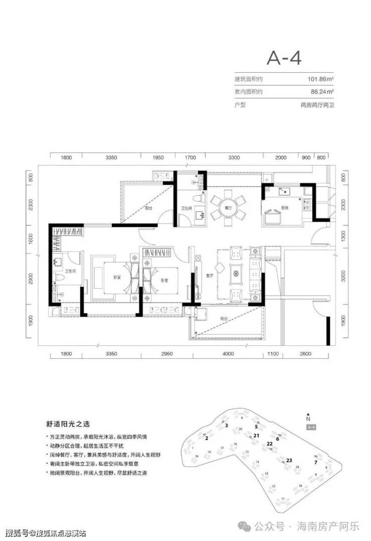
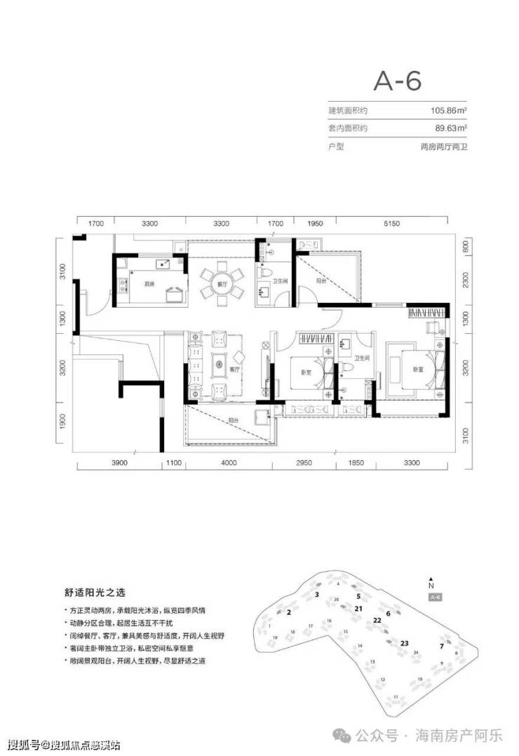
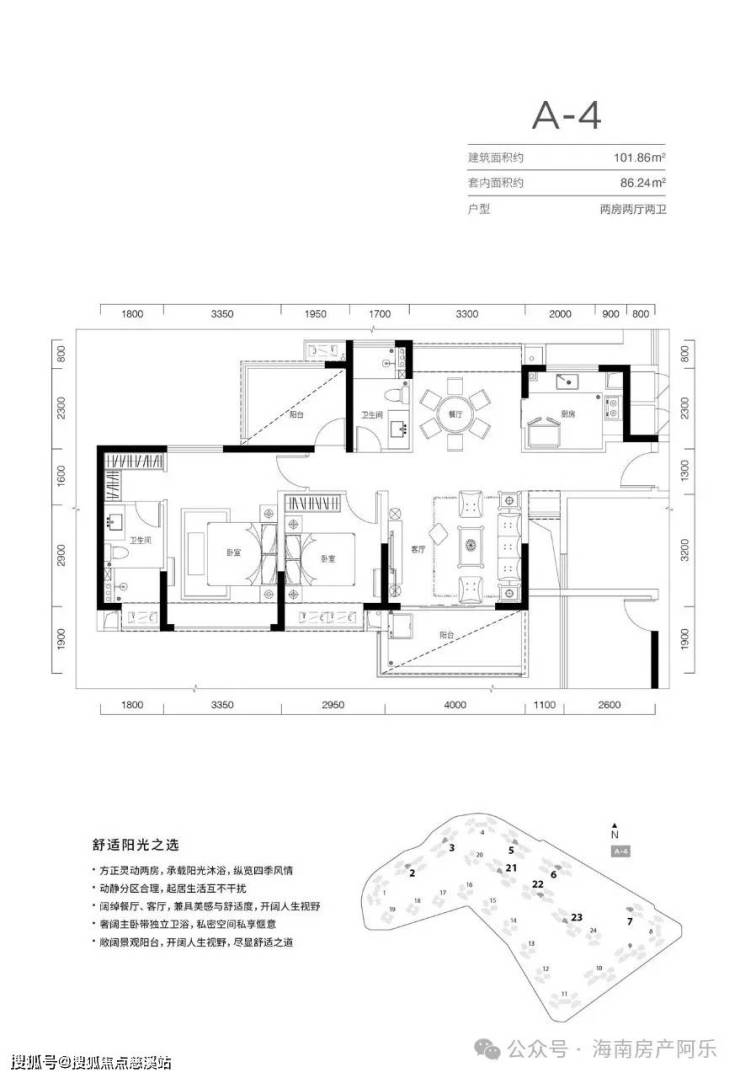
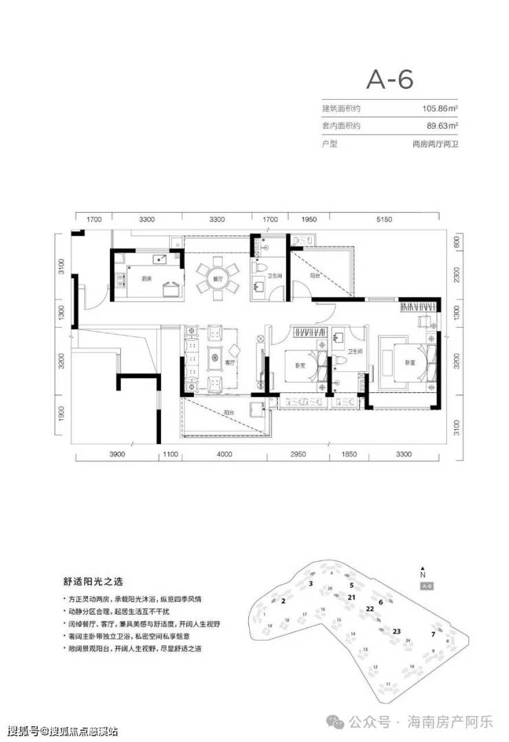
户型图(建筑面积99㎡-105㎡)
2+1房
阳台🉑改造一间房
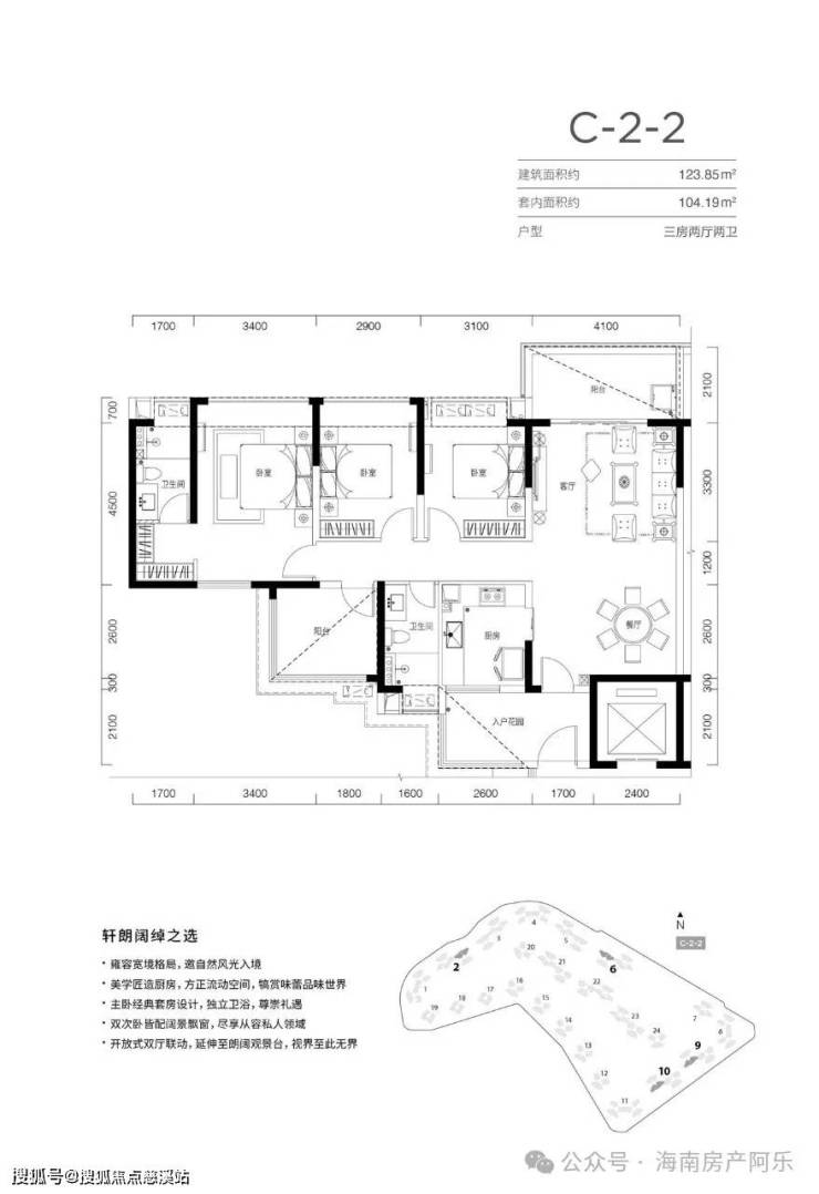
——————————————————————————户型图(约119㎡-125㎡)3+1房
【海口】千江悦
🌈售楼处电话☎️400-033-1899转接6666【售楼中心】【已认证】
🌈营销中心电话☎️400-033-1899转接6666【营销中心】【已认证】
🌈开发商营销中心-----欢迎来电预约尊享折扣-----匠心钜制恭迎品鉴
2025年最新版!常州购房政策全整理,涉及贷款、税费、补贴、落户
一、常州买房、卖房政策
限购政策:
无限购政策。
限售政策:
取消2年限售,商品住房自取得不动产权证后即可上市交易。
契税(个人购买住宅):
个人购买家庭唯一住房和家庭第二套住房,只要面积不超过140平方米的,统一按1%的税率缴纳契税。
超过140㎡的住房,首套房按1.5%契税缴纳,二套房按2%契税缴纳。
增值税及附加(个人出售住宅):
对个人销售已购买2年以上(含2年)住房一律免征增值税,原针对北京、上海、广州、深圳4个城市个人销售已购买2年以上(含2年)非普通住房征收增值税的规定相应停止执行。
个人所得税:
按计税价格的1%或者差额的20%收取;产权证或契税发票填发日期满5年且是家庭唯一住房的免征。
二、常州贷款政策
商业贷款:
首套房首付比例:1.5成
二套房首付比例:1.5成
三套房:在常州或其他城市有两套及以上的住房贷款没还清,在常州买房只能一次性付款,因为目前常州三套及以上停贷。
利率方面,目前常州首套二套利率统一,均为3.0-3.05%左右,根据银行以及客户资质有所不同。
但需要注意的是:
1、常州认贷不认房,拥有多套房产但贷款已结清,同样为首套房;
2、目前常州各银行执行标准尚未完全统一,需根据各银行的实际情况判定;
3、不同银行利率和首付标准仅供参考,具体需结合客户实际资质来判定;
公积金贷款利率:
自2024年5月18日起,下调个人住房公积金贷款利率0.25个百分点。
5年以下(含5年)和5年以上首套个人住房公积金贷款利率分别调整为2.35%和2.85%,
5年以下(含5年)和5年以上第二套个人住房公积金贷款利率分别调整为不低于2.775%和3.325%。
2024年5月18日前已发放的个人住房公积金贷款暂按原利率执行,从2025年1月1日起,按新的利率标准执行。
公积金贷款计算方式:
常州住房公积金是按照“月均账户余额×配贷系数”方式计算贷款额度。连续缴存满6个月即可申请贷款。
月均账户余额为符合条件的贷款申请人(包括主借款人和共同借款人)贷款申请时往前推算60个月的个人住房公积金账户月均余额,不满60个月的按60个月计算。贷款申请人在我市无住房公积金贷款(含公转商补息贷款)记录的,配贷系数为60;有住房公积金贷款(含公转商补息贷款)记录的,配贷系数为30。
在异地缴存住房公积金的,住房公积金贷款额度按照“贷款申请时住房公积金账户余额*6倍”方式计算。
公积金贷款额度:
根据最新政策,常州公积金贷款目前普通单孩家庭个人最高贷款额度为80万,家庭最高贷款额度为120万。
另外常州目前已对多孩家庭、各类人才、现役军人、退役军人等群体加大住房公积金贷款额度支持力度,多孩家庭最高贷款额度150万,人才最高额度180万。
注:以上政策自2023年11月1日起施行,有效期至2024年12月31日
“商转公”业务恢复:
2021年10月18日起,常州公积金中心将暂停商转公贷款业务,集中住房公积金资金优先保障尚未获得贷款的刚需购房群体。
2022年8月30日,常州住房公积金管理中心官方回复,恢复商转公贷款业务,最在9月正式实施。
目前,常州商转公、商转组合贷业务均可办理,商转公贷款方式为“以贷还贷”和“先还后贷”。
公积金贷款期限:
贷款年限加主借款人实际年龄不得超过65周岁,但贷款期限最长不超过30年且不得超过土地剩余使用年限。
另外,常州开通异地缴存职工住房公积金贷款政策,全国各地的买房人都可以在常州用公积金贷款买房了。
公积金贷款对象:
在常州市行政区域以外省市缴存住房公积金,在常州市购买自住住房,经缴存地住房公积金管理中心证明,且满足我市住房公积金贷款条件,向我市住房公积金管理中心申请办理住房公积金贷款的职工。
公积金申请条件:
1、借款申请人申请贷款时住房公积金汇缴正常,从申请之日往前推算个人已连续缴存住房公积金6个月。
2、能提供本人购买商品住房、二手住房、经济适用住房或建造、大修自住住房等有效证明材料。
3、有稳定的收入,信用良好,具有按时偿还贷款本息的能力。
4、依照中心认可的担保方式办理担保。
5、申请人在异地没有或仅有一次住房公积金贷款记录且已还清。
6、符合中心规定的其他条件。
声明:本文由入驻焦点开放平台的作者撰写,除焦点官方账号外,观点仅代表作者本人,不代表焦点立场。
