【三亚】华亚三亚云玺丨 营销中心发布丨华亚三亚云玺2025楼盘详情-户型-价格-电话-交房时间-配套-电话-交房时间
扫描到手机,新闻随时看
扫一扫,用手机看文章
更加方便分享给朋友
华亚三亚云玺
🔱 售楼处电话【已认证】✔️:400-179-0800 ✅
🔱营销中心电话【已认证】✔️:400-179-0800✅
💌温馨提示:本项目采用预约制,前来营销中心请提前拨打400热线电话预约,感谢您的配合!
华亚·云玺位于三亚总部经济月川片区,享醇熟城市配套与自贸时代红利,以现代东方美学勾勒,打造富有“典雅、闲适、艺术”等多重标签,打造城市低密住宅标杆。华亚云玺是不错的选择。

一、项目区位
华亚·云玺项目位于三亚总部经济区内,属于月川片区,区域集商业设施、商务办公、商务设施配套以及娱乐康体等一体,将建设商业文化步行街和综合商务区。

二、项目配套
项目位于三亚,兼享自然静谧与城市繁华的栖居板块,享醇熟城市配套,汇聚政务中心、文化体育、教育医疗以及商务办公等多元功能,缤纷生活随处可遇。

商务:项目所在片区是商务集群;在马太效应下,周边分布着各大商业综合体,涵盖餐饮和精品超市、健身会所、恒温泳池、影院、私人商务会所、顶级企业会所、天空酒廊以及约17 万㎡的滨水商业步行街等。
度假:项目周边度假配套,近享千古情大剧院、美丽之冠大剧院、红色娘子军演绎等缤纷休闲配。直线抵达海棠湾亚特兰蒂斯与保利瑰丽酒店,度假缤纷随时悦享。

娱乐:周边有三亚网红商圈青春颂广场,同时邻近蓝海购物广场、阳光金融广场、红树林、步行街等商圈;全方位满足日常生活衣、食、住、行、游、购、娱全纬度生活。

周边:项目紧临月川小学、三亚市一中、市五中、第七小学、三亚实验中学、各大精品幼儿园;月川小学在今年的1月份被教育部命名全国青少年校园足球特色学校。
公园:项目所在片区自然生态环境优越,目前已建成的公园有:金鸡岭桥头公园、临春岭公园、月川中轴带状公园、东岸湿地公园,呼吸也是一种颐养。
生活:周边有丹州市场、三亚市第一、第二、第三农贸市场以及鸿港市场内均可购买到新鲜的瓜果蔬菜,海鲜等,种类丰富,能满足您及家人日常生活需求。

医疗:项目周边医院配套完善,可快速享受医疗健康服务。
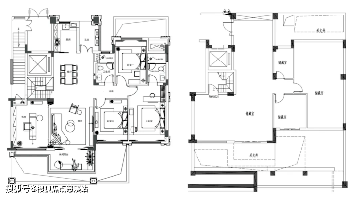
三、户型鉴赏
南北通透,5层低密洋房。一梯一户,墅质体验,将人居升华为一种享受。南北双阳台、超大横厅设计,室内动静分区合理,高拓展空间,以人居舒适度甄别生活品质。
建面125-132㎡ 三房两厅两卫 (2+1):

建面135-139㎡ 四房两厅两卫(3+1):

低密洋房:纯板式建筑,以阔绰低密媲美墅质享受;
南北阳台:户户南北双景观平台,通透性绝佳;
一梯一户:一梯一户舒适空间,保障业主私密性;
奢阔空间:大面宽灵动横厅设计,动静分离,奢阔主卧套房;
拓展空间:一楼拓展地下室,顶楼拓展露台。
华亚三亚云玺
🔱 售楼处电话【已认证】✔️:400-179-0800 ✅
🔱营销中心电话【已认证】✔️:400-179-0800✅
💌温馨提示:本项目采用预约制,前来营销中心请提前拨打400热线电话预约,感谢您的配合!
声明:本文由入驻焦点开放平台的作者撰写,除焦点官方账号外,观点仅代表作者本人,不代表焦点立场。
