天津金茂泮湖满庭(售楼处)电话→金茂泮湖满庭售楼中心电话→金茂泮湖满庭楼盘百科→首页网站→楼盘百科→首页网站天津金茂泮湖满庭→24小时热线电话
扫描到手机,新闻随时看
扫一扫,用手机看文章
更加方便分享给朋友
⭐天津金茂泮湖满庭⭐⭐
⭐天津金茂泮湖满庭售楼处电话售楼处电话☎400-033-1899转6789【楼盘认证】⭐⭐
⭐天津金茂泮湖满庭开发商电话☎:400-033-1899转6789【售楼处已认证】⭐⭐
⭐天津金茂泮湖满庭营销中心电话☎:400-033-1899转6789【售楼处已认证】⭐⭐
⭐天津金茂泮湖满庭售楼中心电话☎:400-033-1899转6789【售楼处已认证】⭐⭐
⭐天津金茂泮湖满庭销售中心电话☎:400-033-1899转6789【售楼处已认证】⭐⭐
✅本项目暂不接受临时到访,过来参观样板房请记得提前来电预约!⭐⭐
✅为您安排楼盘现场销售全程接待并讲解,给您更贴心的看房体验!⭐⭐

01
金茂·泮湖满庭是T字型地块,T字两边是老社区。
虽然外部有泮湖公园这样的景观资源,北侧靠水;但内部的T字形态其实是有劣势的,金茂尽量扭转这方面的劣势,如在宣传中说是T台秀。
因为T字形态是长和扁,实际设计过程中很难在楼与楼之间做出大组团,所以金茂通过高差递减、北高南低来化解这一尴尬,形成有山地感的立体景观格局。
主入口开在了北侧,一路之隔就是规划的泮湖公园,拥有约1.6万㎡的湖泊。
进入大门后是归家大堂+业主会所,会所预设功能较齐全,涵盖了运动、健身、会客、甚至私宴厅。布局如下:

02
整个小区共规划556户,小高层+洋房,带精装修;
北侧一排4栋18F到顶的小高层,其中中户100㎡和边户120㎡;
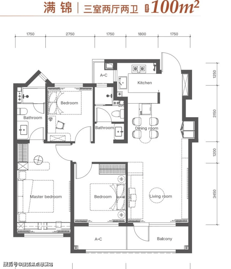
其他11栋楼是7-11F到顶洋房,产品104-143㎡。

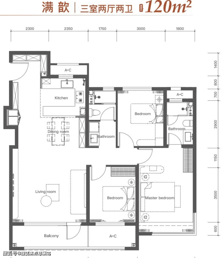
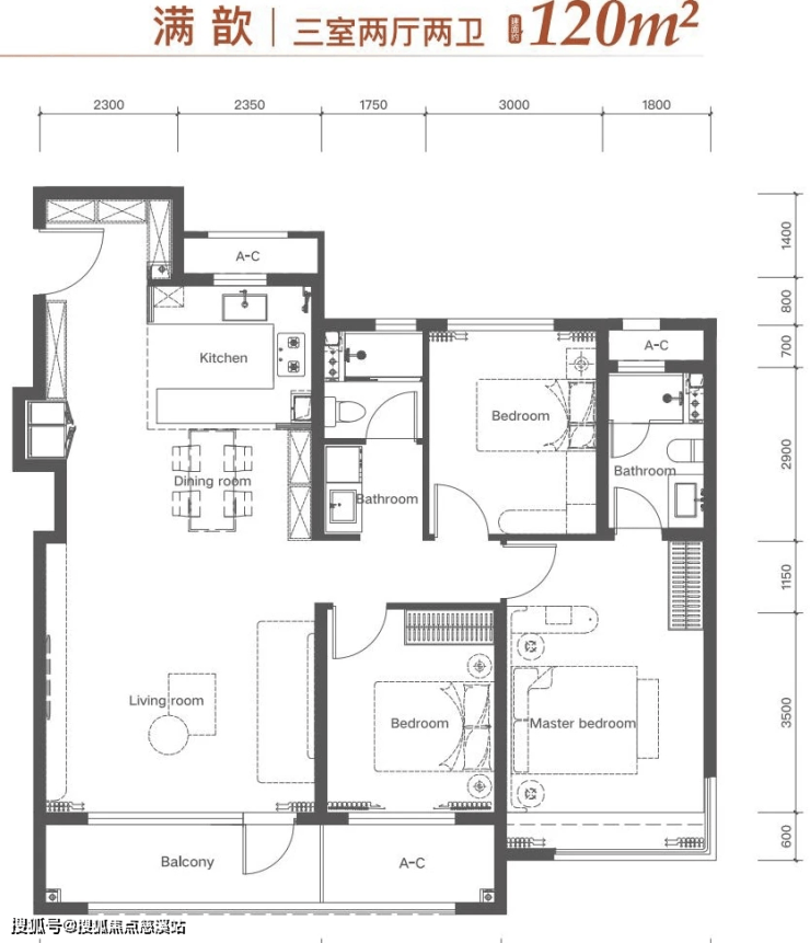
03
小高层100和120㎡ 三室两厅两卫
只讲下创新点的地方,小高层户型中户和边户S墙体设计,客厅预留了放置冰箱的空间;
入户厨房位置对客厅的墙体可以做成中式岛台,与客厅联动;
客厅延伸出去的阳台相当于连接了次卧的设备间赠送,演变成一个大阳台,像100㎡户型阳台就可以做到6.6米;120㎡就是7.7米。


⭐天津金茂泮湖满庭营销中心电话☎:400-033-1899转6789【售楼处已认证】⭐⭐
⭐天津金茂泮湖满庭售楼中心电话☎:400-033-1899转6789【售楼处已认证】⭐⭐
⭐天津金茂泮湖满庭销售中心电话☎:400-033-1899转6789【售楼处已认证】⭐⭐
声明:本文由入驻焦点开放平台的作者撰写,除焦点官方账号外,观点仅代表作者本人,不代表焦点立场。
