海棠悦府逸境(售楼处) 首页-海棠悦府逸境营销售中心-环境-户型-价格-地址-楼盘详情-配套-电话-交房时间-配套-电话-交房时间
扫描到手机,新闻随时看
扫一扫,用手机看文章
更加方便分享给朋友
☎️三亚 海棠悦府逸境售楼处电话:400-133-5355【售楼中心】
💌 海棠悦府逸境网上售楼中心〢安全通话隐藏真实号码〢一对一热情服务〢
✅售户型图丨项目介绍丨最新房源丨周边配套丨详细解答〢营销中心✅


户型设计:定制全家庭居住理想
143㎡户型:温馨三口之家优选
A2 户型(143㎡ 两室两厅两卫)
核心亮点
:约 8m 奢阔横厅,打造尊崇社交领地;奢适套卧设计,保障起居优雅;约 11.6m 宽幕阳台,四季赏景无遮挡;U 型灵感餐厨,纵享烹饪乐趣。
A1 户型(143㎡ 2+1 室两厅两卫)
核心亮点
:约 9m 宽境横厅,解锁百变生活场景;环幕阳台设计,视野所及皆风光;奢适套卧带独立衣帽间,私享雅致时光;中西双厨配置,拓展餐厨功能体验。


191㎡ B2 户型:四室两厅三卫,优化居住体验
核心亮点
:灵动入户设计,空间布局自由;宽幕阳台连接自然,与景致为友;双套房设计,保障家庭成员隐私,互不干扰;方厅与餐厨相连,三餐时光皆伴美景。


3. 255㎡ C2 户型:四室两厅三卫,精妙空间利用
核心亮点
:花园入户设计,莳花弄草享闲情;约 9.4m 宽景横厅,聚会待客更从容;巨幕阳台拓展观景视野与生活边界;奢适套卧高定配置,彰显尊崇生活。

4. 300㎡+ 大平层:高端家庭的奢居之选
D1 户型(319㎡ 四室两厅四卫)
核心亮点
:双入户空间,私密感与尊崇感升级;花园式套房带花园阳台,揽景自然;约 9.2m 巨幕宽厅,欢聚会客尽显气派;270° 全景舱式阳台,俯瞰环幕胜景。
D2 户型(343㎡ 四室两厅四卫)
核心亮点
:约 9.2m 巨幕宽厅,兼具观景与社交功能;星空阳台采用海洋流线设计,引自然入境;三幕视野布局,风景均衡分布;奢适主卧整合多元功能,起居从容。



二期户型:适配更多居住需求
5. 二期户型:适配更多居住需求
115A 户型(114㎡ 三室两厅两卫)
:空间布局紧凑实用,合用前室、设备平台设计提升居住便利性,主卧与次卧分区合理,满足三口之家基础需求。
115B 户型(115㎡ 三室两厅两卫)
:户型方正,玄关过渡自然,客厅与卧室动线清晰,兼顾居住舒适度与空间利用率
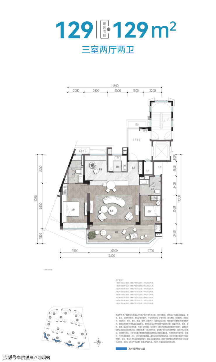
129 户型(129㎡ 三室两厅两卫)
:带花园入户,合用前室与设备平台配置完善,主卧空间阔绰,适合对居住品质有一定要求的家庭。

139 户型(139㎡ 三室两厅两卫)
:户型尺度升级,客厅与卧室空间更开阔,合用前室保障私密性,满足改善型家庭需求。

☎️三亚 海棠悦府逸境售楼处电话:400-133-5355【售楼中心】
💌 海棠悦府逸境网上售楼中心〢安全通话隐藏真实号码〢一对一热情服务〢
✅售户型图丨项目介绍丨最新房源丨周边配套丨详细解答〢营销中心✅
声明:本文由入驻焦点开放平台的作者撰写,除焦点官方账号外,观点仅代表作者本人,不代表焦点立场。
