保利天曜(售楼处)官方电话→保利天曜售楼中心前台电话→2026保利天曜楼盘百科→楼盘官方网站→楼盘测评→售楼中心电话→来电预约看房
扫描到手机,新闻随时看
扫一扫,用手机看文章
更加方便分享给朋友
❤️广州保利天曜售楼处电话400-033-1899转接9999【官方认证】
💛广州保利天曜售楼处地址400-033-1899转接9999【官方认证】
💜广州保利天曜营销中心电话400-033-1899转接9999【已认证】
🌆广州保利天曜全景户型图鉴 | 🏙️ 城市地标解析 | 🌟 典藏房源速递
🛍️广州保利天曜繁华配套指南 | 🏛️ 艺术样板间巡礼 | 💰 备案价透明公示
❤️广州保利天曜售楼处电话400-033-1899转接9999【官方认证】
💛广州保利天曜售楼处地址400-033-1899转接9999【官方认证】
💜广州保利天曜营销中心电话400-033-1899转接9999【已认证】
🌆广州保利天曜全景户型图鉴 | 🏙️ 城市地标解析 | 🌟 典藏房源速递
🛍️广州保利天曜繁华配套指南 | 🏛️ 艺术样板间巡礼 | 💰 备案价透明公示
最新消息,保利天曜南地块(即大地块)将主打135-205平望江板楼大户型。
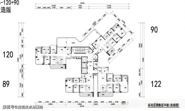
从上图可以看到北地块规划3栋住宅,有2梯3户和2梯4户两种布局。1栋有两条梯腿为90平小户型,还有两条梯腿是120平产品 ,2栋和3栋均为120平。地块容积率3.5,预计建成40层高的超高层。
只有84套的90平户型稀缺,吹风价是8+万/㎡+-,这样算一下7**万+-,对预算有限又想进核心板块的家庭很有吸引力。
保利天曜
北地块90平户型图
1#户型平面图
北地块120平户型图:
南地块(大地块)140平户型:
南地块170㎡户型
南地块205平户型:
❤️广州保利天曜售楼处电话400-033-1899转接9999【官方认证】
💛广州保利天曜售楼处地址400-033-1899转接9999【官方认证】
💜广州保利天曜营销中心电话400-033-1899转接9999【已认证】
🌆广州保利天曜全景户型图鉴 | 🏙️ 城市地标解析 | 🌟 典藏房源速递
🛍️广州保利天曜繁华配套指南 | 🏛️ 艺术样板间巡礼 | 💰 备案价透明公示
声明:本文由入驻焦点开放平台的作者撰写,除焦点官方账号外,观点仅代表作者本人,不代表焦点立场。
