三亚(康润红树岛官方售楼处)康润红树岛首页官网-康润红树岛欢迎您-售楼中心楼盘详情-最新价格-小区配套-户型图@售楼处
扫描到手机,新闻随时看
扫一扫,用手机看文章
更加方便分享给朋友
🏡⭐⭐三亚 康润红树岛售楼处电话:400-133-5355【营销中心】
☎️☎️康润红树岛售楼中心电话:400-133-5355【已认证】
⭐⭐户型图丨项目介绍丨最新房源丨周边配套丨售楼处地址丨样板间丨备案价
康润·红树岛
山河入海 康养润心
三亚主城中心 山水康养低密洋房 自然野奢生活范本
【一、基本信息】
项目地址 海南·三亚中央商务区海罗单元(海螺一路与海螺西路交汇处)
开发商:三亚京基花园开发有限公司
总占地面积:64099㎡
总建筑面积:项目整体165259㎡,一期108876㎡
整体容积率为:1.8
绿地率:40%
产权年限:70年
规划产品:一期110-130㎡板式低密洋房
规划户数:一期578户住宅;45套商铺
规划楼栋:一期11栋
停车位:一期736个
【二、区域价值】
1、项目位于三亚中央商务区海罗单元
• 三亚中央商务区位于三亚市主城区中心区域,是海南自贸港13个重点建设园区中唯一以“商务区”命名的园区。园区分为凤凰海岸、东岸、月川、海罗四大片区。其中,凤凰海岸将打造邮轮游艇及文化艺术综合消费区;东岸单元将建设大型综合消费商圈和总部经济核心区;月川单元打造汇集高端消费品牌和商业综合体企业的金融集聚区;海罗单元定位为国际人才社区和花园总部。
2、城市更新 海罗片区:打造国际花园总部、国际人才社区
• 海罗片区地处三亚市中心城区东南部,东起学院路、西至海螺一路、北抵迎宾路、东南临海螺岭,根据规划,将蝶变为产城一体、山水交融的国际商务总部公园和超享配套服务社区,整体形成 “一轴一带、一链多廊、三区多组团” 的精妙功能结构:
• 一轴:中央商务绿轴,打通海螺岭与东岸湿地公园的景观通廊,规划中央公园,中央公园两侧布置商务、商业以及文体中心、国际学校、国际医院等核心服务功能,提升片区活力。
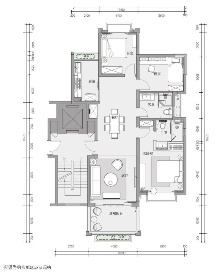
户型展示】
1、A户型:建筑面积约110平方米三房两厅两卫
全能布局,引光入室,通透舒畅,明亮心境。
双阳台设计,一半诗意观景,一半烟火生活。
主客卫干湿分离,布局合理,随心从容起居。
设置玄关等收纳系统,有序收纳,康养身心。
套房式主卧,起居私密,营造静谧睡眠氛围。
2、B户型:建筑面积约120平方米三房两厅两卫
家庭聚场 | 全维公区,让陪伴自然而然
风光入室 | 引景入怀,生活坐拥自然绿意
净享卫浴 | 双卫配置,从容应对生活节拍
归置美学 | 系统收纳,于秩序中见自由
起居私境 | 主卧套房,奢享城芯静谧一隅
3、C户型:建筑面积约130平方米三房两厅两卫
朗阔客厅衔接观景阳台,阳光清风常伴左右
U型科学布局的厨房,操作流畅,高效省时
宽敞套房式主卧,配备独立卫浴,奢享私密
多维有序收纳,涵养从容不迫的生活节奏
南北双阳台,功能分明,诗意与烟火共生
🏡⭐⭐三亚 康润红树岛售楼处电话:400-133-5355【营销中心】
☎️☎️康润红树岛售楼中心电话:400-133-5355【已认证】
⭐⭐户型图丨项目介绍丨最新房源丨周边配套丨售楼处地址丨样板间丨备案价
声明:本文由入驻焦点开放平台的作者撰写,除焦点官方账号外,观点仅代表作者本人,不代表焦点立场。
