【观澜湖星光里】售楼电话〢楼盘详情〢区域配套〢户型图〢24小时热线电话
扫描到手机,新闻随时看
扫一扫,用手机看文章
更加方便分享给朋友
【观澜湖星光里】
🌈✅售楼处电话☎️400-033-1899转6666(专人接听)
🌈✅提-前-来-电-预-约-登-记---—售楼处1v1销售专业讲解〢
🌈✅温馨提示:网上售楼中心〢预约可享内部优惠〢匠心钜制恭迎品鉴〢
基本信息
【开发商】海南观澜湖华谊冯小刚文化旅游实业有限公司
【位 置】海口市龙华区羊山大道观澜湖华谊冯小刚电影公社西南侧
【项目名 称】观澜湖 •星光里三期(推广案名)
【总用地面积】约28333.64㎡
【总建筑面积】约43992.62㎡
【容积 率】1.2
【绿化率】26.8%
【套 数】298套(洋房274 套,叠墅24套)
【车 位】340个
【产 权】70年
#看房📱18189880948
◎项目交通区位
项目位于观澜湖电影公社景区西南侧,靠近羊山大道,交通更便利。距离高速口仅约1.5公里,约5分钟抵达;距离海口东站仅约8公里,约15分钟抵达;距离美兰机场仅约15公里,约20分钟抵达。交通通达性强,“高铁、高速、航空”快速接驳岛内外,方便快捷。

◎项目产品介绍

观澜湖·星光里三期项目位于海口市观澜湖华谊冯小刚电影公社片区,星影大道以北,羊山大道以东。东侧为四季湖景,西侧及南侧为自然资源景观,相对安静独立。总用地面积约2.8333万㎡,总建筑面积约4.3992万㎡,容积率1.2,打造高品质低密度住区。主要产品为洋房和叠墅。
🌈✅售楼处电话☎️400-033-1899转6666(专人接听)
规划平面图

◎洋房产品

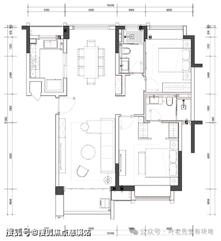
A户型图赏析
建筑面积 约106.5-113.27㎡

🌈✅售楼处电话☎️400-033-1899转6666(专人接听)
产品优势:
双阳台设计|约5.6米大客厅|一梯两户|主卧套房设计
卫生间干湿分离|L型美学厨房,便捷高效实用
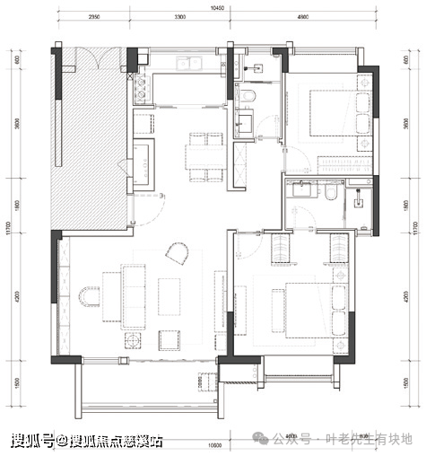
B户型图赏析
建筑面积 约108.8-113.03㎡

产品优势:
客餐厅一体化设计,空间感强|南北通透,穿堂风|一梯两户
主卧套房设计|卫生间干湿分离|L型美学厨房,便捷高效实用
E户型图赏析
建筑面积 约120.97—133.39㎡

🌈✅售楼处电话☎️400-033-1899转6666(专人接听)
产品优势:
一梯两户|动静分区,私密度高|约7米横厅设计,空间感强
主卧套房设计|卫生间干湿分离|得房率高
G户型图赏析
建筑面积 约109.14㎡

🌈✅售楼处电话☎️400-033-1899转6666(专人接听)
产品优势:
客餐厅一体化设计,空间感强|南北通透,穿堂风|一梯两户
主卧套房设计|卫生间干湿分离|L型美学厨房,便捷高效实用
◎叠墅产品

【花园叠墅】户型图赏析
建筑面积 约124.2 — 125.12㎡


🌈✅售楼处电话☎️400-033-1899转6666(专人接听)
产品优势:
前庭后院|层高3.3米|动静分层,私密度高|全套房设计
南北双入户互不干扰|主卧宽大景观阳台|卫生间干湿分离
【星空叠墅】户型图赏析
建筑面积 约145.86 — 146.07㎡🌈✅售楼处电话☎️400-033-1899转6666(专人接听)


产品优势:
星空露台|层高3.3米|动静分层,私密度高|全套房设计
南北双入户互不干扰|主卧宽大景观阳台|明厨明卫
🌈✅售楼处电话☎️400-033-1899转6666(专人接听)
十大必买理由
(1)自贸港芯, 价值高地:
政策红利加持, 投资潜力巨大

(2)产城家融, 未来已来:
多元产业融合, 共建理想家园

(3)鲜氧生态, 墅居自然:
火山湿地景观, 低密生态宜居

(4)立体交通, 畅行无界:
便捷交通网络, 快速连接全城

(5)繁华配套, 乐享生活:
完善生活配套, 满足多元需求

(6)文化盛宴, 娱乐无限:
丰富文娱资源, 尽享多彩生活

(7)国际风尚, 魅力生活:
汇聚国际品牌, 引领时尚潮流

(8)康养胜地, 健康守护:
火山温泉与三甲医疗, 呵护健康

(9)全龄优教, 学府相伴:
K12 优质国际教育, 助力孩子成长

(10)低密美宅, 品质生活:
低密度住宅, 尊享舒适空间

声明:本文由入驻焦点开放平台的作者撰写,除焦点官方账号外,观点仅代表作者本人,不代表焦点立场。
