海口 观澜湖星光里(售楼处)官方网站电话-观澜湖星光里官方营销中心电话预约看房-楼盘详情-最新价格-
扫描到手机,新闻随时看
扫一扫,用手机看文章
更加方便分享给朋友
观澜湖星光里
✅✅✅售楼处电话:400-179-0800【已认证】
✅✅✅售楼中心电话;400-179-0800【已认证】
✅✅✅开发商电话:400-179-0800【已认证】
✅✅✅温馨提示:售楼中心〢预约尊享1V1品鉴礼遇〢匠心钜制-恭迎品鉴〢
✅✅✅免责声明:本文所用信息图片来源于网络,如侵权请联系本站及时删除!
基本信息
【总用地面积】约28333.64㎡
【总建筑面积】约43992.62㎡
【容积 率】1.2
【绿化率】26.8%
【套 数】298套(洋房274 套,叠墅24套)
【车 位】340个
【产 权】70年
项目产品介绍

总用地面积约2.8333万㎡,总建筑面积约4.3992万㎡,容积率1.2,打造高品质低密度住区。主要产品为洋房和叠墅。
规划平面图

A户型图赏析
建筑面积 约106.5-113.27㎡

产品优势:
双阳台设计|约5.6米大客厅|一梯两户|主卧套房设计
卫生间干湿分离|L型美学厨房,便捷高效实用
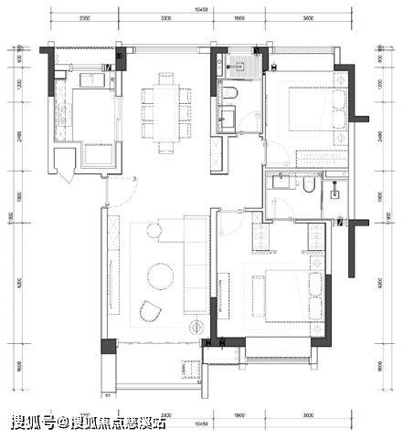
B户型图赏析
建筑面积 约108.8-113.03㎡

产品优势:
客餐厅一体化设计,空间感强|南北通透,穿堂风|一梯两户
主卧套房设计|卫生间干湿分离|L型美学厨房,便捷高效实用
E户型图赏析
建筑面积 约120.97—133.39㎡

产品优势:
一梯两户|动静分区,私密度高|约7米横厅设计,空间感强
主卧套房设计|卫生间干湿分离|得房率高
G户型图赏析
建筑面积 约109.14㎡

产品优势:
客餐厅一体化设计,空间感强|南北通透,穿堂风|一梯两户
主卧套房设计|卫生间干湿分离|L型美学厨房,便捷高效实用
◎叠墅产品

观澜湖星光里
✅✅✅售楼处电话:400-179-0800【已认证】
✅✅✅售楼中心电话;400-179-0800【已认证】
✅✅✅开发商电话:400-179-0800【已认证】
✅✅✅温馨提示:售楼中心〢预约尊享1V1品鉴礼遇〢匠心钜制-恭迎品鉴〢
✅✅✅免责声明:本文所用信息图片来源于网络,如侵权请联系本站及时删除!
声明:本文由入驻焦点开放平台的作者撰写,除焦点官方账号外,观点仅代表作者本人,不代表焦点立场。
