天津金茂泮湖满庭项目首页网站丨2025天津金茂泮湖满庭售楼处电话丨天津金茂泮湖满庭营销中心丨天津金茂泮湖满庭楼盘详情-地址-户型-价格
扫描到手机,新闻随时看
扫一扫,用手机看文章
更加方便分享给朋友
天津金茂泮湖满庭售楼处电话✅:400-033-1899转接6789
天津金茂泮湖满庭营销中心电话☎:400-033-1899转接6789【营销中心已认证】🥇🥇

01
金茂·泮湖满庭是T字型地块,T字两边是老社区。
虽然外部有泮湖公园这样的景观资源,北侧靠水;但内部的T字形态其实是有劣势的,金茂尽量扭转这方面的劣势,如在宣传中说是T台秀。
因为T字形态是长和扁,实际设计过程中很难在楼与楼之间做出大组团,所以金茂通过高差递减、北高南低来化解这一尴尬,形成有山地感的立体景观格局。
主入口开在了北侧,一路之隔就是规划的泮湖公园,拥有约1.6万㎡的湖泊。
进入大门后是归家大堂+业主会所,会所预设功能较齐全,涵盖了运动、健身、会客、甚至私宴厅。布局如下:

02
整个小区共规划556户,小高层+洋房,带精装修;
北侧一排4栋18F到顶的小高层,其中中户100㎡和边户120㎡;
其他11栋楼是7-11F到顶洋房,产品104-143㎡。

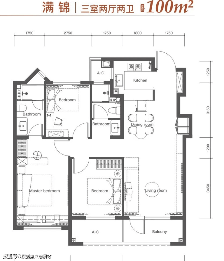
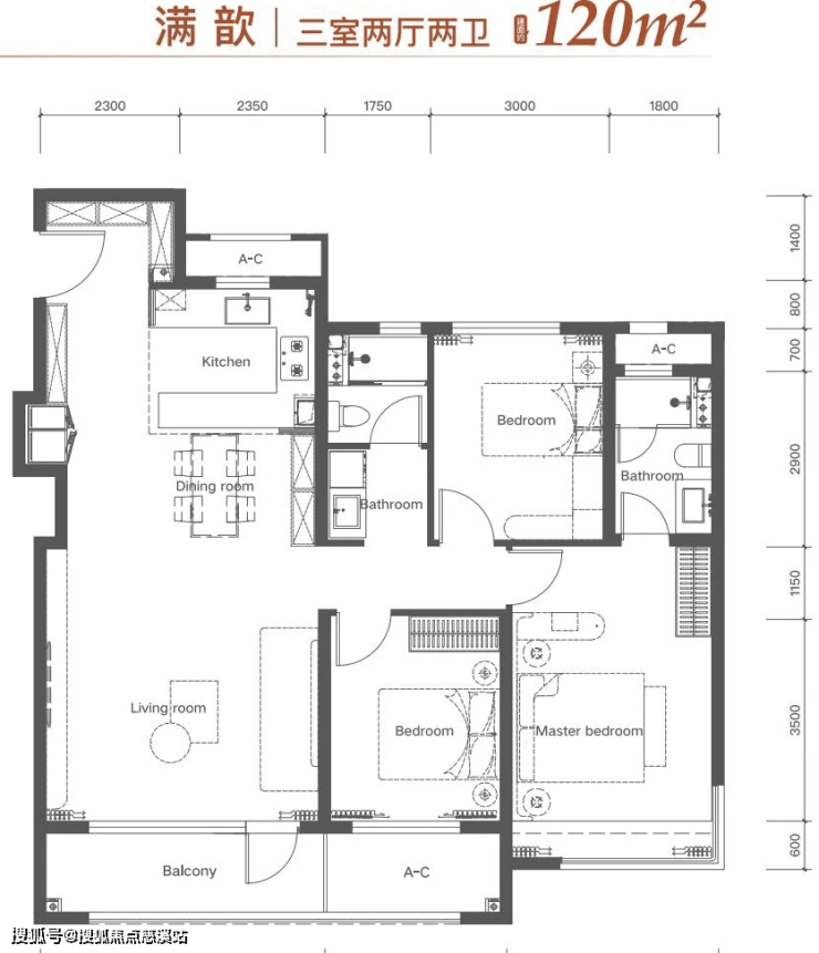
03
小高层100和120㎡ 三室两厅两卫
只讲下创新点的地方,小高层户型中户和边户S墙体设计,客厅预留了放置冰箱的空间;
入户厨房位置对客厅的墙体可以做成中式岛台,与客厅联动;
客厅延伸出去的阳台相当于连接了次卧的设备间赠送,演变成一个大阳台,像100㎡户型阳台就可以做到6.6米;120㎡就是7.7米。


天津金茂泮湖满庭售楼处电话✅:400-033-1899转接6789
天津金茂泮湖满庭营销中心电话☎:400-033-1899转接6789【营销中心已认证】🥇🥇
声明:本文由入驻焦点开放平台的作者撰写,除焦点官方账号外,观点仅代表作者本人,不代表焦点立场。
