建投誉山院(售楼处)首页网站-天津建投誉山院营销中心-建投誉山院欢迎您-楼盘详情-最新价格-户型图-容积率@售楼处
扫描到手机,新闻随时看
扫一扫,用手机看文章
更加方便分享给朋友
天津建投誉山院
售楼处电话:400-100-1299转5999
网上售楼中心〢欢迎来电咨询〢1v1销售专业讲解
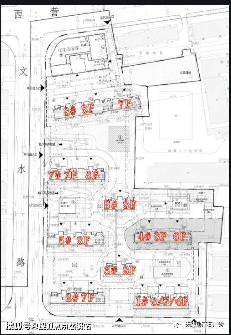
产品方面,项目为纯洋房社区,规划有8栋4-8层到顶的洋房,共234套房源。值得一提的是,容积率仅1.43,这在市区的新房项目里非常少见的,稀缺度不言自明。
户型方面,项目规划有三种户型,分别为建面89㎡的3室2厅1卫以及109㎡3室2厅2卫和127㎡的3+1室2厅2卫。
其中,89㎡户型只分布在1号楼,其余楼座均以109和127㎡的户型为主,可见项目定位改善。
建投誉山院效果图
从效果图可以看出,项目沿用了现在流行的第三代产品,玻璃幕墙、宽厅、铝板全部配备。
值得关注的是,建投誉山院是去年8月天津发布修改住宅新规,允许新建商品房建设阁楼地下室与小院后,第一批落实此新规的新房项目之一,自然备受期待。
据销售介绍,建投誉山院社区内人车分流,一楼的小院均由实墙围合;地下室有天窗,挑高4.5米;阁楼挑高2.5米,面积约在40-50㎡左右,附加面积全部计入房本。
项目预计4月中旬开盘,首开5、6号楼,共76套房源。
价格方面,标准层均价约5.5万/㎡,顶楼约6万/㎡,一楼带院约7万/㎡;预计2025年6月底毛坯交付。
整个建投誉山院小区也只有32套赠送小院及地下室的首层房源,32套赠送跃层阁楼的顶层房源。
首层每户均有小院,小院面积结合景观设计。
地下室层高约5.10米,面积约90㎡(结构空腔面积不在其中)。
住宅建筑层高约3.10米,阁楼层高约2.6米,南侧坡屋顶坡度约55°,北侧除1#楼约24°左右外,其余为约33°;阁楼层高约2.2米及以上计算全面积,挑空不计面积。
234套洋房产品已足够稀缺,这64套具备超高附加值的带地下室和小院或者跃层阁楼的房子,应该会更加抢手。
首进天津的中国500强山西建投,已有近70年的发展历史。
山西建投集团,全称山西建设投资集团有限公司,是山西省规模最大的综合性、“全产业链”国有投资建设集团。
2022年产值达3370亿元,最早成立于1953年,是共和国的长子企业,已成长为山西建筑行业第一国企。
不仅如此,山西建投集团,连续四年荣登“中国承包商80强”,ENR(美国《工程新闻记录》杂志)“国际承包商250强”,AAA主体信用等级企业。
旗下包含建筑工程设计、勘察、咨询、环境评价等50余项甲级设计资质及150余项总承包与专业承包一级资质,是集投资、建设、运营为一体的“全产业链”建筑业龙头企业。
山西建投与山西汾酒、煤炭、金融并称山西省四大金刚。
荣获国家级工程质量最高奖“鲁班奖”46项、国家优质工程奖43项、“詹天佑奖”6项、国家优秀勘察设计金奖、银奖及省部级奖160余项、“汾水杯”“长城杯”等省市级工程质量最高奖400项,获奖无数。
房地产开发作为山西建投集团的四大主业之一,现已布局全国6省19市,累计开发了93个优质项目,总投资额逾1096亿元,总开发面积近1786万㎡。
产品涵盖普通住宅、高端别墅、城市级商业综合体、写字楼,公寓酒店等多种业态。
山西建投还涉足古建筑修缮领域,并承建了多项海外工程项目。
已修缮的代表建筑包括山西太原的晋祠、山西运城的鹳雀楼、山西太原古县城、山西晋中的平遥古城……
这些无法用价值估量的古代建筑,能够交由山西建投修缮,本身就是一种来自山西官方的信任。
承建的海外代表项目包括埃塞俄比亚亚的斯亚贝巴博莱机场、毛里求斯晋非五星级公寓式酒店、马来西亚南港湾格、中非班吉酒店等。
还打造了多项世界之最,比如目前海拔最高的格萨尔机场,海拔达约4068米,含氧量仅为平原的约67%,在高原施工的艰难环境下,山西建投的品牌实力再一次验证。
作为山西建投集团的全资子公司,山西建投城市运营集团有限公司旗下有20余家子公司。
包含地产与片区开发、物业管理、城市设施服务运营三大主业,发展定位为山西建投集团房地产开发业务的承载主体、建投城市服务业务发展平台。
山西建投拥有“院系”“府系”“馆系”“庐系”“里系”“城系”“小镇系”七大住宅产品系,“都汇系”“智慧谷系”“国际系”“中心系”四大商业产品系。
建投誉山院即为山西建投TOP级产品系“院系”新品。
有且仅有的8栋4-8层到顶的洋房产品,毛坯交付,出房率高达约84%深灰色真石漆、香槟金铝板、LOW-E玻璃构成的现代美学立面,还有IMAX级宽幕落地窗、超大面宽方厅
2022年8月24日,市规划资源局关于印发住宅多样性空间增值利用规划管理指导意见(试行)的通知正式发布。
鼓励住宅建筑采用坡屋顶,丰富第五立面城市景观。
明确提到住宅单元的地下空间增值利用部分及室外专有庭院,意味着阁楼、地下室、小院正式合法化。
是的,天津住宅新规提及的地下室、庭院、坡屋顶全部在建投誉山院由梦想照进现实。
在南开区洋房社区,能够拥有一套带地下室和小院或者跃层阁楼的房子,想想都觉得很美好。
天津市南开区教育局负责在南开区昌源里项目东侧地块引入天津中学、中营小学共同参与的集团化办学九年一贯制学校,选派优秀教师团队参与教育教学管理。
承诺天津晋宇房地产开发有限公司开发建设的南开区昌源里项目商品房业主凭南开区居民户口簿或外地户籍、该项目房产证,为其适龄子女(与购房业主同一户籍)在项目配套的新建九年一贯制学校办理入学、转学手续。
同时指出,尚未取得房产证的,提供购房合同和缴费证明,且购房地址与户籍地址或居住证地址一致,同样享受以上入学、转学权利。
南开区昌源里项目即为建投誉山院。
天津晋宇房地产开发有限公司的大股东则是山西建投。
这也就意味着,建投誉山院业主的子女可以轻松拿到入学南开九年一贯制学校的资格。
能在首开前就拿到这种重磅教育资源的开发商,凤毛麟角。
大家都知道,天津现在的小升初政策是摇号,有摇到重点中学的概率,也有摇进垫底校的可能。
因此,很多未雨绸缪的家长,都会更倾向于考虑九年一贯制学校。
南开区的新房市场早已豪宅化,区域内在售的金地阅千峯、绿城凤起悦鸣,铂悦融御、铂悦公望、招商江山玺等,超过一半的新房项目都是豪宅。
建投誉山院效果图
与项目一路之隔的正荣紫阙,拿地楼面价2.4万/㎡左右,售价6万/㎡,且全是大户型,总价千万起步。这个货值的产品,2019年9月开盘,至2022年1月,共成交了73套,去化率超七成。
反观建投誉山院,项目的门槛价格约450万左右,总价上限约850万,这个价格段放在南开的新房市场,其实并不“突兀”。
核心原因有以下三点:
①地段稀缺
首先,建投誉山院是南开中环线内的地块,就凭这一点,在天津的新房市场就足够稀缺。
③新规后首批新产品
小院、地下室和阁楼的新一代产品加持,让建投誉山院在南开区独树一帜。
宽厅、落地窗现在越来越多,今年入市的新房项目没有这个配置都不好意思跟人打招呼。
但是小院、阁楼这种稀缺产品还是少数,目前南开区更是一个都没有。
④九年一贯制
今年南开区突然“开窍”兴办九年一贯制学校,山西建投也与南开区教育局合作新建了中营小学+天津中学集团化办学的九年一贯制学校,计划在25年7月1日投入使用。
据小道消息,不同于其他项目的“口嗨”,建投誉山院的学区属性有相关文件保证,并且执行六年一学位的政策。
综合地段、产品、附加价值等,建投誉山院在天津的核心位置打造这样的产品,稀缺性确实非同一般。
天津建投誉山院售楼处电话:400-100-1299转5999网上售楼中心〢欢迎来电咨询〢1v1销售专业讲解
声明:本文由入驻焦点开放平台的作者撰写,除焦点官方账号外,观点仅代表作者本人,不代表焦点立场。
