太原逸宸首府售楼处电话_来电预约看房_(2025逸宸首府营销中心)楼盘最新详情-2025最新房价
扫描到手机,新闻随时看
扫一扫,用手机看文章
更加方便分享给朋友
太原逸宸首府
售楼处电话:400-100-1299转5888
网上售楼中心〢欢迎来电咨询〢1v1销售专业讲解
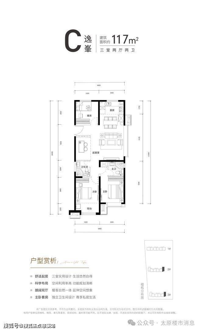
太原中铁置业逸宸首府项目,位于万柏林区,和平路旁。项目一共分三期开发,一期一共三栋楼,已经开盘一号楼,基本售罄了。即将加推二号楼,楼间距大,采光好。户型102平到129平,毛坯,团购优惠后,成交均价在9300-10200左右。中铁置业逸宸首府,配套一所小学,已经签约了新建路小学,太原名副其实的优质学区。周边有几所中学,万柏林二中相对不错,中考的定向名额很多。中铁置业逸宸首府项目的地理位置是属于环内地块,离地铁三号线四五百米,离和平公园,一公里多。往南,开车十分钟到晋阳湖公园,到万象城也是十分钟之内。周边生活配套基本完善,幼儿园小学都已经有规划和签约配套。
加推二号楼!环内九千多,新建路小学,太原中铁置业逸宸首府
这个项目的开发商是央企,物业用了万科物业,施工方是山西五建,毛坯可以升级精工装。施工进度很快,2026年5月交付。
太原逸宸首府
售楼处电话:400-100-1299转5888
网上售楼中心〢欢迎来电咨询〢1v1销售专业讲解
声明:本文由入驻焦点开放平台的作者撰写,除焦点官方账号外,观点仅代表作者本人,不代表焦点立场。
