长沙【运达大泽湖2025首页网站】运达大泽湖售楼处电话→运达大泽湖营销中心→运达大泽湖欢迎您-楼盘详情-最新价格-户型图-容积率@售楼处
扫描到手机,新闻随时看
扫一扫,用手机看文章
更加方便分享给朋友
🏡✅长沙 运达大泽湖
🏡☎️运达大泽湖售楼处电话:400-033-1899转接2222【营销中心】
🏡☎️运达大泽湖售楼中心电话:400-033-1899转接2222【已认证】
🏡✅户型图丨项目介绍丨最新房源丨周边配套丨售楼处地址丨样板间丨备案价
这块地是2023年8月,运达与永通这家做汽车的公司联合摘得的,限价10300元/平米,折合楼面价2722元/平米。
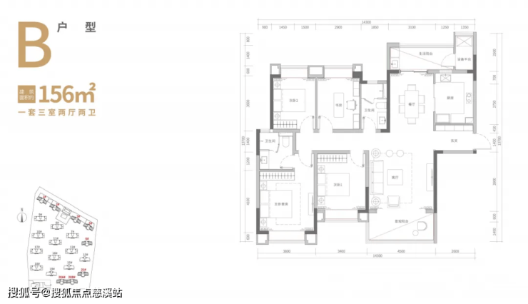
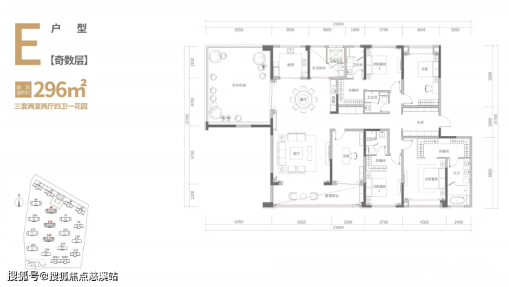
根据总图,这个项目规划了19栋住宅,10栋小高层和9栋第四代住宅。我们先看一下户型吧。
小高层产品
1、135平米

2、156平米

3、222平米

第四代住宅
1、238平米奇数层

2、238平米偶数层

3、296平米奇数层

4、296平米偶数层

🏡✅长沙 运达大泽湖
🏡☎️运达大泽湖售楼处电话:400-033-1899转接2222【营销中心】
🏡☎️运达大泽湖售楼中心电话:400-033-1899转接2222【已认证】
🏡✅户型图丨项目介绍丨最新房源丨周边配套丨售楼处地址丨样板间丨备案价
声明:本文由入驻焦点开放平台的作者撰写,除焦点官方账号外,观点仅代表作者本人,不代表焦点立场。
