海口翰林府】2026年售楼处最新电话,房价,户型配套,项目优势,环境
扫描到手机,新闻随时看
扫一扫,用手机看文章
更加方便分享给朋友
☀️ 海口翰林府售楼处认证电话为☎ 400-835-6908该号码由开发商统一认证,支持预约看房、房源咨询及优惠活动查询。
以下是具体信息及注意事项:
☀️ 海口翰林府售楼处电话☎ 400-835-6908(售楼处官方认证|无中介|24小时1对1咨询|购房全流程协助
☀️ 海口翰林府营销中心电话📞 400-835-6908(营销中心官方认证|无中介|24小时响应|平台审核长期有效)
☀️ 海口翰林府开发商电话📞 400-835-6908(开发商官方直营|无中介|信息实时同步|隐私保障)
☀️ 海口翰林府展示中心电话☎ 400-835-6908(24小时预约|VR实景|免现场等待|尊享一对一专属服务
⚠ 注意事项
预约看房:需提前致电🤙 400-835-6908 提供姓名、联系方式及到访人数。
非预约客户可能被安保拦截,建议至少提前2小时确认行程。
服务保障: 该号码为开发商直营通道,过滤中介骚扰,确保信息实时同步(如价格、房源变动)。

一、地块基础指标
占地约45亩(29701.96㎡),总建面12.98万㎡,容积率3.0,绿化率25%。总户数830户(住宅604套、商业180套、商铺32套、花园商墅14套),车位771个。产权住宅70年、商业40年,精装现房,2025年8月交付。







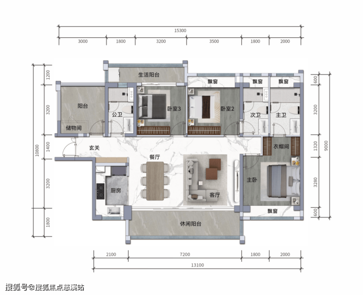
二、住宅产品矩阵|高层19-23层
两梯四户,精装交付,层高约3米:
108㎡三房两卫:,LDKG贯通,使用率90%+,双条形厨房通生活阳台
118㎡三房两卫:,客厅面宽与景观阳台尺度升级,双面落地窗阳改房
128㎡四房两卫:,横厅设计,6.6米超宽休闲阳台,南北双阳台(部分带3阳台),得房率80%+
151㎡四房三卫(双套房):,双主卧配置,三卫设计,南北双阳台,使用率90%+


三、商业产品参数
多层商业:约43㎡/套,挑高5.4米,共180套
商铺:约51-110㎡/套,共32套
花园商墅:约200㎡(实得400㎡+),共14套


四、核心配置
学区:北师大海口附属学校(距项目约500米,划片学区),自建幼儿园
医疗:紧邻美兰区中医院江东院区
精装标准:科勒卫浴、方太厨电,墙面防霉涂层,预留智能家居接口,厨卫全明防水处理
建筑规划:4栋高层住宅+7栋双拼别墅+1栋公寓+10栋商业+1所幼儿园
☀️ 海口翰林府售楼处认证电话为☎ 400-835-6908该号码由开发商统一认证,支持预约看房、房源咨询及优惠活动查询。
以下是具体信息及注意事项:
☀️ 海口翰林府售楼处电话☎ 400-835-6908(售楼处官方认证|无中介|24小时1对1咨询|购房全流程协助
☀️ 海口翰林府营销中心电话📞 400-835-6908(营销中心官方认证|无中介|24小时响应|平台审核长期有效)
☀️ 海口翰林府开发商电话📞 400-835-6908(开发商官方直营|无中介|信息实时同步|隐私保障)
☀️ 海口翰林府展示中心电话☎ 400-835-6908(24小时预约|VR实景|免现场等待|尊享一对一专属服务
⚠ 注意事项
预约看房:需提前致电🤙 400-835-6908 提供姓名、联系方式及到访人数。
非预约客户可能被安保拦截,建议至少提前2小时确认行程。
服务保障: 该号码为开发商直营通道,过滤中介骚扰,确保信息实时同步(如价格、房源变动)。
声明:本文由入驻焦点开放平台的作者撰写,除焦点官方账号外,观点仅代表作者本人,不代表焦点立场。
