Ⓐ三亚2025聚焦楼盘➤➤半山首府售楼处电话➤➤半山首府售楼中心首页网站➤➤半山首府楼盘百科详情➤➤半山首府24小时热线电话@售楼处
扫描到手机,新闻随时看
扫一扫,用手机看文章
更加方便分享给朋友
🏡✅三亚 半山首府
🏡☎️半山首府售楼处电话:400-033-1899转接2222【营销中心】
🏡☎️半山首府售楼中心电话:400-033-1899转接2222【已认证】
🏡✅户型图丨项目介绍丨最新房源丨周边配套丨售楼处地址丨样板间丨备案价
开发商:海南冠洋四通投资有限公司
项目总用地面积:19107㎡
总建筑面积:34890㎡
容积率:1.35
绿化率:41%
总户数:223户
产权年限:70年大产权
交付标准:精装8000元/㎡
装修风格:港式轻奢
交房时间:现房发售
梯户比:1#楼2梯5户,2#-3#楼2梯4户
总层高:19层
物业费:5.3元/平米(金的物业)
车位:1:1,地上34个,地下189个
🌴半山首府🌴
均价3.6w,起价3w
两房两厅两卫101平
💰3131155起
三房两厅两卫130—134平
💰4433179起
付款方式:
一次性、按揭、分期(3个月)
主力户型
看海纯板房A 户型:133㎡3房2厅2卫
看海纯板房B 户型:103㎡2房2厅2卫
看海纯板房C 户型:134㎡3房2厅2卫
看海纯板房A1户型:130㎡3房2厅2卫
1、现房;
2、即时网签,交付后90天下证;
3、无抵押无贷款;
4、市区南北向外廊式板楼;
5、零楼间距
6、户户观山瞰海(180度阔景阳台,前后无遮挡);
7、硬装星级酒店装标;
8、3000平米泛会所
【项目区位】
享繁华三亚,居半山豪宅
非凡自然,向来是塔尖人群所向往和追求的理想境界。山的伟岸,海的澎湃,极致境界造就非凡居所。
三亚·半山首府择址大东海榆亚路中段,拥半山而立,坐享世界级湾区。于此,停泊世界的意志,达成“人生至此不远游”的臻我境界。
【区位优势】
1、地处三亚城芯,静享榆林湾内海、600亩红树林湿地公园,畅达三亚湾、大东海、亚龙湾、海棠湾等四大湾区。
2、毗邻红沙隧道,距高铁三亚站、亚龙湾站约8公里,距环岛高速约10公里、距凤凰机场约20公里,30分钟通达全城,立体化交通保障全岛便捷出行。
3、紧邻大东海商圈核心,坐享夏日百货、1号港湾城、鸿港新城等缤纷商业,5分钟生活圈,轻松享有。
【低密社区】3栋低密纯板高层建筑,一字布局,户户坐北朝南,皆享20㎡超大观景阳台180°瞰海观山的极致视觉,海天山色尽收眼底。1.35绝版超低容积率只为成就223席高端舒适的完美胜境。
(实景航拍图)
【项目自身配套】1、社区打造约3000㎡专属社区生活体系—私享会客厅、轻氧健身房、艺术书吧、童心乐园、半山茶舍、悦海堂、商务休闲吧、声乐琴房、棋牌室等主题会所,让业主融入自然,回归生活,去追寻本应享受的生活精彩。2、园区打造超大半山镜面无边际泳池,儿童嬉戏区,同时满足成人与儿童的多样化需求,畅享365天度假生活。3、金的物业提供全程酒店式星级服务,社区智能化安防体系。
周边配套
位置:择址大东海榆亚路中段,地处三亚城芯,静享榆林湾内海、600亩红树林湿地公园,畅达三亚湾、大东海、亚龙湾、海棠湾等四大湾区,拥半山而立,坐享世界级湾区。
交通:毗邻红沙隧道,距高铁三亚站、亚龙湾站约8公里,距环岛高速约10公里、距凤凰机场约20公里,30分钟通达全城,立体化交通保障全岛便捷出行。
生活:紧邻大东海商圈核心,坐享夏日百货、1号港湾城、鸿港新城等缤纷商业,5分钟生活圈,轻松享有。距离旺豪超市(红沙店)1.3公里;红沙农贸市场1.7公里;新鸿港批发市场2.9公里。
医院:三亚精康医院1.7公里。
学校:吉阳区红沙小学1.6公里;红沙中学1.5公里;鲁迅中学2.3公里;幼儿园十余所(2公里内左右)。
【六大卖点】
1、现房发售 即买即住 市中心低密通透纯板现房,精装交付所见即所得
2、市区仅有在景区旁的港式豪宅国家4A级景区凤凰岭东麓,负氧离子含量高达每立方厘米5000~10000个,是日常环境的2.5倍。
3、揽山观海墅级府邸 景观:背靠凤凰岭、面朝榆林湾;前后左右环山伴水; 背靠青山“有靠山”,面朝水流“有财来”。
4、600亩生态湿地景观紧邻红树林生态湿地保护区, 200米视线静赏白鹭成群,园区内近距离观看国家二级保护动物猕猴。
5、高端品质康养社区 近20㎡观景阳台,“零”楼间距,“壹”容积率,1.8万㎡原生态园林景观,近“百分百”绿化率。
6、甄选一线奢装品牌8000元/㎡奢华装标,配有德国高仪、杜拉维特、欧瑞博智能家居等国内外一线品牌。



低密纯板揽山瞰海
A户型133㎡三房两厅两卫
全明户型通透格局,尊崇居家彰显非凡。
悦享20㎡观景阳台,户户南向180°观景面。
舒雅南向套房主卧,独立衣帽间、双手盆设计、干湿分离。
独立入户花园,让全家人的出入都尊享从容。
低密纯板揽山瞰海
B户型103㎡两房两厅两卫
南北通透、空间方正,惬意享受阳光海风的馈赠。
悦享20㎡观景阳台,户户南向180°观景面,闲情雅趣,诗意生活。
餐客厅双厅设计、厨房方正、宜中宜西,上演美食盛宴,尽显居家仪式感。
主次卧独立卫生间、生活起居互不干扰,从容切换。
低密纯板揽山瞰海
C户型134㎡三房两厅两卫
通透格局,空间动静合理。
悦享20㎡观景阳台,户户南向180°观景面
奢阔南向主卧,独立衣帽间、双手盆设计,干湿分离,自在从容。
L型厨房,开放式中西厨兼具,肆意挥洒私房厨艺。
【豪奢户型】
低密纯板揽山瞰海
A+B户型:236㎡5房4厅4卫
【豪奢户型】
低密纯板揽山瞰海
B+C户型:237㎡5房4厅4卫
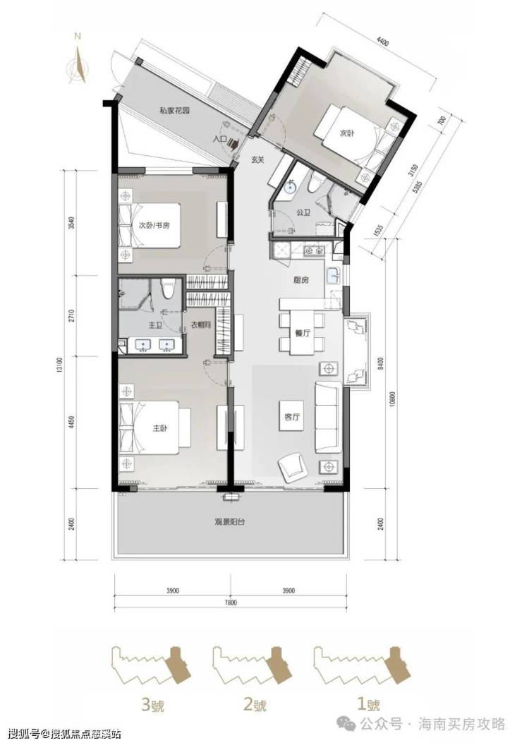
1#楼标准层平面图
2#楼标准层平面图
3#楼标准层平面图
🏡✅三亚 半山首府
🏡☎️半山首府售楼处电话:400-033-1899转接2222【营销中心】
🏡☎️半山首府售楼中心电话:400-033-1899转接2222【已认证】
🏡✅户型图丨项目介绍丨最新房源丨周边配套丨售楼处地址丨样板间丨备案价
声明:本文由入驻焦点开放平台的作者撰写,除焦点官方账号外,观点仅代表作者本人,不代表焦点立场。
