珠江.天河都荟售楼处-(2025更新)首页网站-珠江.天河都荟楼盘详情/户型/价格/配套/容积率
扫描到手机,新闻随时看
扫一扫,用手机看文章
更加方便分享给朋友
广州 珠江.天河都荟
☎️售楼处电话:400-033-1899转接5555 【售楼中心】
💌 网上售楼中心〢安全通话隐藏真实号码〢一对一热情服务〢
✅售户型图丨项目介绍丨最新房源丨周边配套丨详细解答〢营销中心✅
三大国企强强联袂 共筑时代封面标杆
珠江实业:城脉地标缔造者
广州城投:城市建设主力军
天河投资:天河发展协同者

基本信息
【股东方】珠江实业集团、广州城投集团、天河投资集团
【开发商】广州程锦房地产开发有限公司
【占地面积】约 5.5万㎡
【计容建面】约11.5 万㎡
【容积率】约2.5(二期峯荟)
【装修标准】精装修


户型鉴赏
二期【峯荟】组团2.5容积率低密社区 天河稀罕
低至14层小高层,户户朝南,低密奢境
二期【峯荟】组团首推约71-143㎡全南向新规产品
科技光幕美学外立面,错落天际线,优越采光,宽阔观景视野

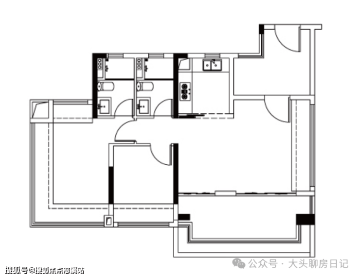
【约71㎡ 3空间2卫】天河罕见户型,生活起居更从容

【约85㎡ 3空间2卫】享超6m景观阳台,约42㎡LDKB秀场

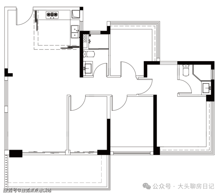
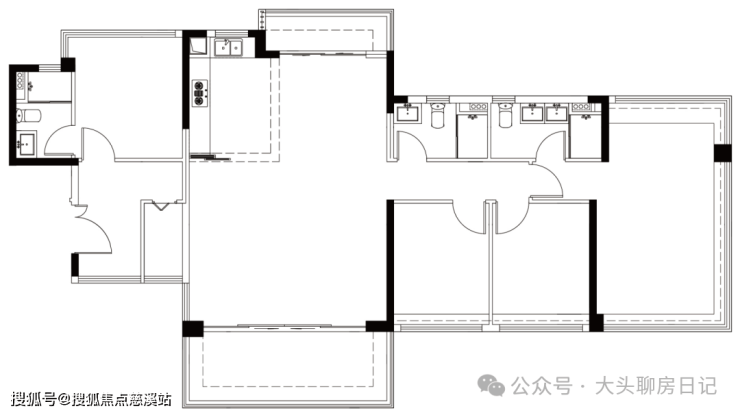
【约104㎡ 4空间2卫】3.3m层高,6.1米大阳台,四开间朝南

【约105㎡ 4空间2卫】南北对流,主卧超享U型衣帽间

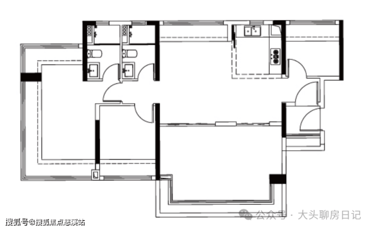
【约124㎡ 4空间2卫】空间平权,南向卧室均可放1.8m大床

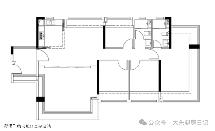
【约142㎡ 4空间3卫】3.3m层高,南北通透,超越豪宅尺度

【约143㎡ 4空间3卫】3.3m层高,南北通透,南向20m面宽全景舱

广州 珠江.天河都荟
☎️售楼处电话:400-033-1899转接5555 【售楼中心】
💌 网上售楼中心〢安全通话隐藏真实号码〢一对一热情服务〢
✅售户型图丨项目介绍丨最新房源丨周边配套丨详细解答〢营销中心✅
声明:本文由入驻焦点开放平台的作者撰写,除焦点官方账号外,观点仅代表作者本人,不代表焦点立场。
