中投悦府(售楼处) 首页-中投悦府营销售中心-环境-户型-价格-地址-楼盘详情-配套-电话-交房时间-配套-电话-交房时间
扫描到手机,新闻随时看
扫一扫,用手机看文章
更加方便分享给朋友
☎️中投悦府售楼处电话:400-133-5355【售楼中心】
💌中投悦府 网上售楼中心〢安全通话隐藏真实号码〢一对一热情服务〢
✅售户型图丨项目介绍丨最新房源丨周边配套丨详细解答〢营销中心✅
🌴中投·悦府🌴
🔥匠心品质 实景现房
中投·悦府占据金鸡岭居住片区核芯制高点,亲临金鸡岭街政法路,毗邻三亚城市主干道之一的凤凰路,临近三亚河,远眺金鸡岭及三亚湾,山、河、海景观资源俱备,三亚城心绝美臻稀席位。三栋板式高层住宅,临街商业环绕而成,内部为中央景观花园及泳池。
70年精工恒产,5.25米高入户大堂,高端大气通透通风。为了追求居住的品质以及舒适性,采用外连廊式设计,带来了更多通风和采光及景观视野,超1:1比例停车位,人车分流,安全人性化俱佳。项目迎合未来科技住宅发展趋势,打造高度智慧化社区,业主入门入户系统自动识别,刷脸解锁,智能家居,一键互联。
👑建筑面积约85.36_166平米纯板式住宅
🚕项目地址:天涯区金鸡岭街政法路7号
🏠开发商:海南中投合通实业发展有限公司
🌇占地面积:8191.67㎡
🏠建筑面积:41438.26㎡
🎆容 积 率:3.5
🌳 绿 化 率:40%
🏢产权年限:70年
🔑总 栋 数:4栋
🏢楼层总高: 2-23层
💎总 户 数:277户
💰停车总位:308个
🎀现房销售
2#在售户型(现房)
B户型:85.36㎡两房两厅两卫
A型:87.71㎡三房两厅
3#楼在售户型(现房)
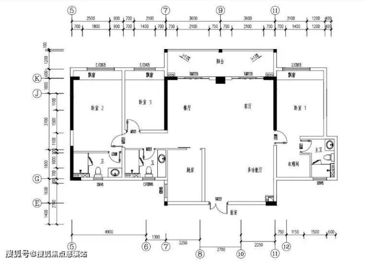
B户型:166.46㎡ 四房两厅三卫
☎️中投悦府售楼处电话:400-133-5355【售楼中心】
💌中投悦府 网上售楼中心〢安全通话隐藏真实号码〢一对一热情服务〢
✅售户型图丨项目介绍丨最新房源丨周边配套丨详细解答〢营销中心✅
声明:本文由入驻焦点开放平台的作者撰写,除焦点官方账号外,观点仅代表作者本人,不代表焦点立场。
