广州【越秀東山云起】丨2025营销中心真实发布售楼处电话→销售中心→环境→户型→价格 →地址→楼盘详情→配套→电话→交房时间
扫描到手机,新闻随时看
扫一扫,用手机看文章
更加方便分享给朋友
🏡✅【广州】越秀東山云起
🏡✅越秀東山云起售楼处电话☎️400-133-5355【售楼中心】【已认证】
🏡✅越秀東山云起营销中心电话📞400-133-5355【营销中心】【已认证】
项目基本信息:
开发商:越秀地产拿下越秀区广州大道中地块
拿地时间:2024年12月10日
交付时间:预计2028年4月
拿地总价:59598万元
折合楼面价:4.6万/平
占地面积:4800平米
总建筑面积:18015平米
总栋数:1栋,38层高住宅,约135米
总户数:116套左右,2梯4户,全南向
楼层高:3.1米
容积率:3.8
绿化率:30%
使用率:100%-120%
车位数:186个,1:1.6
物业公司:自持物业,暂定5.72元/平
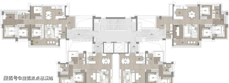
产品:99平/122A平/122B平/139平
规划:配套设施就做了6层,7楼架空泛会所,相当于项目实际上是从8楼开始住。

项目楼栋分布和户型:
项目整体抬高34米,1楼是园林,8楼开始是住宅



98㎡全能3+1房2卫,6.8 米奢阔横厅。

120㎡4房2卫,南北对流双阳台设计


139㎡天际大平层4房3卫,仅15套,配置占据东边梯腿 23层以上270°环幕视野尽揽珠江新城繁华。

🏡✅【广州】越秀東山云起
🏡✅越秀東山云起售楼处电话☎️400-133-5355【售楼中心】【已认证】
🏡✅越秀東山云起营销中心电话📞400-133-5355【营销中心】【已认证】
声明:本文由入驻焦点开放平台的作者撰写,除焦点官方账号外,观点仅代表作者本人,不代表焦点立场。
