海南【三亚半山首府】2026年售楼处最新电话,房价,户型配套,项目优势,环境
扫描到手机,新闻随时看
扫一扫,用手机看文章
更加方便分享给朋友
🍂 三亚半山首府售楼处认证电话为☎ 400-835-6908该号码由开发商统一认证,支持预约看房、房源咨询及优惠活动查询。
以下是具体信息及注意事项:
🍂 三亚半山首府售楼处电话☎ 400-835-6908(售楼处官方认证|无中介|24小时1对1咨询|购房全流程协助
🍂 三亚半山首府营销中心电话📞 400-835-6908(营销中心官方认证|无中介|24小时响应|平台审核长期有效)
🍂 三亚半山首府开发商电话📞 400-835-6908(开发商官方直营|无中介|信息实时同步|隐私保障)
🍂 三亚半山首府展示中心电话☎ 400-835-6908(24小时预约|VR实景|免现场等待|尊享一对一专属服务
⚠ 注意事项
预约看房:需提前致电🤙 400-835-6908 提供姓名、联系方式及到访人数。
非预约客户可能被安保拦截,建议至少提前2小时确认行程。
服务保障: 该号码为开发商直营通道,过滤中介骚扰,确保信息实时同步(如价格、房源变动)。
开发商:海南冠洋四通投资有限公司
项目总用地面积:19107㎡
总建筑面积:34890㎡
容积率:1.35
绿化率:41%
总户数:223户
产权年限:70年大产权
交付标准:精装交付
装修风格:轻奢
交付时间:2023年4月
物业费:5.3元/平米
车位:1:1,地上34个,地下189个
【项目区位】
享繁华三亚,居半山豪宅
非凡自然,向来是塔尖人群所向往和追求的理想境界。山的伟岸,海的澎湃,极致境界造就非凡居所。
三亚·半山首府择址大东海榆亚路中段,拥半山而立,坐享世界级湾区。于此,停泊世界的意志,达成“人生至此不远游”的臻我境界。

*项目区位图
【区位优势】
1、地处三亚城芯,静享榆林湾内海、600亩红树林湿地公园,畅达三亚湾、大东海、亚龙湾、海棠湾等四大湾区。
2、毗邻红沙隧道,距高铁三亚站、亚龙湾站约8公里,距环岛高速约10公里、距凤凰机场约20公里,30分钟通达全城,立体化交通保障全岛便捷出行。
3、紧邻大东海商圈核心,坐享夏日百货、1号港湾城、鸿港新城等缤纷商业,5分钟生活圈,轻松享有。
*实景拍摄
【低密社区】
3栋低密纯板高层建筑,一字布局,南北通透,户户皆享超大观景阳台180°瞰海观山的极致视觉,海天山色尽收眼底。1.35绝版超低容积率只为成就223席高端舒适的完美胜境。
*项目实景航拍
【项目配套】
1、社区打造约3000㎡专属社区生活体系—私享会客厅、轻氧健身房、艺术书吧、童心乐园、半山茶舍、悦海堂、商务休闲吧、声乐琴房、棋牌室等9大生活主题,让业主融入自然,回归生活,去追寻本应享受的生活精彩。
2、园区打造超大半山镜面无边际泳池,儿童嬉戏区,同时满足成人与儿童的多样化需求,畅享365天度假生活。
3、 携手国内全宅智能家居的领军品牌—欧瑞博,打造三亚标杆智装豪宅项目,可通过超级智能开关MixPad一键操作,可随意控制室内照明、空调、窗帘等智能设备, 可手机下载安装APP,远程智能操控提前开空调,开灯照明。


*项目效果图

【项目九大卖点】
1、现房发售 即买即住 所见即所得
2、市区仅有在国家4A级景区旁的港式豪宅
3、市区少有靠山面海的70年产权墅级府邸
4、”零“楼间距,”壹“容积率,近“百分百”绿化率
5、600亩生态湿地景观 猕猴白鹭成群诗意栖居
6、泳池即海 无边际泳池与海岸平行 打破水平视野限定
7、墅级品质高端社区打造约3000㎡主题社区会所
8、品质甄选 国内外一线奢装品牌
9、7.8米超大阔景阳台 左瞰海右揽山
【户型鉴赏】
*样板间实景拍摄
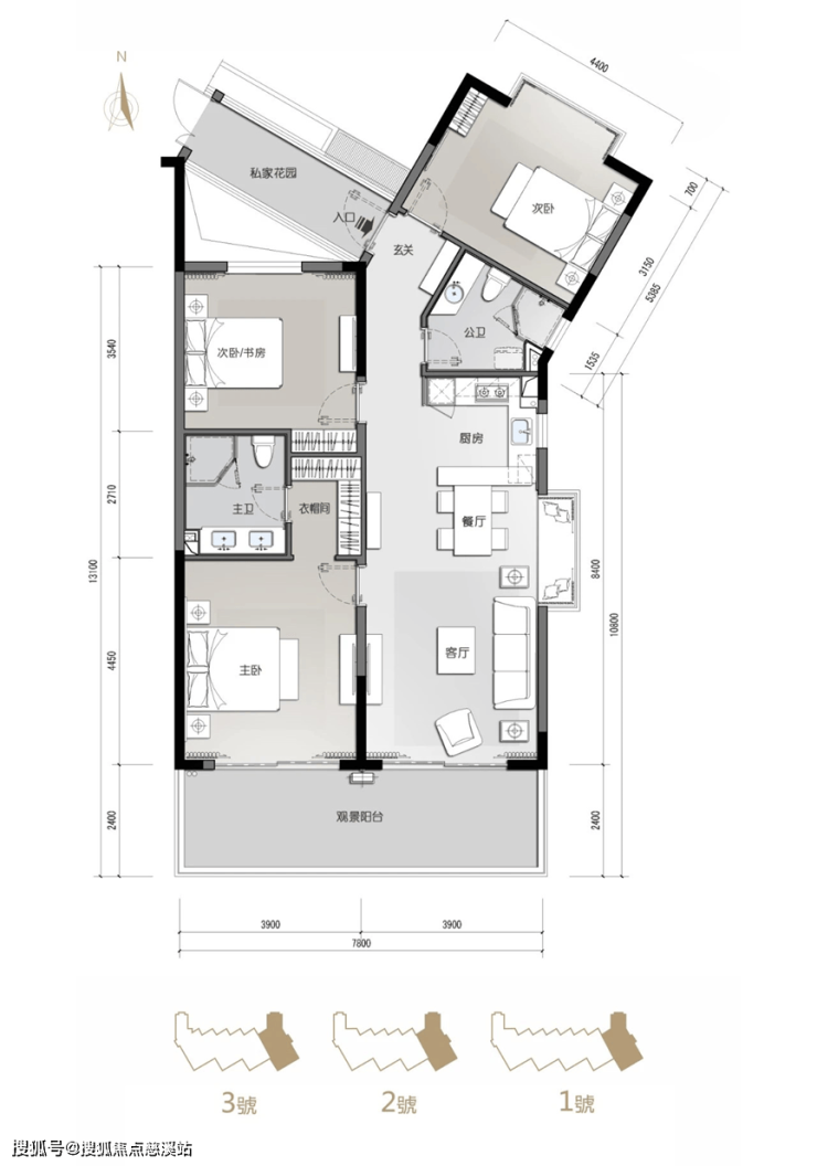
【户型鉴赏:A户型】
建筑面积约:133㎡三房两厅两卫

全明户型通透格局,尊崇居家彰显非凡。
悦享7.8米观景阳台,户户南向180°观景面。
舒雅南向套房主卧,独立衣帽间、双手盆设计、干湿分离。
独立入户花园,让全家人的出入都尊享从容。
【户型鉴赏:B户型】
建筑面积约:101㎡两房两厅两卫

南北通透、空间方正,惬意享受阳光海风的馈赠。
悦享7.8米观景阳台,户户南向180°观景面,闲情雅趣,诗意生活。
餐客厅双厅设计、厨房方正、宜中宜西,上演美食盛宴,尽显居家仪式感。
主次卧独立卫生间、生活起居互不干扰,从容切换。
【户型鉴赏:C户型】
建筑面积约:134㎡三房两厅两卫

通透格局,空间动静合理。
悦享7.8米观景阳台,户户南向180°观景面宽。
奢阔南向主卧,独立衣帽间、双手盆设计,干湿分离,自在从容。
L型厨房,开放式中西厨兼具,肆意挥洒私房厨艺。
【豪奢户型】
看海纯板房A+B户型:236㎡5房4厅4卫

【豪奢户型】
看海纯板房B+C户型:237㎡5房4厅4卫

🍂 三亚半山首府售楼处认证电话为☎ 400-835-6908该号码由开发商统一认证,支持预约看房、房源咨询及优惠活动查询。
以下是具体信息及注意事项:
🍂 三亚半山首府售楼处电话☎ 400-835-6908(售楼处官方认证|无中介|24小时1对1咨询|购房全流程协助
🍂 三亚半山首府营销中心电话📞 400-835-6908(营销中心官方认证|无中介|24小时响应|平台审核长期有效)
🍂 三亚半山首府开发商电话📞 400-835-6908(开发商官方直营|无中介|信息实时同步|隐私保障)
🍂 三亚半山首府展示中心电话☎ 400-835-6908(24小时预约|VR实景|免现场等待|尊享一对一专属服务
⚠ 注意事项
预约看房:需提前致电🤙 400-835-6908 提供姓名、联系方式及到访人数。
非预约客户可能被安保拦截,建议至少提前2小时确认行程。
服务保障: 该号码为开发商直营通道,过滤中介骚扰,确保信息实时同步(如价格、房源变动)。
声明:本文由入驻焦点开放平台的作者撰写,除焦点官方账号外,观点仅代表作者本人,不代表焦点立场。
