海口 文新特.天玺壹号(售楼处)官方网站电话- 文新特.天玺壹号官方营销中心电话预约看房-楼盘详情-最新价格-
扫描到手机,新闻随时看
扫一扫,用手机看文章
更加方便分享给朋友
文新特.天玺壹号
✅✅✅售楼处电话:400-179-0800【已认证】
✅✅✅售楼中心电话;400-179-0800【已认证】
✅✅✅开发商电话:400-179-0800【已认证】
✅✅✅温馨提示:售楼中心〢预约尊享1V1品鉴礼遇〢匠心钜制-恭迎品鉴〢
✅✅✅免责声明:本文所用信息图片来源于网络,如侵权请联系本站及时删除!
文新特·天玺壹号 | 万达旁 城央品质社区建筑面积约95-135㎡高拓户型
项目规划了6栋高层住宅+1栋品质酒店,提供约95-135㎡在内的四大户型,全面覆盖刚需及高端改善客群。
首开2号楼有95㎡2+1房及123㎡3+2房两大户型,几个相当劲爆的看点!
1. 超高使用率:部分户型使用率高达112%,拓展空间惊人,尺度感拉满;
2. LDKB一体化设计:方正通透,纯南北朝向,采光通风俱佳;
3. 高阶装标:科勒/九牧卫浴、全系智能密码锁+王力子母门、方太/老板烟灶、中央空调...全线一线品牌;
4. 贴心细节:可拓展区域全地面铺装,方便装修,品质一步到位。
95㎡户型,刚需必看的超配高拓大三房首先来看95㎡高拓展2+1户型,这一户型直接对标了大三房的居住体验!
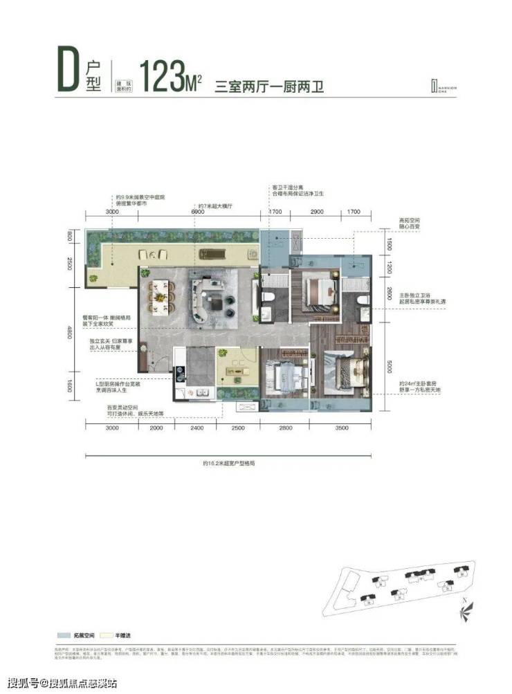
123㎡3+2户型,硬刚160㎡大平层的“全能王”如果说95㎡户型带来的感受是越级体验,那么使用率高达112%的123㎡3+2户型,足以给你带来大平层的奢阔震撼!对于追求空间感和多孩改善需求家庭来都是不二选择。
文新特.天玺壹号
✅✅✅售楼处电话:400-179-0800【已认证】
✅✅✅售楼中心电话;400-179-0800【已认证】
✅✅✅开发商电话:400-179-0800【已认证】
✅✅✅温馨提示:售楼中心〢预约尊享1V1品鉴礼遇〢匠心钜制-恭迎品鉴〢
✅✅✅免责声明:本文所用信息图片来源于网络,如侵权请联系本站及时删除!
声明:本文由入驻焦点开放平台的作者撰写,除焦点官方账号外,观点仅代表作者本人,不代表焦点立场。
