珠海华发香山湖壹号(售楼处电话)首页网站→售楼中心电话→最新楼盘百科详情→楼盘地址/户型/价格→24小时热线电话@售楼处
扫描到手机,新闻随时看
扫一扫,用手机看文章
更加方便分享给朋友
珠海华发香山湖壹号
售楼处电话:400-100-1299转9999
网上售楼中心〢欢迎来电咨询〢1v1销售专业讲解
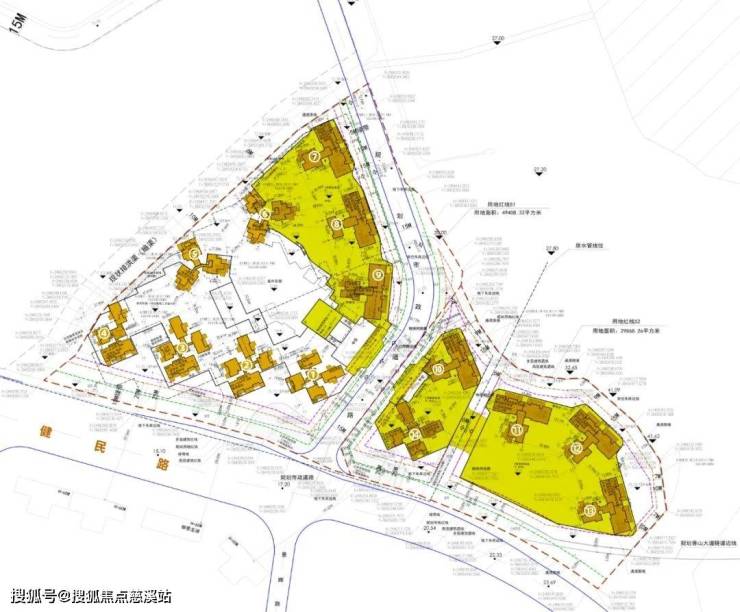
华发香山湖壹号项目位于香洲区健民路北侧、旅游路东侧。
项目总用地面积79276.59㎡,总建设规模约352330.9㎡,规划建14栋高层住宅,2158个机动车位。

项目分两个地块,其中S1地块用地面积49408.33㎡,容积率约3.157,规划建9栋28-32层住宅;S2地块用地面积29868.26㎡,容积率约2.0,规划建5栋11-27层住宅。
项目总平面示意图
华发香山湖壹号,项目用地是华发于2024年12月3日以34.53亿竞得的一宗宅地,也是2024年住宅出让宅地中总价最高的一宗【回顾】。
拿地2天后便火速备案,项目总投资超79亿!有着“地王”光环,华发香山湖壹号备受瞩目,从地块开发条件以及投资金额,都能看出项目不简单。
根据地块出让要求,华发香山湖壹号是珠海“四化”新型住宅产品体系试点项目,要求达到智慧住宅三星级的标准。
从公示的效果图可以看出,项目每户都规划了错层挑高的露台,可瞰凤凰山及梅溪水库等景观。
|区位图(摄于:2025年4月8日)
01、南湾首个新一代住宅,要来了!
实际上,该项目是去年5月30日,华发以总价7.08亿、折合楼面价约11424元/㎡拿下的地块。地块面积不大,总用地只有约2.47万㎡,总建筑规模约9.24万㎡,容积率2.5。但令人期待的是,按照规划,该项目将打造为「智慧住宅」,且要达到智慧住宅三星级的标准。换言之,该项目将是南湾片区首个新一代住宅。
|现场(摄于:2025年4月8日)
今年2月12日,珠海市自然资源局公布了批前公示,首次曝光了该项目的样子。
通过效果图得知,项目共有5栋住宅,其中4栋为32层,1栋为16层。

|效果图
整体呈“L”型,如此一来,可保证户户有景。项目外立面采用大幅的玻璃幕墙,搭配简约暗金色调,极具豪宅感。

|效果图
从最新实探来看,目前该项目正处于地基施工阶段,现场一片热火朝天,距离项目正式入市,想必还有一段时间。
|现场(摄于:2025年4月8日)
除了南屏万雪汇外,天玺花园周边还有南湾华发商都、南屏中学、南屏商业街、珠海容闳学校、香洲区第二人民医院等配套。另外,接下来还有香洲区体育中心(规划中)、香洲区美术馆(建设中)等。总而言之,天玺花园不仅占据相对优越的区位,周边交通便捷,商业、教育、医疗等配套更是一应俱全,生活便利性高。
珠海华发香山湖壹号
售楼处电话:400-100-1299转9999
网上售楼中心〢欢迎来电咨询〢1v1销售专业讲解
声明:本文由入驻焦点开放平台的作者撰写,除焦点官方账号外,观点仅代表作者本人,不代表焦点立场。
