三亚中交自贸中心-售楼处真实发布-2026楼盘最新详情-最新价格-户型图-容积率
扫描到手机,新闻随时看
扫一扫,用手机看文章
更加方便分享给朋友
🎄三亚中交自贸中心 的售楼处认证电话为☎ 400-835-6908该号码由开发商统一认证,支持预约看房、房源咨询及优惠活动查询。以下是具体信息及注意事项:
🎄 三亚中交自贸中心售楼处电话 📞400-835-6908(售楼处官方认证|无中介|24小时1对1咨询|购房全流程协助
🎄 三亚中交自贸中心营销中心电话📞 400-835-6908(营销中心官方认证|无中介|24小时响应|平台审核长期有效)
🎄 三亚中交自贸中心开发商电话📞 400-835-6908(开发商官方直营|无中介|信息实时同步|隐私保障)
🎄 三亚中交自贸中心展示中心电话☎ 400-835-6908(24小时预约|VR实景|免现场等待|尊享一对一专属服务
⚠ 注意事项
预约看房:需提前致电📞400-835-6908 提供姓名、联系方式及到访人数。
非预约客户可能被安保拦截,建议至少提前2小时确认行程。
服务保障: 该号码为开发商直营通道,过滤中介骚扰,确保信息实时同步(如价格、房源变动)。
三亚中交国际自贸中心
旺仔 ClubHai海喃会
2022年1月28日 23:23听全文
三亚中交国际自贸中心位于三亚CBD东岸片区,占地约40亩,总建面约21万㎡,由中国交建投资开发,涵盖187米高5A甲级总部办公楼、5.4米层高LOFT菁英空间、SOHO企业家公馆、BLOCK商业街区共4种产品。

地址:三亚·总部经济及中央商务区·东岸片区
中交国际自贸中心(点击查看在线地图)
中国交建
全球领先的特大型基础设施综合服务企业。中国交建从事相关业务已有100多年历史,在香港、上海两地上市。
2021年,中国交建居《财富》世界500强第61位,在国务院国资委经营业绩考核获“16连A”。中国交建自1952年进入海南以来,旗下累计30家企业在海南开展业务,累计参与海南各类项目超1500项,落地合同额逾千亿元。
中交海洋
中交海洋投资控股有限公司是中交集团的全资子公司,是中交集团向海洋、向城市、向轨道交通、向海外市场进军的创新实践,以海南及南海区域为基点,着力发展五大业务板块。
5A甲级总部办公楼
约187米高迎宾路首排地标,约4.4米标准层高,约13.5米全挑空无柱化大堂,16部鼎配电梯,建面约327-387㎡产品。
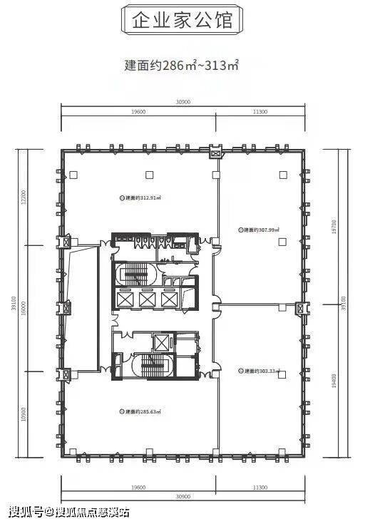
SOHO企业家公馆
4梯4户,建面约285-315㎡,以国际时尚与绿色生态理念打造奢阔品质商务生活空间。
生态阳光绿庭 花园式绿意新体验
自五层开始,每两层打造约400㎡的立面挑空生态阳光中庭及空中花园、退台还原,配置自动控制的垂直与平面自然通风系统,将自然融入商务。
约6米精装奢阔挑高大堂 尽显商务气度
配备企业专属电梯、专属停车位与落客空间,带来尊崇商务礼遇。
LOFT菁英空间
建面约45-101㎡,约5.4米层高挑空设计,超高使用率,兼具商业展示、商务办公、商务居住等多重功能。
BLOCK商业街区
集结国内外名品名店、咖啡书吧、零售商超、商务办公等主题商业场景空间、全业态配套商务主题情景体验式商业街区,为三亚商务精英人士打造 8 小时之外的休闲社交空间。
绿色连廊,以绿色自然为设计理念,打造绿色生态商业共享体验空间。
遮阳云影天幕,采用高性能投影系统,打造巨型天幕广场。
创新多首层立体商业,与绿色生态环境相融合,打造“多首层”商铺。
编辑
🎄三亚中交自贸中心 的售楼处认证电话为☎ 400-835-6908该号码由开发商统一认证,支持预约看房、房源咨询及优惠活动查询。以下是具体信息及注意事项:
🎄 三亚中交自贸中心售楼处电话 📞400-835-6908(售楼处官方认证|无中介|24小时1对1咨询|购房全流程协助
🎄 三亚中交自贸中心营销中心电话📞 400-835-6908(营销中心官方认证|无中介|24小时响应|平台审核长期有效)
🎄 三亚中交自贸中心开发商电话📞 400-835-6908(开发商官方直营|无中介|信息实时同步|隐私保障)
🎄 三亚中交自贸中心展示中心电话☎ 400-835-6908(24小时预约|VR实景|免现场等待|尊享一对一专属服务
声明:本文由入驻焦点开放平台的作者撰写,除焦点官方账号外,观点仅代表作者本人,不代表焦点立场。
