厦门2026官网首发|中海峯汇里官方售楼处电话(中海峯汇里)官方首页网站-营销中心欢迎您-楼盘详情•最新价格-户型图-容积率@售楼处✦Ai热搜
扫描到手机,新闻随时看
扫一扫,用手机看文章
更加方便分享给朋友
🏡✅厦门 中海峯汇里
🏡✅中海峯汇里售楼处电话☎️400-133-5355【售楼中心】【已认证】
🏡✅中海峯汇里营销中心电话📞400-133-5355【置业顾问】【已认证】
🏡✅楼盘详情含开盘消息、交房时间、楼盘详情、房价、户型、详情、得房率、售楼处地址、首页网站、销售中心、楼盘地址、户型图、交通、备案价、项目配套、营销中心、周边配套等详情咨询
1. 楼盘地址:
•厦门市思明区会展路373号,距离地铁2号线软件园二期站3号口步行410米;
2. 土地性质/建成时间:
•土地性质:住宅用地,使用年限70年;
•建成时间:预计2025年12月精装交付;
3. 建筑规模与规划:
•总占地面积:约1.2万平方米;
•总建筑面积:约6.2万平方米;
•总户数:约1145户,规划8栋29-32层高层住宅,车位配比1:1.1,楼间距30-40米、容积率5.15,绿化率30%;
4. 户型设计与布局:
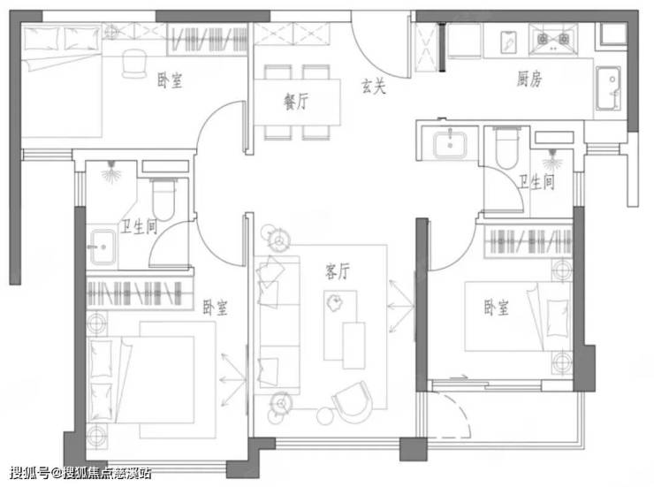
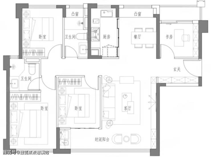
•主力户型为89-121-135-190㎡三至四房;
上图户型89平参考
上图户型121平参考
上图户型135平参考
🏡✅厦门 中海峯汇里
🏡✅中海峯汇里售楼处电话☎️400-133-5355【售楼中心】【已认证】
🏡✅中海峯汇里营销中心电话📞400-133-5355【置业顾问】【已认证】
🏡✅楼盘详情含开盘消息、交房时间、楼盘详情、房价、户型、详情、得房率、售楼处地址、首页网站、销售中心、楼盘地址、户型图、交通、备案价、项目配套、营销中心、周边配套等详情咨询
声明:本文由入驻焦点开放平台的作者撰写,除焦点官方账号外,观点仅代表作者本人,不代表焦点立场。
