三亚 半山首府售楼处电话丨半山首府首页网站-营销中心欢迎您•楼盘详情-最新价格-户型图-容积率@售楼处✦Ai好房子热搜2025/12/2
扫描到手机,新闻随时看
扫一扫,用手机看文章
更加方便分享给朋友
半山首府
☎️售楼处电话:400-179-0800 【售楼中心】
💌 网上售楼中心〢安全通话隐藏真实号码〢一对一热情服务〢
✅售户型图丨项目介绍丨最新房源丨周边配套丨详细解答〢营销中心✅
半山首府
开发商:海南冠洋四通投资有限公司
项目总用地面积:19107.33㎡(约30余亩)
总建筑面积:34890㎡,
可售面积:2.56万余平米,
容积率:1.35
绿化率:41%
总户数:223户
产权年限:70年大产权
交付标准:精装交付
装修风格:轻奢
交付时间:2022年11月底
物业费:5.3元/平米(金地物业)
车位:1:1,地上34,地下189

3栋低密纯板高层建筑,一字布局,南北通透,户户皆享超大观景阳台180°瞰海观山的极致视觉,海天山色尽收眼底。1.35绝版超低容积率只为成就223席高端舒适的完美胜境。

主力户型
享繁华三亚,居半山豪宅
看海纯板房A户型:133㎡3房2厅2卫
看海纯板房B户型:103㎡2房2厅2卫
看海纯板房C户型:134㎡3房2厅2卫
看海纯板房A1户型:130㎡3房2厅2卫
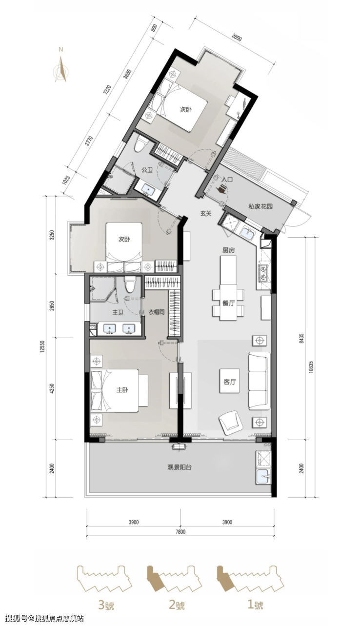
【户型鉴赏:A户型】
三房两厅两卫
建筑面积约:133㎡
全明户型通透格局,尊崇居家彰显非凡。
悦享7.8米观景阳台,户户南向180°观景面。
舒雅南向套房主卧,独立衣帽间、双手盆设计、干湿分离。
独立入户花园,让全家人的出入都尊享从容。

【户型鉴赏:B户型】
两房两厅两卫
建筑面积约:103㎡
南北通透、空间方正,惬意享受阳光海风的馈赠。
悦享7.8米观景阳台,户户南向180°观景面,闲情雅趣,诗意生活。
餐客厅双厅设计、厨房方正、宜中宜西,上演美食盛宴,尽显居家仪式感。
主次卧独立卫生间、生活起居互不干扰,从容切换。

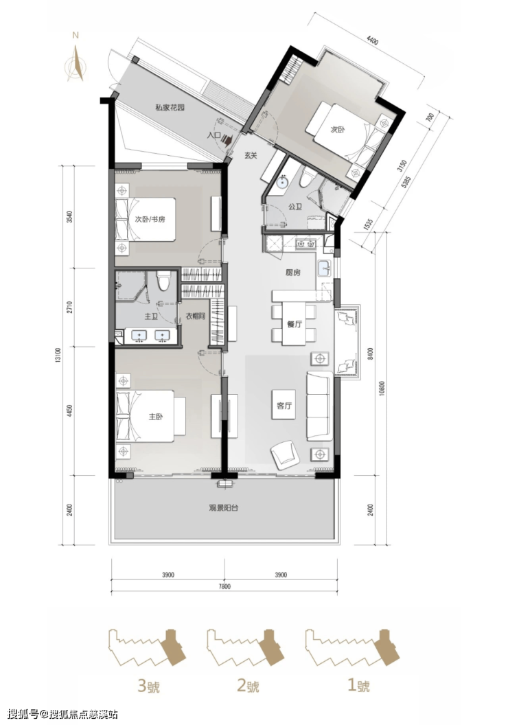
【户型鉴赏:C户型】
三房两厅两卫
建筑面积约:134㎡
通透格局,空间动静合理。
悦享7.8米观景阳台,户户南向180°观景面
奢阔南向主卧,独立衣帽间、双手盆设计,干湿分离,自在从容。
L型厨房,开放式中西厨兼具,肆意挥洒私房厨艺。

【豪奢户型】
看海纯板房A+B户型:236㎡5房4厅4卫

【豪奢户型】
看海纯板房B+C户型:237㎡5房4厅4卫

半山首府
☎️售楼处电话:400-179-0800 【售楼中心】
💌 网上售楼中心〢安全通话隐藏真实号码〢一对一热情服务〢
✅售户型图丨项目介绍丨最新房源丨周边配套丨详细解答〢营销中心✅
声明:本文由入驻焦点开放平台的作者撰写,除焦点官方账号外,观点仅代表作者本人,不代表焦点立场。
