2025郑州焦点楼盘:金茂越秀未来府售楼处电话→首页热搜24小时电话→最新房价→楼盘百科详情→营销中心最新发布@售楼处中心
扫描到手机,新闻随时看
扫一扫,用手机看文章
更加方便分享给朋友
🏡✅郑州 金茂越秀未来府
🏡☎️金茂越秀未来府售楼处电话:400-033-1899转接2222【营销中心】
🏡☎️金茂越秀未来府售楼中心电话:400-033-1899转接2222【已认证】
🏡✅户型图丨项目介绍丨最新房源丨周边配套丨售楼处地址丨样板间丨备案价
一、土拍信息
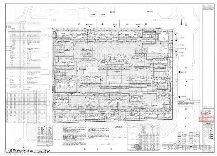
二、项目规划

三、项目信息
——项目基本信息——
【项目名称】金茂越秀·未来府
【占地面积】约103599.08㎡
【建筑面积】约410548.27㎡
【绿地率】约30%
【绿化率】约30%-50%
【容积率】约2.99
【楼栋信息】2T2 / 2T4 / 3T6
【装修情况】毛坯

——臻选8大理由——
▪臻品国央企匠心
中国金茂,世界500强中国中化实力背书;
越秀地产,千亿国企,39载高端人居匠心沉淀,中国城市运营的先行者。
▪臻藏郑东城心
择址经开主城三环内,郑东新区生活圈,高架直通北龙湖、郑州高铁东站等城市板块。
▪臻悦成长教育
已签约经开实验小学、经开外国语中学五中校区,助力孩子未来成长。
▪臻拥都心配套
乐尚生活天地、万锦盛华里、丹尼斯航海天地等繁华汇集,郑州市第七人民医院等优质医疗为健康护航。
▪臻启未来速度
地铁5号线、12号线(在建中)环伺,高铁、机场联动世界。
▪臻赏度假景观
约8500㎡台地景观,约5000㎡艺术庭院,约1000㎡ 全龄活动场,约1公里跑道,约1000㎡ 森系花园。
▪臻享金茂服务
金茂服务,中国增长迅速并领先的高端物业管理。
▪臻筑成长户型
建筑面积约89-168㎡改善奢居,以宽幕尺度、多面宽朝南,关照家庭生活进阶
——圈层价值共识——
01 【国央企 双强联袂】
▪中国金茂 实力央企 改善住宅专家
中国金茂母公司中国中化控股有限责任公司,为全球最大的综合性化工企业,总资产超1.6万亿,世界500强排名109名。万亿央企实力护航,中国金茂深耕一线城市,专注改善精品路线,金茂服务,中国增长迅速并领先的高端物业管理,在2021年物业百强排行榜中位列第17位。
▪越秀地产 千亿国企 匠心沉淀
越秀地产母公司越秀集团为中国跨国公司15强企业,是广州市资产规模最大的国有企业之一,国内资产规模最大的地方驻港企业。越秀地产,中国城市运营的先行者,位列2021年财富中国500强、中国地产50强、品牌价值30强。
央企国企联袂 护航品质交付
中国金茂作为“三道线”全绿的品质开发商,资金实力、土地资源、产品品质等硬实力值得信赖,业内有口皆碑;越秀地产始终秉持国企匠造之心,坚持“精质美筑”理念,在绿色建筑、文化教育、公益捐赠等方面积极作为,社会和行业口碑出众。央企国企联袂,双强实力护航品质人居。

02【都市休闲 度假式园林】
▪台地景观 前瞻园艺美学
依托约5米高差阶梯型地形,构筑约8500㎡三阶叠景度假式园林。
▪约5000㎡中央艺术庭院
结合森境大堂、摩登会客厅、岛屿咖啡厅等植物空间,形成中央艺术会客厅。
▪约1000㎡全龄多功能活动场
小鸟莎莎历险记主题IP,全龄多功能运动场。
▪约1公里跑道
主题环跑,居者下楼即可健身。
▪约1000㎡ 森系治愈花园
创意型生活秀场,打造治愈型邻里社交场所。
▪四季全景生活
四大道植物景致轴:银杏大道、樱花大道、海棠大道、玉兰大道。
四大植物主题空间:樱花园、石榴园、玉兰园、乌桕园。
03【立体路网 未来速度】
▪双地铁环伺
地铁5号线中原福塔站、12号线圣佛寺站(在建中)
▪六维路网
南三环、航海路、陇海路畅行无阻,东三环、经开第五大街、机场高速通达全城
04【中小学已签约 守护成长】
▪签约小学:经开区实验小学

签约中学:经开区外国语中学五中
05【郑东主环 城市核芯】
▪郑东主环线 中原发展高地
择址经开主城三环内,郑东新区生活圈,高架直通北龙湖、郑州高铁东站等城市重要片区,是河南自贸区板块的核芯腹地;亦是中原实体经济高地,代言未来发展朝向
06【醇熟都芯 荟萃繁华】
▪商业
约600米至经开商业中心乐尚生活天地, 万锦盛华里购物中心 / 丹尼斯航海天地 / 富田财富广场等商业。
▪医疗
郑州市第七人民医院为健康护航,此外,地铁5号线沿线三甲医院环伺
🏡✅郑州 金茂越秀未来府
🏡☎️金茂越秀未来府售楼处电话:400-033-1899转接2222【营销中心】
🏡☎️金茂越秀未来府售楼中心电话:400-033-1899转接2222【已认证】
🏡✅户型图丨项目介绍丨最新房源丨周边配套丨售楼处地址丨样板间丨备案价
声明:本文由入驻焦点开放平台的作者撰写,除焦点官方账号外,观点仅代表作者本人,不代表焦点立场。
