宝佳近山庭院售楼处电话_售楼处地址(太原宝佳近山庭院)2025首页网站-最新房价-楼盘百科
扫描到手机,新闻随时看
扫一扫,用手机看文章
更加方便分享给朋友
太原宝佳近山庭院
售楼处电话:400-100-1299转5999
网上售楼中心〢欢迎来电咨询〢1v1销售专业讲解
宝佳近山庭院国企品质,实力保证,紧邻长风东街,唯一城市叠墅,新中式低密度社区占地面积约5.3万方,建筑面积约11万方,规划15栋6层叠墅,上、中、下叠,面积区间约:134-237㎡,社区通透性与舒适性更佳,全部为6层电梯叠墅,私家电梯入户,院子/露台/地下室多重附赠,附赠率高达150%。
项目信息
开发商:山西宝佳长风房地产开发有限责任公司
产权:住宅50年
项目规划:总建面10.8万㎡
容积率:1.2
绿化率:34.44%
户型配比:共15栋6层电梯叠墅,318户。
车位比:1:2
建筑风格:新中式;
物业:太原市怡安居物业管理有限公司;
物业费:含电梯费2元/月/平米(产权面积)
交房状态:叠拼毛坯交房;
采暖:集中供暖
交房时间:2023年 12 月31 日
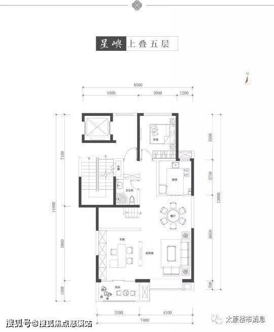
产品信息上叠
套数:106套
建筑面积:150-237㎡
露台面积:约74㎡
附赠面积:约112㎡(含露台面积、地下室面积、室内挑空面积)
太原宝佳近山庭院售楼处电话:400-100-1299转5999网上售楼中心〢欢迎来电咨询〢1v1销售专业讲解
声明:本文由入驻焦点开放平台的作者撰写,除焦点官方账号外,观点仅代表作者本人,不代表焦点立场。
