【中投·悦府】售楼处丨2025三亚【中投·悦府】24小时电话丨地址丨最新动态
扫描到手机,新闻随时看
扫一扫,用手机看文章
更加方便分享给朋友
三亚【中投·悦府】
🌈🔥售楼处电话☎️400-033-1899转接6666【售楼中心】【已认证】
🌈🔥营销中心电话☎️400-033-1899转接6666【营销中心】【已认证】
🌈🔥开发商营销中心-----欢迎来电预约尊享折扣-----匠心钜制恭迎品鉴
👑建筑面积约85.36_166平米纯板式住宅
🚕项目地址:天涯区金鸡岭街政法路7号
🏠开发商:海南中投合通实业发展有限公司
🌇占地面积:8191.67㎡
🏠建筑面积:41438.26㎡
🎆容 积 率:3.5
🌳 绿 化 率:40%
🏢产权年限:70年
🔑总 栋 数:4栋
🏢楼层总高: 2-23层
💎总 户 数:277户
💰停车总位:308个
🎀现房销售
2#在售户型(现房)
B户型:85.36㎡两房两厅两卫
A型:87.71㎡三房两厅
3#楼在售户型(现房)
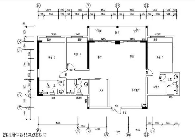
B户型:166.46㎡ 四房两厅三卫
园林休闲区(实景)
三亚【中投·悦府】
🌈🔥售楼处电话☎️400-033-1899转接6666【售楼中心】【已认证】
🌈🔥营销中心电话☎️400-033-1899转接6666【营销中心】【已认证】
🌈🔥开发商营销中心-----欢迎来电预约尊享折扣-----匠心钜制恭迎品鉴
声明:本文由入驻焦点开放平台的作者撰写,除焦点官方账号外,观点仅代表作者本人,不代表焦点立场。
