三亚【华润观岚】丨营销中心真实发布丨2025售楼处预约电话➢样板间预约电话➢楼盘怎么样➢售楼中心24小时电话➢/价格/备案价/户型解析
扫描到手机,新闻随时看
扫一扫,用手机看文章
更加方便分享给朋友
三亚【华润观岚】
🔵 售楼处电话✔️✔️✔️400-112-7077【24小时在线,周末无休】【已认证】
🔵 营销中心电话✔️✔️✔️400-112-7077【24小时在线,周末无休】【已认证】
🔵 开发商营销中心-----欢迎来电预约尊享折扣-----匠心钜制恭迎品鉴
华润置地·观岚,坐落于三亚市吉阳区迎宾路与海螺一路交汇往南1.2公里的黄金地段(紧邻海罗小学南侧),占据三亚核心区域——中央商务区海罗单元,是城市更新海罗片区的重要成果之一。项目一期总建筑面积约6.5万平方米,以低密度、高绿化的设计理念,打造容积率仅为2.5、绿地率高达40%的宜居环境,确保每位业主都能享受到自然与繁华并存的舒适生活。
【稀缺资源,尊享生活】
项目周边自然资源得天独厚,被国家4A级景区凤凰岭公园、临春岭公园、红树林生态公园、东岸湿地公园、金鸡岭公园、中央公园及体育公园七大公园环抱,让每一次归家都成为一场穿越自然的旅行。此外,海旅免税城、海旅超体、大悦城、青春颂、乐天城等商业配套一应俱全,满足您购物、娱乐的多元化需求。
医疗与教育方面,项目周边汇聚了上海妇幼保健院、三亚市第三人民医院、三亚市人民医院、三亚市中医院等优质医疗资源,以及海罗小学、巴蜀中学、丹州小学、华侨学校高中部、丰和学校等名校,为孩子的成长保驾护航。
【项目特色,引领高端度假新风尚】
华润置地·观岚作为三亚市区内唯一的围合式小高层住宅,以野奢高端度假社区为定位,内造园景,外揽山景,实现了自然与建筑的和谐共生。项目采用17层住宅设计,1梯2户的配置,确保了居住的私密性与舒适度。面积区间涵盖110-180㎡,满足不同家庭的居住需求。
尤为值得一提的是,项目户户近100%得房率,私家电梯厅私密独享,户内超高赠送空间,让每一寸空间都物超所值。围合式布局不仅打造了南北通透的居住环境,更以中轴水系延伸景观,设置泛会所入户大堂,让业主在游园式归家的过程中,享受双动线带来的独立与私密。
【户型鉴赏,精研每一寸空间】
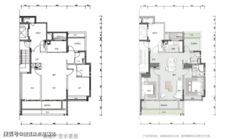
110㎡中间户《通厅三面宽户型》:该户型设计巧妙,LDKB一体格局,三个卧室独立分布,U型厨房动线简洁,互不干扰,轻松实现三房功能,满足家庭多样化需求。
130㎡《巨幕宽厅户型》:南向客厅面宽达7米,进深4米,空间利用率极高。L型厨房与客厅紧密相连,南向直面景观公园带,让每一次家庭聚会都充满自然的气息。
三亚【华润观岚】
🔵 售楼处电话✔️✔️✔️400-112-7077【24小时在线,周末无休】【已认证】
🔵 营销中心电话✔️✔️✔️400-112-7077【24小时在线,周末无休】【已认证】
🔵 开发商营销中心-----欢迎来电预约尊享折扣-----匠心钜制恭迎品鉴
声明:本文由入驻焦点开放平台的作者撰写,除焦点官方账号外,观点仅代表作者本人,不代表焦点立场。
