保利龙城璞悦(售楼处)首页网站-保利龙城璞悦营销中心-保利龙城璞悦欢迎您-楼盘详情-最新价格-户型图-容积率@售楼处
扫描到手机,新闻随时看
扫一扫,用手机看文章
更加方便分享给朋友
保利龙城璞悦
售楼处电话:400-100-1299转5888
网上售楼中心〢欢迎来电咨询〢1v1销售专业讲解

位于龙城大街北侧的新楼盘,保利龙城璞悦,正式签约了九一小学恒大华府校区。买下房子,拿上网签合同,直接明年九月份入学,不需要等到交房。没有学位名额限制,就是保证买了本项目业主都可以上了恒大华府九一小学。业主直系三代都可以直接上。二手房业主,不可上。
【项目信息】
开发企业:太原保君利城房地产开发有限公司占地
面积:约5.89万㎡
建设面积:约24.51万㎡
容积率:3.35
产权性质:70年
规划户数:820户
🏣楼层状况:20-31高层住宅
👉总栋数:7栋
👉装修标准:独梯独户,中式风格精装交付。
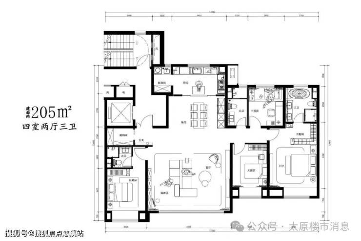
👉在售户型:145㎡、180㎡、205㎡
👉在售楼栋:1#2#3#
1号楼总高31层:145㎡(15300到17500)
3号楼总高31层:180㎡(15500到17500)
2号楼总高20层:205㎡(18000到19500)
👉交房时间:2026年10月30日
👉住宅层高:3.1m
👉车位配比:1:1
👉物业:保利物业
📢商业:龙城万达,国际金融中心,北美N1
👉生态:龙城公园,祥云公园,汾河公园
👉建筑类型:高层、独栋商业、写字楼
👉采暖:地暖-市政供热
🌟产权年限:70年

【龍首處 見東方】
龍首處 汾河畔
建面约 145-205㎡
TOP級東方人文藏品

保利龙城璞悦项目区位图
龙首之地 三晋璀璨之所在
汾河之冠 三晋文脉之渊源
龙城大街与汾河的经纬交织——龙首之冠

龙城大街板块——【龙首之地 三晋璀璨之所在】
【政务中心/头部红利】——城市政务红利政企头部汇聚牵引城市资源的不断南移,也让区域在城市迭新中获得大量资源倾斜,成为一个区域的政治心脏,也是未来片区发展最好的背书,区域红利不断兑现,成为执掌时代的发展的焦点。

【纵横路网/枢纽门户】——交通核心枢纽三横四纵的立体交通路网,地铁2号线快速连接城市南北,满足您全家人的出行需求,同时摆脱交通拥堵,缩短时间成本,从而自如掌控生活的节奏,快速接驳太原南站-高铁枢纽,轻松融入京津冀一小时经济圈。武宿机场-国际航空枢纽,满足商务出行需求。

【人文长廊/滨河封面】——生态资产封面项目周围两大城市级公园绿地环绕,西侧距汾河公园绿色生态长廊仅900米。项目所在的汾河公园三期是汾河晚渡最佳观景点,为“古晋阳八景”之一。以河为贵,也成为太原豪宅市场的共识,汾河之上的皇冠桥,汾河祥云桥段也被称为汾河之冠。它承载着一城的财富与骄傲,与世家门第的生活向往。

【重奢商业/高奢酒店】——商圈商务集群龙城万达、北美N1、苏宁广场三大商业综合体的环绕,更多元的一站式繁华生活,首家喜来登五星级酒店开业,为龙城注入全新时尚活力与高端居住体验。磅礴的人流消费,几大商圈的聚集,就是一个城市综合价值最坚挺的热土。

前沿教育/一流师资】——省级精英优教省级精英教育学圈 全学龄段一流院校山大附小(汾东校区)、九一小学、太原新五中、山西省实验中学、通宝育杰等全龄段优教云集,构筑全城独有的文化教育产业区。

【权威医养/全龄呵护】——权威医养配置项目直线距离1公里范围内包含两大三甲医院,配置国际一流设备,国家级医学专家,包括全省规模最大、功能最全、标准最高的现代化综合性三甲医院:山西白求恩医院;省内针对产科、儿科、新生儿科三个专业医疗领域最权威、最优质的医疗中心。省级产科、儿科、新生儿科权威医院:山西省儿童医院(山西省妇幼保健院)。

【豪宅林立/纯粹圈层】——天赋豪宅贵土项目所在龙城大街板块城市核心热土,与汾河豪宅天际线相交汇,得天独厚的“城市资源型豪宅”的地理条件,让这一区域豪宅林立、地王频出,如今早已稀贵如金、一席难得。经过十余年醇熟蜕变,拥有一线城市界面,城市塔尖客群汇聚,聚合全城鼎级圈层,构建太原最为纯粹的龙城豪宅富人区。
保利龙城璞悦
售楼处电话:400-100-1299转5888
网上售楼中心〢欢迎来电咨询〢1v1销售专业讲解
声明:本文由入驻焦点开放平台的作者撰写,除焦点官方账号外,观点仅代表作者本人,不代表焦点立场。
