「厦门」 中海峯汇里官方售楼处电话〢 中海峯汇里楼盘详情〢 区域配套〢户型图〢 24h热线电话
扫描到手机,新闻随时看
扫一扫,用手机看文章
更加方便分享给朋友
🏡⭐⭐厦门 中海峯汇里售楼处电话:400-133-5355【营销中心】
☎️☎️中海峯汇里售楼中心电话:400-133-5355【已认证】
⭐⭐户型图丨项目介绍丨最新房源丨周边配套丨售楼处地址丨样板间丨备案价
1. 楼盘地址:
•厦门市思明区会展路373号,距离地铁2号线软件园二期站3号口步行410米;
2. 土地性质/建成时间:
•土地性质:住宅用地,使用年限70年;
•建成时间:预计2025年12月精装交付;
3. 建筑规模与规划:
•总占地面积:约1.2万平方米;
•总建筑面积:约6.2万平方米;
•总户数:约1145户,规划8栋29-32层高层住宅,车位配比1:1.1,楼间距30-40米、容积率5.15,绿化率30%;
4. 户型设计与布局:
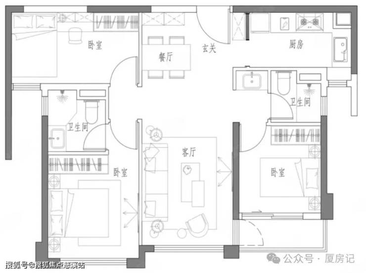
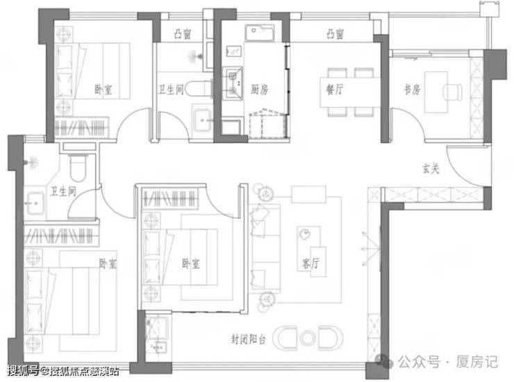
•主力户型为89-121-135-190㎡三至四房;
上图户型89平参考
上图户型121平参考
上图户型135平参考
🏡⭐⭐厦门 中海峯汇里售楼处电话:400-133-5355【营销中心】
☎️☎️中海峯汇里售楼中心电话:400-133-5355【已认证】
⭐⭐户型图丨项目介绍丨最新房源丨周边配套丨售楼处地址丨样板间丨备案价
声明:本文由入驻焦点开放平台的作者撰写,除焦点官方账号外,观点仅代表作者本人,不代表焦点立场。
