崖州湾顺达花园-售楼处真实发布-2026楼盘最新详情-最新价格-户型图-容积率
扫描到手机,新闻随时看
扫一扫,用手机看文章
更加方便分享给朋友
🌙崖州湾顺达花园售楼处认证电话为☎ 400-877-5355该号码由开发商统一认证,支持预约看房、房源咨询及优惠活动查询。以下是具体信息及注意事项:
🌙崖州湾顺达花园售楼处电话☎ 400-877-5355(售楼处官方认证|无中介|24小时1对1咨询|购房全流程协助
🌙崖州湾顺达花园营销中心电话📞400-877-5355(营销中心官方认证|无中介|24小时响应|平台审核长期有效)
🌙崖州湾顺达花园开发商电话📞400-877-5355(开发商官方直营|无中介|信息实时同步|隐私保障)
🌙崖州湾顺达花园展示中心电话☎400-877-5355(24小时预约|VR实景|免现场等待|尊享一对一专属服务
⚠ 注意事项
预约看房:需提前致电🤙400-877-5355 提供姓名、联系方式及到访人数。
非预约客户可能被安保拦截,建议至少提前2小时确认行程。
服务保障: 该号码为开发商直营通道,过滤中介骚扰,确保信息实时同步(如价格、房源变动)。
崖州湾·顺达花园
项目总占地:82.06亩
总建面:17.5万方
总户数:1125户
容积率:2.5
绿化率:40%
物业费:3.6元/平米
电费:0.68元/度
水费:3.1元/吨
天然气:2.94元/立方
车位:只租不售,3个月以上180元/月,3个月以下250元/月
产权:70年大产权
车位比:1:1.2
层高:3.15米
总层高:26层
在售产品:住宅 商铺
在售楼栋:5#、6#两梯五户(主推6#)货包充足 、7号楼待售
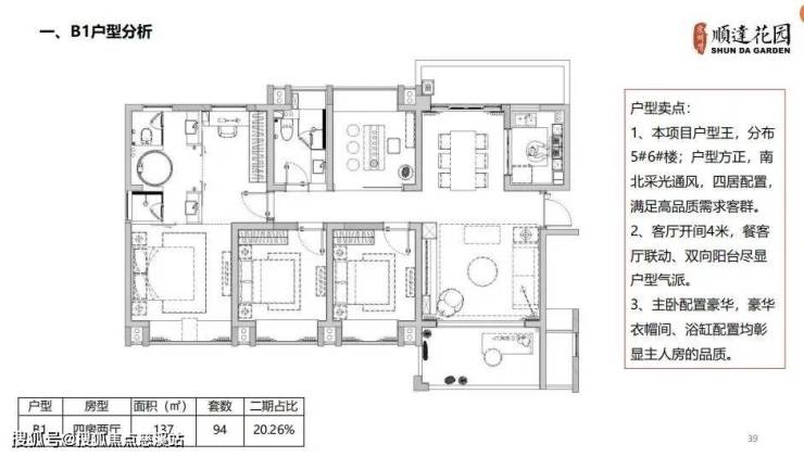
在售户型:103,105平米三房两厅两卫,137平米四房两厅两卫
销售均价:住宅硬装21000-25000元/平米
交付标准:精装
交付时间:现房
小区入口:1个人行入口,三个地下车入口
商铺资料
销售均价:3.8万-4.2万/平米
销售面积:45-111平米,197-206平米
物业费:6元/㎡/月
购买方式:按揭,一次性
项目位于崖州老城区及创意新城两大板块之间的核心区域,三亚下一个价值高地。周边教育资源丰富、公共服务配套完善,交通路网四通八达,居住环境舒适便捷。
西翼以崖州湾为代表,这里的发展将借鉴东翼发展的成功与不足,重点打造,使之成为西线发展的带动点和形象展示区,实现三亚发展两翼齐飞。将是三亚发展的4.0时代,下一个价值高地。是海南自贸区建设先行引领区!
(一)双港双城五组团
双港包括南山港和中心渔港;双城包括崖州湾科技城重点片区(包括南繁科技城、深海科技与大学城、崖城综合服务区)和崖州古城;五组团包括南山佛教文化圣地组团、梅山山海公园组团、保港科技预留组团,以及梅山、镇海远景发展组团。
(二)一河六湖数溪连
一河指宁远河;六湖包括岭落水库、三联水库、牛落水库、北岭水库、抱古水库和大隆水库;数溪连指盐灶河、石沟溪河等多条溪流水系。
(三)百村千顷南繁科技田
保护千顷南繁科技田,建设内涵丰富、功能齐全、特色鲜明的美丽宜居乡村网络,以景区式乡村与南山梅山融合、农业型乡村与南繁科技融合、历史文化名村与乡愁体系融合、滨海乡村与旅游路线融合的方式,推动城乡融合,建设人居环境适宜、低碳经济发达、生态环境优美、文化魅力独特、社会文明祥和的社会主义美丽宜居乡村。
三城重点建设:南繁科技城、深海科技城以及大学城
【南繁科技城】国家南繁科研的育种基地,将建成中国的“种业硅谷”, 主要发展农作物,促进农产品贸易发展,规划建设6000亩。
【深海科技城】以深海科技城为载体发展深海科技产业,重点包括深海科技、海洋产业和现代服务,目前由中船重工在开发建设。
【科教城】崖州湾科技城中建设的大学院校主要以深海和南繁科研方向为主。目前已有一批院校集聚。
------------------------------------------
🏊小区配套:中心景观公园、1万㎡沿街区商业、阳光泳池、夜景慢步道、全龄段活动中心社区服务中心等。
🏨教育配套:梦嘟嘟幼儿园,寰岛实验小学,南开学校,上海交通大学
梦嘟嘟幼儿园2016年9月份已开园
寰岛实验小学2019年9月已开学
🏥医疗配套:项目与哈医大鸿森医院签约专属医联体合作社区,国康医院(首家台资三级甲等医院)、崖城中心医院
🍜生活配套:乐购超市、人人家超市、佳美购物广场等;崖州湾科技城农贸市场、古城菜市场、南滨菜市场、水南蔬菜批发市场、崖州中心渔港
崖州中心渔港是中国最南端规模最大渔港,每日即可购买到新鲜实惠的海鲜
公园配套:六大公园:通海公园、滨海公园、南繁公园、滨河公园、观海公园(规划中)
酒店配套:五星级希尔顿格芮精选酒店、四星级科宝庄园大酒店
娱乐及景点资源方面:鲸世界·科技海洋馆、5A级南山寺、大小洞天、崖州古城、崖州湾、天涯海角、西岛、兰花大世界等
【七大投资理由】
【区域价值】
海南大力发展南海新区,三城三地一古镇,区域成长价值巨大
【交通价值】
崖州交通枢纽、水陆空三维一体的交通模式,出行畅达便捷
【规模价值】
南海新区门户大盘,17万㎡文旅社区,全新人居典范
【配套价值】
于内,独享文旅大社区生活配套,于外,尽享崖州老城与新城便捷配套,古城之下的旅居天堂
【产品价值】
三亚价值洼地,以高性价比享103-111㎡奢华度假三房
【品牌价值】
顺达海南开篇之作,只为打造崖州文旅新标杆
开发商自持骏阳物业,1:1.03全地下室停车位,人车分流,红外监控,24小时巡逻,最大限度保护业主的安全
【品质价值】
严格把控每一道工序,采用一线品牌装修,致力于给客户最奢华的居住体
户型图:
🌙崖州湾顺达花园售楼处电话☎ 400-877-5355(售楼处官方认证|无中介|24小时1对1咨询|购房全流程协助
🌙崖州湾顺达花园营销中心电话📞400-877-5355(营销中心官方认证|无中介|24小时响应|平台审核长期有效)
🌙崖州湾顺达花园开发商电话📞400-877-5355(开发商官方直营|无中介|信息实时同步|隐私保障)
🌙崖州湾顺达花园展示中心电话☎400-877-5355(24小时预约|VR实景|免现场等待|尊享一对一专属服务
⚠ 注意事项
预约看房:需提前致电🤙400-877-5355 提供姓名、联系方式及到访人数。
非预约客户可能被安保拦截,建议至少提前2小时确认行程。
服务保障: 该号码为开发商直营通道,过滤中介骚扰,确保信息实时同步(如价格、房源变动)。
声明:本文由入驻焦点开放平台的作者撰写,除焦点官方账号外,观点仅代表作者本人,不代表焦点立场。
