郑州【招商嵩雲序】售楼处电话-郑州【招商嵩雲序】总部营销中心发布-郑州【招商嵩雲序】24小时热线
扫描到手机,新闻随时看
扫一扫,用手机看文章
更加方便分享给朋友
郑州【招商嵩雲序】🔴售楼处电话☎400-033-1899转接7777【售楼中心】【已认证】
郑州【招商嵩雲序】🔴营销中心电话📞400-033-1899转接7777【营销中心】【已认证】

招商首进主城的顶奢作品招商嵩雲序,带着低密洋房+四代住宅的王炸组合,强势落子东风路南阳路的黄金十字轴,在郑州卖房17年的晓强,今天将带你解密这个未开先火的神盘:央企打造的顶奢四代宅长啥样?166㎡洋房得房率真能突破122%吗?三环内+双地铁口,但划属惠济区的地段价值又到底怎么算?更关键的是:它值不值得冲?多少钱入手不踩坑?又适合哪些改善客上车?刚需划走,改善必看,点赞收藏跟着晓强深挖干货,让你在郑州买房少走弯路!
郑州【招商嵩雲序】🔴售楼处电话☎400-033-1899转接7777【售楼中心】【已认证】
郑州【招商嵩雲序】🔴营销中心电话📞400-033-1899转接7777【营销中心】【已认证】
先看招商嵩雲序的低密基因如何碾压主城?作为今年三环内首个纯改社区,招商嵩雲序以央企背书+2.99容积率的硬核配置,成为主城改善标杆。40亩地块搭配35%绿地率+25%建筑密度,这意味着近四分之三的土地都留给了绿化和公共空间,真正践行了四代住宅的低密宜居本质。

招商嵩雲序【郑州】🌎🔴售楼处电话☎️400-033-1899转接7777【售楼中心】【已认证】
招商嵩雲序【郑州】🌎🔴营销中心电话📞400-033-1899转接7777【营销中心】【已认证】
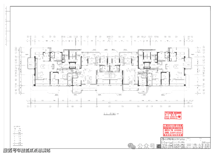
社区采用3排2列对称布局,北侧两栋31层瞰景高层,中间1栋高层(西单元30层/东单元26层)与1栋洋房、南侧2栋8层稀缺洋房,形成北高南低,西高东低的布局,最大化的保障了采光与通风效果,也增加了所有户型的居住舒适度。
而楼间距也同样抗打,北侧高层间距41米,高层与洋房38米,二排高层到南侧洋房27米,洋房间24米,这都是远超正常标准的,在三环内土地资源近乎枯竭的当下,招商嵩雲序的低密规划与科学布局,堪称主城改善市场的降维打击。只不过需要注意的是南侧两栋洋房中,靠东洋房离幼儿园18米、靠西洋房距离院墙14米,虽然小区外面是五六层的老房子,但视觉观感和采光,仍建议实地考察再做决定。

然后晓强再唠唠招商嵩雲序产品力的硬核解码,招商嵩雲序8.4万方的住宅总建面里面,竟然藏着超1.4万方的赠送彩蛋,2340㎡装配式奖励不计容面积+5128㎡四代住宅立体阳台全赠送+6666㎡可封闭半算阳台,直接造就了招商嵩雲序综合得房率超95%的逆天表现,对比郑州三代住宅得房率,招商嵩雲序空间魔术那是玩得明明白白。

而更惊艳的是社区内部的隐形配套:4605㎡公服设施就相当于一座微型生活城,1000㎡的菜市场、755㎡的养老设施、2049㎡的幼儿园,还有97平轻商业,101平文化活动站,以及225㎡的便利店,招商嵩雲序真正把生活所需嵌进了社区肌理。走进社区以后呢,771㎡首层架空供雨天遛娃,500㎡下沉庭院配景观瀑布;而1400㎡会所里面更是规划了恒温泳池、私宴厅和健身房,将会成为业主专属的第二会客厅。
还有招商嵩雲序的绿地系统:高达9432㎡的绿地总面积,还专门给老人孩子安排了540㎡的全龄活动区。只有557户的纯改善社区,套均150㎡更是直接过滤掉刚需群体,高层3米/洋房3米1的层高也再次碾压三代伪改善,还有1:1.25的机动车位,户均1.67个的非机动车位,这些藏在数据背后的反内卷操作,才是招商嵩雲序敢称主城顶奢的底气,四代住宅的每个数字都在服务于住得更好的终极目标。想知道公服配套具体位置和影响的,私信我发你详图。

最后聊聊招商嵩雲序的地段争议和价值破局,不少老郑州人,对南阳路和惠济区都存在着天然排斥,而这种排斥也会在无形中,传递给不明究竞的中介小白和新郑州买房人,而招商嵩雲序的南阳路+惠济房本自然是也会加深这种隔阂,不过招商嵩雲序虽属惠济区,却被金水主城配套360°环绕,瀚海海尚/科技市场/正弘城,还有天旺广场/绿茵公园和省中医院等,外人对惠济区和南阳路的偏见,也一点不影响附近30年以上居住人群,对他烟火气与高阶配套兼具的独有钟情,招商嵩雲序的双地铁+三环内,在除了学区漏洞以外实则再无缺憾,唯一减分项仅是行政归属,居住体验实则毫无差别。而外界偏见反而会造就价格洼地,起码无需像金水的中海地王一般靠抢,简单说就是这种价格洼地+配套高地的错位,反而会给地缘改善留出捡漏窗口。

招商嵩雲序预计六月份开盘,精装修交房,仅两种面积段四款户型,全部做到对开门一梯两户私家电梯厅,136㎡的高层边户,是环幕端厅+立体阳台的四房双卫设计,客厅开间7米3,得房率109%;

高层中间户是三开间朝南+四叶草的户型,客厅开间5米3,得房率107%,奇偶错层小露台,同时兼顾实用与隐私

166㎡洋房边户是270°环幕端厅+四代住宅立体大露台,得房率122%,洋房夹边户是方正四叶草户型,空间零浪费,得房率117%,同样有四代住宅大露台

3.1米层高+社区全四房的纯粹布局,几乎可以把招商嵩雲序放进必看清单,加上招商嵩雲序的地价不高,和学区漏洞以及惠济区减分以后,招商嵩雲序的洋房预计也就2万5左右,非常适合附近的地缘改善客户,而高层136平的单价大概率也不会破2,精装260左右的总价,除了地缘改善,对东边八号线和南边3号线附近上班的新郑州人,也同样具备足够大的诱惑力,通勤效率与居住品质双在线,也就更无需担心他未来的流通性。


嵩雲序的惠济区看似是槽点,实则是价格保护罩,比金水同类社区低5000一平米的单价,却共享同等配套。这样的产品,在开启主城改善时代同时,也一定会同步拉升区域房价,你怎么看也欢迎评论区留下你的真知灼见,另外我也把《2025年郑州四代住宅全盘点》和《郑州买房白皮书》置顶在了评论区,有需要的朋友们预约领取就好,郑州买房,关注晓强,17年房产人为你深度剖析每一个楼盘的核心价值与潜在风险,助力你在郑州的购房安全。

郑州【招商嵩雲序】🔴售楼处电话☎400-033-1899转接7777【售楼中心】【已认证】
郑州【招商嵩雲序】🔴营销中心电话📞400-033-1899转接7777【营销中心】【已认证】
声明:本文由入驻焦点开放平台的作者撰写,除焦点官方账号外,观点仅代表作者本人,不代表焦点立场。
