三亚 天正三亚湾壹号营销中心||售楼部电话||售楼部地址||天正三亚湾壹号售楼中心||24小时电话
扫描到手机,新闻随时看
扫一扫,用手机看文章
更加方便分享给朋友
三亚 天正三亚湾壹号
♐售楼处电话(400-033-1899转8888)◆◆
♐来电预约登记——〢尊享Vip一对一专业置业顾问讲解◆◆
♐郑重承诺:开发商售楼处直销,绝不收取任何费用,中介勿扰!◆◆
♐网上售楼中心〢欢迎来电咨询〢提前预约可享内部优惠〢1v1销售专业讲解!◆◆
【天正·三亚湾壹号】
【开发商】 :三亚永基房地产开发有限公司
【产权年限】:2024-2094年
【占地面积】:56.52亩
【建筑面积】:12.8万平方米
【容积率】 :2.5
【绿化率】 :40%
【总层高】 :16-17层
【层高】 :3.1米
【总户数】 :600户
【停车位】 :879个
【物业服务】:天正物业
【交房时间】:2026年中旬
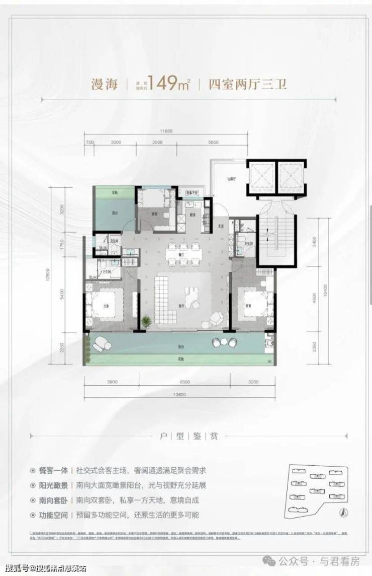
户型分布图

规划建筑面积约126-213㎡观海奢装大平层,约3.1米阔绰层高,部分户型创新设计270°全景飘窗主卧套、四开间朝南等,全成品高标奢装,营造全新舒居体验。
126平米三房三卫(双套房)
149-153平四房三卫(双套房)
177平米四房三卫(双套房)
211/213平米五房三卫(双套房)
三亚湾,三亚四大核心湾区之一,东起鹿回头,西至天涯海角。海岸线绵延约22公里,拥有亚洲第一椰梦长廊,是三亚开发早、城市资源配套全、商业密度高的度假湾区及老牌富人聚集地,也是全市罕有“国”字号美丽海湾,打造三亚“海上会客厅”。(内容来源:《三亚发布》官微)
天正·三亚湾壹号,步行约10分钟即达椰梦长廊,茶余饭后,近享海岸风光。
【约44亩海心公园环伺】
近44亩海心公园萦绕社区,汲取热带、海洋、岛屿三大在地文化基因,营造四幕、九境景观礼序,私享公园里的热带岛屿度假风情。
【高奢酒店集群】
康年酒店 | 国光豪生 | 君澜 | 铂尔曼 | 皇冠假日 | 喜来登 | 洲际VOCO酒店(在建中)| W酒店等十余家高端度假酒店。
【缤纷醇熟商业 】
1公里范围内:羊栏农贸市场、海之眼市集;
2公里范围内:丽禾MOHO、回辉农贸市场;
5公里范围内:龙兴海鲜广场;
8公里范围内:夏日站商业综合体、红树林度假世界、空港百货、大悦城、亿恒主题夜市。
(以上数据来源:地图导航,仅供参考)
【12年优教环伺】
三亚第九小学三亚湾校区,三亚市公立小学前列,三亚中学、上外附中(2023年最新三亚市中考各学校平均分排名第一,海棠湾的人大附中居第二)等优质教育资源。数据来源:微信公众号《真叫卢俊》
【全维三甲医疗 】
约7公里内,享三亚主城优质医疗配套,三亚哈尔滨医科大学鸿森医院、三亚中心医院、解放军425医院等三甲医院。(以上数据来源:地图导航,仅供参考)
【与海800米的默契距离 度假即日常】
距亚洲第一大道——椰梦长廊直线约800米(数据来源地图测距,仅供参考),碧海、蓝天、银沙、阳光、椰林在此交汇,天赋异禀的原生自然风光,度假盛宴时刻上演。
三亚 天正三亚湾壹号
♐售楼处电话(400-033-1899转8888)◆◆
♐来电预约登记——〢尊享Vip一对一专业置业顾问讲解◆◆
♐郑重承诺:开发商售楼处直销,绝不收取任何费用,中介勿扰!◆◆
♐网上售楼中心〢欢迎来电咨询〢提前预约可享内部优惠〢1v1销售专业讲解!◆◆
声明:本文由入驻焦点开放平台的作者撰写,除焦点官方账号外,观点仅代表作者本人,不代表焦点立场。
