Ⓐ郑州 中原润府(售楼处)首页网站丨中原润府营销中心丨中原润府欢迎您丨中原润府楼盘详情-最新价格-户型图-容积率@丨中原润府售楼处
扫描到手机,新闻随时看
扫一扫,用手机看文章
更加方便分享给朋友
🏡✅郑州 中原润府
🏡☎️中原润府售楼处电话:400-033-1899转接2222【营销中心】
🏡☎️中原润府售楼中心电话:400-033-1899转接2222【已认证】
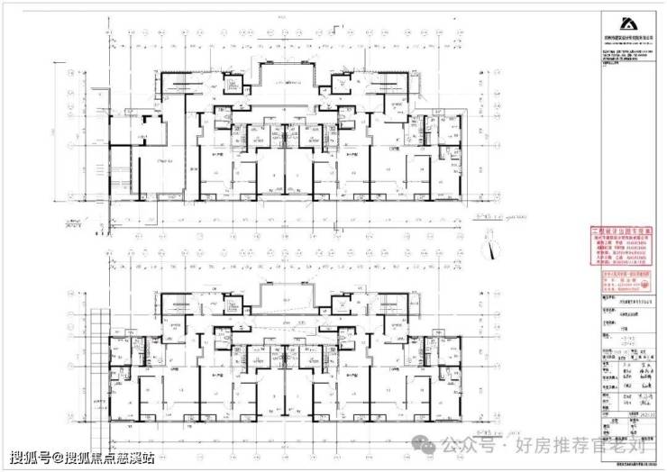
🏡✅户型图丨项目介绍丨最新房源丨周边配套丨售楼处地址丨样板间丨备案价
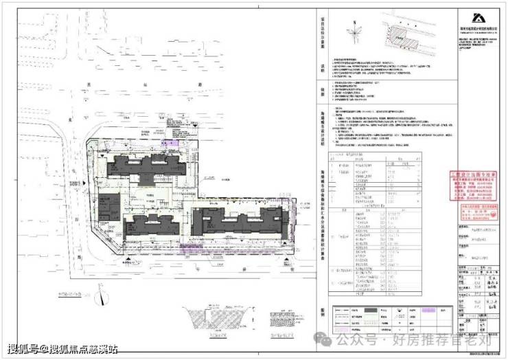
一、规划信息





二、项目信息
中原芯·二环内·地铁口
建面约92-136㎡第四代润系进阶作品
公建化外立面金属铝板玻璃幕墙
超高得房率接近100%
🏡✅郑州 中原润府
🏡☎️中原润府售楼处电话:400-033-1899转接2222【营销中心】
🏡☎️中原润府售楼中心电话:400-033-1899转接2222【已认证】
🏡✅户型图丨项目介绍丨最新房源丨周边配套丨售楼处地址丨样板间丨备案价
声明:本文由入驻焦点开放平台的作者撰写,除焦点官方账号外,观点仅代表作者本人,不代表焦点立场。
