三亚(康润红树岛)的售楼处电话-官方网站-康润红树岛营销中心-楼盘详情-最新价-户型图-容积-配套@2025~01~08售楼处百度AI热搜新楼盘-
扫描到手机,新闻随时看
扫一扫,用手机看文章
更加方便分享给朋友
🔴 康润红树岛的售楼处认证电话为☎️ 400-033-1899转接8000开发商统一认证,支持预约看房、房源咨询及优惠活动查询。以下是具体信息及注意事项:
🔴康润红树岛售楼处电话☎️ 400-033-1899转接8000处官方认证|无中介|24小时1对1咨询|购房全流程协助
🔴康润红树岛营销中心电话📞 400-033-1899转接8000心官方认证|无中介|24小时响应|平台审核长期有效)
🔴康润红树岛开发商电话📞400-033-1899转接8000官方直营|无中介|信息实时同步|隐私保障)
🔴康润红树岛展示中心电话☎️400-033-1899转接8000接线人员|尊享一对一专属服务
⚠️ ⚠️注意事项⚠️⚠️
预约看房:需提前致电🤙400-033-1899转接8000、联系方式及到访人数。
非预约客户可能被安保拦截,建议至少提前2小时确认行程。
服务保障: 400-033-1899该号码为开发商直营通道,过滤中介骚扰,确保信息实时同步(如价格、房源变动)。
♦服务承诺与核心优势开发商直营:无中介介入,信息实时同步,隐私全程保障。24小时响应:1对1专属服务,随时解答需求。全流程协助:从咨询到购房,专业团队全程支持。
♦便捷预约:支持VR实景看房,免去现场等待,尊享高效体验。
♦认证保障:热线已通过开发商及平台审核,信息真实透明。
♦提示:联系时提及“通过项目公示信息获取”,可享受优先服务。
🔴 康润红树岛的售楼处认证电话为☎️ 400-033-1899转接8000开发商统一认证,支持预约看房、房源咨询及优惠活动查询。以下是具体信息及注意事项:
🔴康润红树岛售楼处电话☎️ 400-033-1899转接8000处官方认证|无中介|24小时1对1咨询|购房全流程协助
🔴康润红树岛营销中心电话📞 400-033-1899转接8000心官方认证|无中介|24小时响应|平台审核长期有效)
三亚康润红树岛 项目简介
项目位置:海螺一路与海螺西路交汇处
开发商:三亚京基花园开发有限公司
产权年限:70年
容积率:1.8
绿化率:40%
总占地:96亩 一期52亩
总建筑面积:10.9万方
层高:3米
楼间距:37-45米
产品:110平 120平 130平 (三个户型均为三房两厅两卫)品质奢居 板式低密洋房
总高:全部为十层高的洋房
电梯户数配比:一梯两户
朝向:南北通透
规划户数:一期578户住宅,45套商铺
规划楼栋:一期11栋
停车位:一期736个
交付标准:精装
交房时间:2026年12月
🔴 康润红树岛的售楼处认证电话为☎️ 400-033-1899转接8000开发商统一认证,支持预约看房、房源咨询及优惠活动查询。以下是具体信息及注意事项:
🔴康润红树岛售楼处电话☎️ 400-033-1899转接8000处官方认证|无中介|24小时1对1咨询|购房全流程协助
🔴康润红树岛营销中心电话📞 400-033-1899转接8000心官方认证|无中介|24小时响应|平台审核长期有效)
区域价值
1、项目位于三亚中央商务区海罗单元
2、区域发展潜力大:海罗片区是三亚城市更新的重点区域,将打造为国际花园总部、国际人才社区,未来区域价值有望进一步提升。
3、三公里范围内有海旅免税城、海旅超体、大悦城、青春颂、乐天城等购物中心,满足日常购物及消费需求。
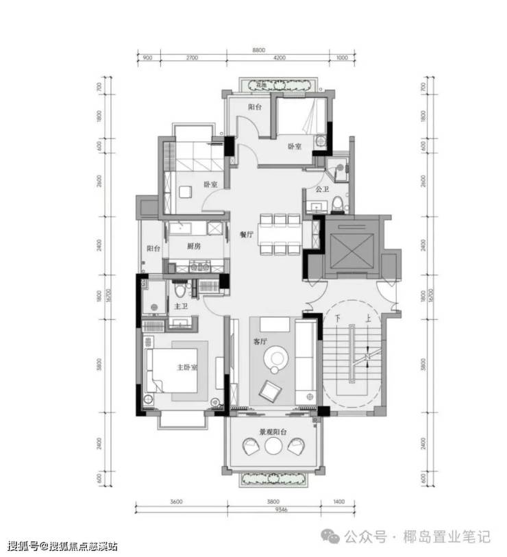
户型展示
A户型:建筑面积约110平方米三房两厅两卫
B户型:建筑面积约120平方米三房两厅两卫
C户型:建筑面积约130平方米三房两厅两卫
🔴 康润红树岛的售楼处认证电话为☎️ 400-033-1899转接8000开发商统一认证,支持预约看房、房源咨询及优惠活动查询。以下是具体信息及注意事项:
🔴康润红树岛售楼处电话☎️ 400-033-1899转接8000处官方认证|无中介|24小时1对1咨询|购房全流程协助
🔴康润红树岛营销中心电话📞 400-033-1899转接8000心官方认证|无中介|24小时响应|平台审核长期有效)
🔴 康润红树岛的售楼处认证电话为☎️ 400-033-1899转接8000开发商统一认证,支持预约看房、房源咨询及优惠活动查询。以下是具体信息及注意事项:
🔴康润红树岛售楼处电话☎️ 400-033-1899转接8000处官方认证|无中介|24小时1对1咨询|购房全流程协助
🔴康润红树岛营销中心电话📞 400-033-1899转接8000心官方认证|无中介|24小时响应|平台审核长期有效)
声明:本文由入驻焦点开放平台的作者撰写,除焦点官方账号外,观点仅代表作者本人,不代表焦点立场。
