海口滨海新天地售楼处电话➢样板间预约电话➢楼盘怎么样➢海口滨海新天地售楼中心24小时电话➢/价格/备案价/户型解析
扫描到手机,新闻随时看
扫一扫,用手机看文章
更加方便分享给朋友
➢海口滨海新天地售楼处400-033-1899转接5888
➢海口滨海新天地售楼处400-033-1899转接5888
➢来电可了解楼盘最新动态、房价、在售房源、交楼时间等信息!让你买的放心,住的舒心!
【开发商】海南滨海集团
【占地面积】228809.53㎡
【建筑面积】682057.59㎡
【容积率】1.88
【绿化率】38.23%
【项目配套】100000㎡商业中心、5A写字楼、星级酒店、商业街区、SOHO公寓
【区域价值】市政府正对面,置身城市中轴线,是海口新城区的CBD
【外部配套】
会议接待:香格里拉酒店/喜来登酒店等12座品牌酒店/海南国际会展中心隆重
自然资源:五源河国家湿地公园/西海岸挺秀公园
休闲度假:西海岸高尔夫球会/美视五月花高尔夫球会/五源河文化体育中心
----------五期新品-----------
【推售楼栋】五期25#
【五期用地】29641.82㎡
【五期建面】85632.62㎡
【五期户数】427户
【产权年限】70年
【楼层朝向】五期共有4栋住宅25#26#27#28#总高16层,2梯4户和2梯5户,主要为南北朝向,26#部分底商,27#28#两层商业门户
【主力户型】建筑面积约105-145㎡二至四房
【交付标准】精装
【交房时间】预计2023年3月
【社区配套】海洋风情式园林、点式水景、亲子乐园、老人活动区,健身活动区,园林漫步道、成人泳池、儿童泳池
【五期车位】地下车库533个
【五期底商】9454㎡
【容积率】2.0
【绿化率】35%
【优势总结】小高层舒适住宅,与市政府为邻,享100000㎡集中商业公园,交通便利,生活繁华
-------项目区位示意图--------
----------鸟瞰意向图-----------
----------缤纷社区园林------------
-------30万㎡商业综合体-------
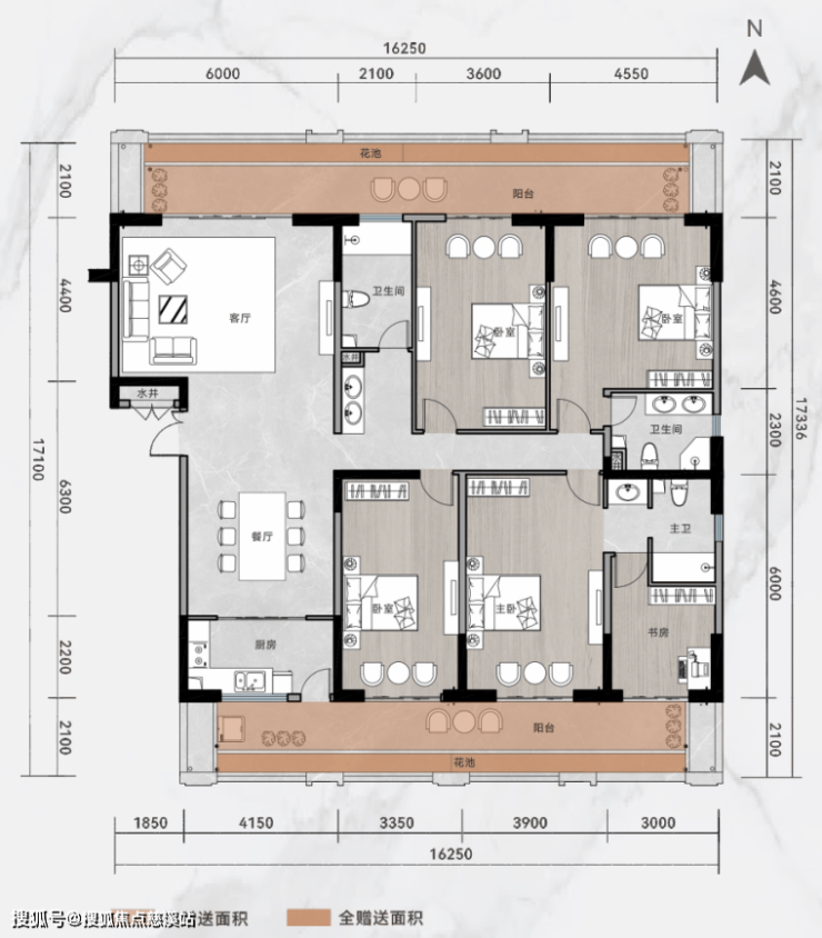
---------户型图----------
242-247㎡大平层




➢海口滨海新天地售楼处400-033-1899转接5888
➢海口滨海新天地售楼处400-033-1899转接5888
声明:本文由入驻焦点开放平台的作者撰写,除焦点官方账号外,观点仅代表作者本人,不代表焦点立场。
