康润红树岛(售楼处) 首页-康润红树岛营销售中心-环境-户型-价格-地址-楼盘详情-配套-电话-交房时间-配套-电话-交房时间
扫描到手机,新闻随时看
扫一扫,用手机看文章
更加方便分享给朋友
☎️三亚 康润红树岛售楼处电话:400-133-5355【售楼中心】
💌 康润红树岛网上售楼中心〢安全通话隐藏真实号码〢一对一热情服务〢
✅售户型图丨项目介绍丨最新房源丨周边配套丨详细解答〢营销中心✅
【一、项目简介】
项目位置:海螺一路与海螺西路交汇处
开发商:三亚京基花园开发有限公司
产权年限:70年
容积率:1.8
绿化率:40%
总占地:96亩 一期52亩
总建筑面积:10.9万方
层高:3米
楼间距:37-45米
产品:110平 120平 130平 (三个户型均为三房两厅两卫)品质奢居 板式低密洋房
总高:全部为十层高的洋房
电梯户数配比:一梯两户
朝向:南北通透
规划户数:一期578户住宅,45套商铺
规划楼栋:一期11栋
停车位:一期736个
交付标准:精装
交房时间:2026年12月
物业费:待定
【二、区域价值】
1、项目位于三亚中央商务区海罗单元
2、区域发展潜力大:海罗片区是三亚城市更新的重点区域,将打造为国际花园总部、国际人才社区,未来区域价值有望进一步提升。
【三、自然资源】
生态环境优越,项目下楼即是525亩红树林湿地公园、东岸湿地公园、临春岭公园等,自然景观优美,空气清新,适合居住和休闲。
【四、交通配套】
项目位于三亚市吉阳区,地块邻近城市主要交通干道凤凰路以及迎宾路,是连接两条主干道的交通枢纽,各区域通达性强。距离三亚凤凰国际机场、三亚站等交通枢纽也较近,便于岛内外出行。
【五、商业配套】
三公里范围内有海旅免税城、海旅超体、大悦城、青春颂、乐天城等购物中心,满足日常购物及消费需求。
【六、教育配套】
教育方面,周边有三亚市阳光贝贝幼儿园、第七小学海螺校区、丰和学校、迎宾学校重庆巴蜀中学三亚校区等学校,教育资源丰富。
【七、医疗配套】
医疗方面,靠近上海妇幼保健院、三亚市中医院,车程十分钟即可到达。片区内还覆盖了三亚市第三人民医院等医疗机构,为居民健康提供保障。
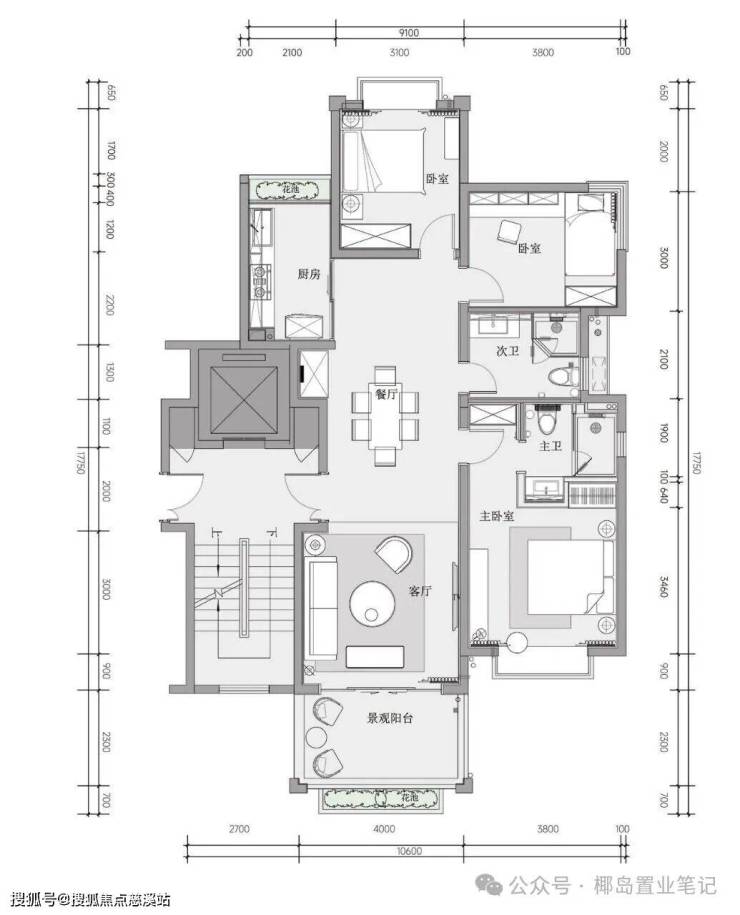
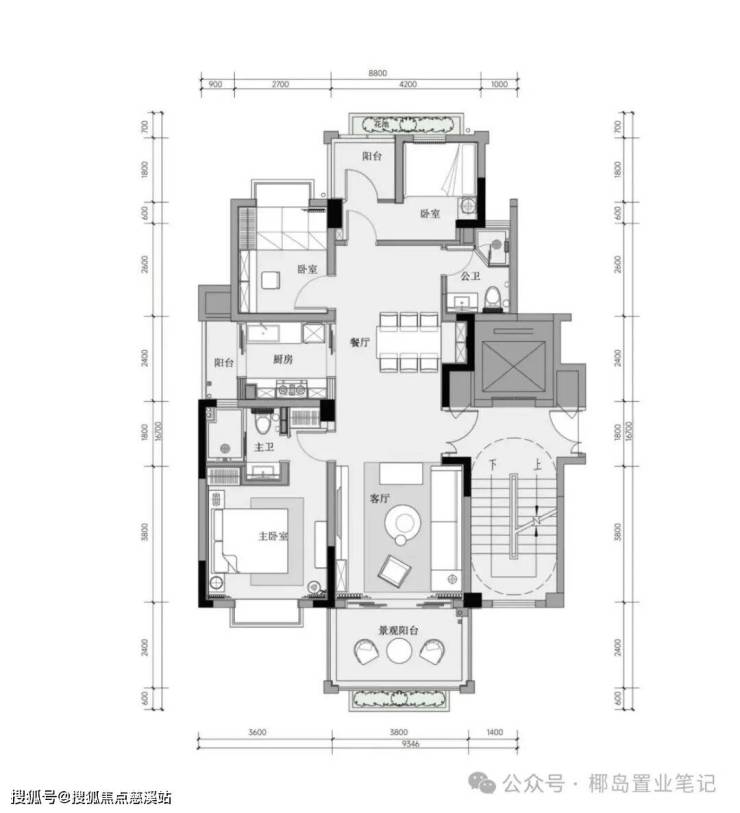
【八、户型展示】
1、A户型:建筑面积约110平方米三房两厅两卫
2、B户型:建筑面积约120平方米三房两厅两卫
3、C户型:建筑面积约130平方米三房两厅两卫
☎️三亚 康润红树岛售楼处电话:400-133-5355【售楼中心】
💌 康润红树岛网上售楼中心〢安全通话隐藏真实号码〢一对一热情服务〢
✅售户型图丨项目介绍丨最新房源丨周边配套丨详细解答〢营销中心✅
声明:本文由入驻焦点开放平台的作者撰写,除焦点官方账号外,观点仅代表作者本人,不代表焦点立场。
