海口观澜湖上东二区售楼处电话➢样板间预约电话➢楼盘怎么样➢海口观澜湖上东二区售楼中心24小时电话➢/价格/备案价/户型解析
扫描到手机,新闻随时看
扫一扫,用手机看文章
更加方便分享给朋友
➢海口观澜湖上东二区售楼处400-033-1899转接5888
➢海口观澜湖上东二区售楼处400-033-1899转接5888
➢来电可了解楼盘最新动态、房价、在售房源、交楼时间等信息!让你买的放心,住的舒心!
观澜湖·上东区Ⅱ区产品介绍
103-141㎡纯板式两梯两户精装新品即将发售。

上东区2区效果图
—【组团概况】—
【开发商】中国休闲产业的领航者--观澜湖集团
【占地面积】44616.19㎡
【建筑面积】42667.83㎡
【容积率】0.95
【产权年限】70年
【总楼栋数】11栋
【楼层总高】16+1层/17层
【总户数】364户
【地下车库】5、6、7、8、10,共201个停车位
【地上停车位】60个
【产品类型】高层住宅
【户型面积】
A户型,103.19-105.39㎡,三房两厅两卫;
B户型,121.87-122.41㎡,三房两厅两卫;
C户型,138.68-141.89㎡,四房两厅两卫。
—【首推房源】—

上东区2区分布图
首批推售:
2#、7#(A户型),66套。
12#(B户型),32套。
10#(C户型)32套。合计130套。
—【户型解析】—
【主力户型-A-三房两厅两卫】
建筑面积:约103-105㎡ 楼栋分布:2、7号楼
户型图

优化后,建筑面积约131㎡

户型亮点:精品居所,南北通透,两梯两户电梯入户,超大赠送,改造后建筑面积约131㎡,前后双阳台,超大阔景阳台,提升生活质感。
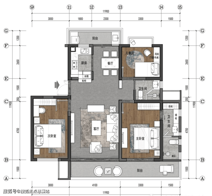
【主力户型-B-三房两厅两卫】
建筑面积:约121㎡ 楼栋分布:12号楼
户型图

优化后,建筑面积约159㎡

户型亮点:舒适美宅,南北通透,两梯两户电梯入户,超大赠送,改造后建筑面积约159㎡,前后双阳台,超大主人套房,舒适尊贵。
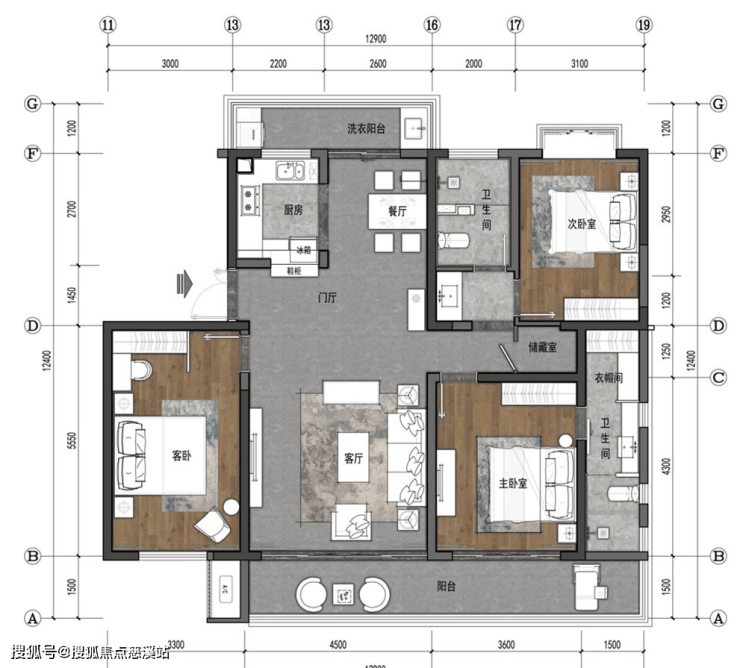
【主力户型-C-四房两厅两卫】
建筑面积:约138-141㎡ 楼栋分布:10号楼
户型图

优化后,建筑面积约170㎡

➢海口观澜湖上东二区售楼处400-033-1899转接5888
➢海口观澜湖上东二区售楼处400-033-1899转接5888
声明:本文由入驻焦点开放平台的作者撰写,除焦点官方账号外,观点仅代表作者本人,不代表焦点立场。
