海口星华德豪庭售楼处电话_预约看房_海口星华德豪庭楼盘详情-2025最新房价-户型图
扫描到手机,新闻随时看
扫一扫,用手机看文章
更加方便分享给朋友
➢海口星华德豪庭售楼处400-033-1899转接5888
➢海口星华德豪庭售楼处400-033-1899转接5888
➢来电可了解楼盘最新动态、房价、在售房源、交楼时间等信息!让你买的放心,住的舒心!
项目简介
【项目地址】:海口市龙昆南海德路
【总占地面积】:约2.49万㎡
【总建筑面积】:约14.26万㎡
【上璟组团】:创办空间
【楼层总高】:18层
【总户数】:144户
【交付标准】:毛坯
【交房时间】:2022年6月30日
【内部配套】:约5800平繁华潮流商业街
【户型面积】 :面积50-78m²
【梯 户 比】: 3梯9户
冻资10万锁房号
付款方式:一次性,按揭均可
每一个城区都有一个中芯,这不仅符合了“都市圈”的发展概念,也符合了城市居民的生活半径需求。星华·海德豪庭的确太值得这样的目光注视,雄踞“国贸CBD与国兴CBD”交汇板块,汇聚便捷交通、缤纷商业、教育医疗、生态公园等优渥配套,是崛起于海口的“CLD居住区”,昌茂花园、现代花园、昌茂澳洲园……这些海口历史上有名的“富人区”,全都盘踞于此。

【楼栋落位】
F栋总高18层,3-18层为创办空间,总户数144套。

交通位置图
执掌城芯主动脉,触手万象都会
鼎立龙昆南CLD,聚合城市资源与势能
四大商圈矩阵、三级甲等医疗、全龄教育、多维交通、四公园生态、活力人文,城市中轴的优渥资源环伺周围,汇聚海口核芯数十万人气,全面带动资产飞速升值。

配套优势
【周边配套】:
城芯大型商超:日月广场、上邦百汇城、友谊阳光城、新城吾悦广场、龙昆南大润发等;
省会疗养体系:中国人民解放军联勤保障部队第九二八医院、海南省人民医院(南沙分院)、海南省妇幼保健院、海口市中医院等;
省会生态体系:海口城区绿肺金牛岭公园、万绿园、红城湖公园、海口人民公园



户型图鉴赏
【户型平面分布】
3梯9户设计,5.4米层高,户户带有景观阳台,格局方正,灵动多变,满足空间的无限想象。

【户型装修示意】
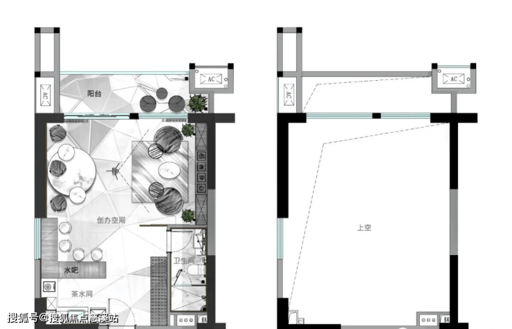
A户型 (建筑面积约)74㎡多功能创办空间↓
户型方正实用,空间利用率高
5.4米奢阔层高,百变功能随心打造
约5.35米大开间阔景阳台,风景作伴会客洽谈更从容
不限购不限贷,圆梦创业菁英远大抱负

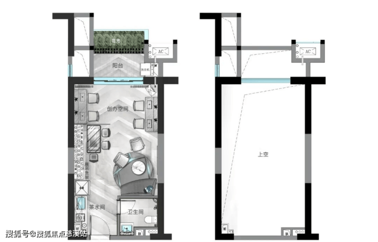
A-1户型 (建筑面积约)73㎡多功能创办空间↓
5.4米奢阔层高,打破一层不变商办体验
办公区、休憩区随心布置,百变空间随心而动
约5.4米大开间阔景阳台,采光通透,延展更多工作空间
不限购不限贷,置业投资新机遇

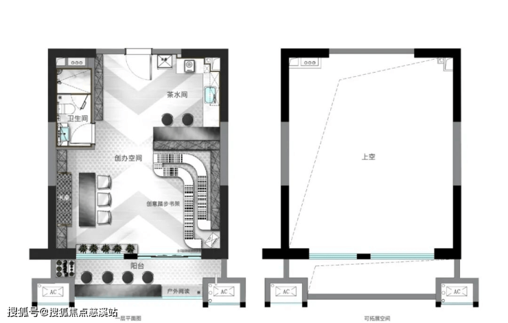
A-2户型 (建筑面积约)77㎡多功能创办空间↓
百变创办空间,兼具自用办公投资多元属性
5.4米奢阔层高,空间自由组合
约6.2米大开间阔景阳台,营造轻松舒适氛围
不限购不限贷,全能资产无门槛

A-3户型 (建筑面积约)75㎡多功能创办空间↓
百变创办空间,功能齐备动静分区
5.4米奢阔层高,打造多元创办需求
休闲区、娱乐区、办公区……享您所想
不限购不限贷,以租养贷低压力

B户型 (建筑面积约)51㎡多功能创办空间↓
5.4米层高创变空间,职场菁英的百变理想生活
休闲区、娱乐区、办公区随心组合,全能商办体验
阳台拓宽会客区空间,以茶待客、商务洽谈更自如
不限购不限贷,宜自用宜商办宜投资

样板间鉴赏



实景图
自贸港势不可挡,抢占置业机寓
2020年6月1日,中共中央国务院印发《海南自由贸易港建设总体方案》,2035年将建成具有较强国际影响力的高水平自由贸易港。国策所向,海南因自贸港不断开放营商环境,为海南的发展带来了磅礴推力,投资机会广阔。

空间自由转变,全星商办体验
匠筑(建筑面积约)50-78㎡百变创办空间,5.4米奢阔层高,空间自由转变,随心变换,休闲、社交、会客、办公满足都荟菁英时尚商务、百变生活的无限可能,擎领商务办公新体验。

编辑
➢海口星华德豪庭售楼处400-033-1899转接5888
➢海口星华德豪庭售楼处400-033-1899转接5888
声明:本文由入驻焦点开放平台的作者撰写,除焦点官方账号外,观点仅代表作者本人,不代表焦点立场。
