海口2025【聚焦楼盘】观澜湖星光里售楼处电话→来电预约看房→【观澜湖星光里营销中心】→楼盘详情→@最新房价@售楼处中心
扫描到手机,新闻随时看
扫一扫,用手机看文章
更加方便分享给朋友
🚩海口 观澜湖星光里
🚩观澜湖星光里售楼处电话:400-033-1899转接3333【营销中心】
🚩观澜湖星光里售中心电话:400-033-1899转接3333【已认证】
🌆 全景户型图鉴 | 🏙️ 城市地标解析 | 🌟 典藏房源速递
🛍️ 繁华配套指南 | 🏛️ 艺术样板间巡礼 | 💰 备案价透明公示


观澜湖·星光里
观澜湖·星光里项目资料
基本资料
总用地面积: 约 28333.64 ㎡
总建筑面积:约 43992.62 ㎡
容积率: 1.2
绿地率: 26.8%
停车位: 340 个
总户数: 298 套(洋房 274 套,叠墅 24套)
产品:纯板式花园洋房
性质:70年产权住宅
项目区位

观澜湖·星光里为位于海口市观澜湖度假区,距离高速口1.5公里,距离东站8公里,距离机场15公里。
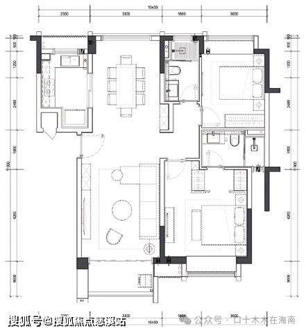
洋房户型




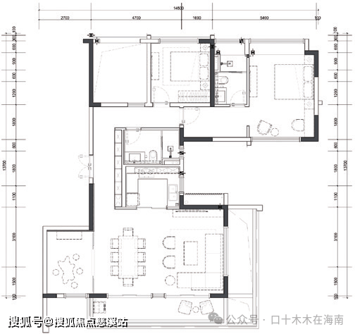
叠墅户型
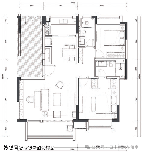
下叠户型


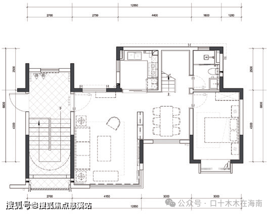
上叠户型


🚩海口 观澜湖星光里
🚩观澜湖星光里售楼处电话:400-033-1899转接3333【营销中心】
🚩观澜湖星光里售中心电话:400-033-1899转接3333【已认证】
🌆 全景户型图鉴 | 🏙️ 城市地标解析 | 🌟 典藏房源速递
🛍️ 繁华配套指南 | 🏛️ 艺术样板间巡礼 | 💰 备案价透明公示
声明:本文由入驻焦点开放平台的作者撰写,除焦点官方账号外,观点仅代表作者本人,不代表焦点立场。
