#2025权威出品#太原保利大都汇售楼处发布@保利大都汇售楼处热线

搜狐焦点慈溪站 2025-09-06 10:19:28
用手机看
扫描到手机,新闻随时看

扫一扫,用手机看文章
更加方便分享给朋友

太原保利大都汇 售楼处电话:400-100-1299转5888 网上售楼中心〢欢迎来电咨询〢1v1销售专业讲解

太原保利大都汇

售楼处电话:400-100-1299转5888

网上售楼中心〢欢迎来电咨询〢1v1销售专业讲解

保利大都汇最新货量✅(10月31日)

160户型:

34层(顶层)

单价15200,总价245万

1层(毛坯)

单价13600,总价210万

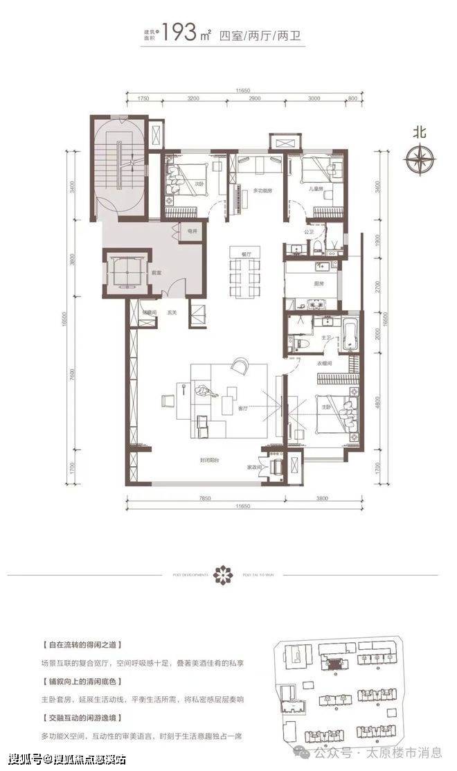
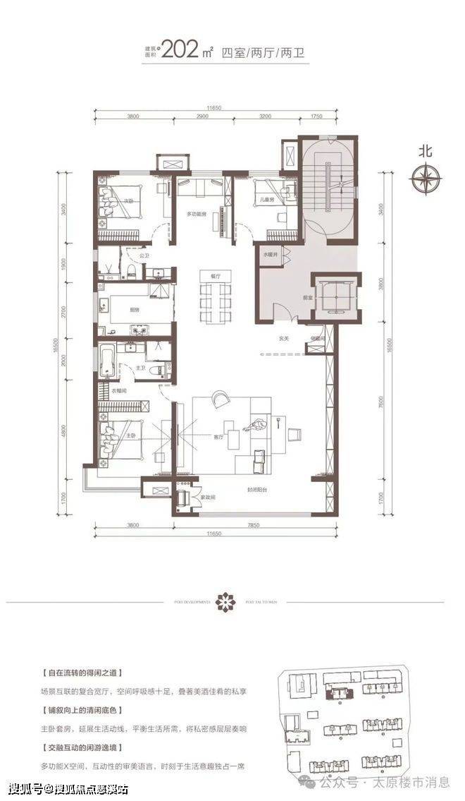
193户型、202户型

楼层可选(总高16层)

单价1.5-1.8,总价约280-360万

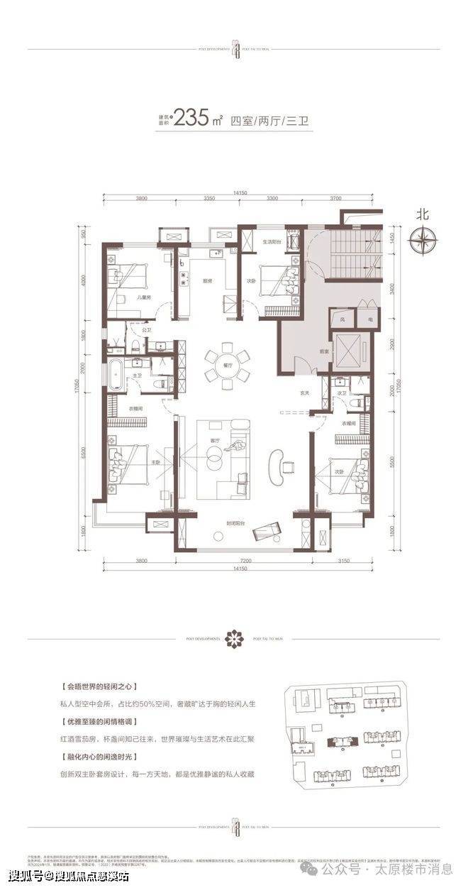
230户型、236户型

楼层可选(总高28层)

单价1.58-1.88万

度假式园林实景已呈现

建面约189-235㎡中芯大平层

⚜️亲贤街 地铁旁 城市封面

保利大都汇小区一共有六栋住宅楼,总户数为928户。容积率4.5,相对比较高,绿化率25%,楼间距45米,物业由保利物业自持,物业费2.8元。地下车位1258个,车位配比1:1.1。户型122平到160平,精装修,交房时间为2025年10月。

保利大都汇项目建筑设风格为现代极简,采用落地窗设计,玻璃幕墙,提高住宅美观。外立面颜色采用莫兰迪高级灰系列,浅白、浅灰色交替使用,空间层次感,立体感突出。

保利大都汇项目优势分析:

首先,地段好,周边生活配套成熟,交通,教育,医疗等方面齐全。

其次,靠谱,央企保利开发建设,交房有保障,后期物业服务好。

最后,小区风格高档,门槛较高,园林设计好。地段稀缺

声明:本文由入驻焦点开放平台的作者撰写,除焦点官方账号外,观点仅代表作者本人,不代表焦点立场。