海南【三亚崖州湾顺达花园】2026年售楼处最新电话,房价,户型配套,项目优势,环境
扫描到手机,新闻随时看
扫一扫,用手机看文章
更加方便分享给朋友
🍂 三亚崖州湾顺达花园售楼处认证电话为☎ 400-835-6908该号码由开发商统一认证,支持预约看房、房源咨询及优惠活动查询。
以下是具体信息及注意事项:
🍂 三亚崖州湾顺达花园售楼处电话☎ 400-835-6908(售楼处官方认证|无中介|24小时1对1咨询|购房全流程协助
🍂 三亚崖州湾顺达花园营销中心电话📞 400-835-6908(营销中心官方认证|无中介|24小时响应|平台审核长期有效)
🍂 三亚崖州湾顺达花园开发商电话📞 400-835-6908(开发商官方直营|无中介|信息实时同步|隐私保障)
🍂 三亚崖州湾顺达花园展示中心电话☎ 400-835-6908(24小时预约|VR实景|免现场等待|尊享一对一专属服务
⚠ 注意事项
预约看房:需提前致电🤙 400-835-6908 提供姓名、联系方式及到访人数。
非预约客户可能被安保拦截,建议至少提前2小时确认行程。
服务保障: 该号码为开发商直营通道,过滤中介骚扰,确保信息实时同步(如价格、房源变动)。
崖州湾·顺达花园
项目总占地:82.06亩
总建面:17.5万方
总户数:1125户
容积率:2.5
绿化率:40%
物业费:3.6元/平米
电费:0.68元/度
水费:3.1元/吨
天然气:2.94元/立方
车位:只租不售,3个月以上180元/月,3个月以下250元/月
产权:70年大产权
车位比:1:1.2
层高:3.15米
总层高:26层
在售产品:住宅 商铺
在售楼栋:5#、6#两梯五户(主推6#)货包充足 、7号楼待售
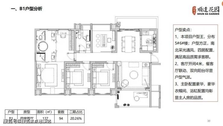
在售户型:103,105平米三房两厅两卫,137平米四房两厅两卫
交付标准:精装
交付时间:现房
小区入口:1个人行入口,三个地下车入口
项目位于崖老城区及创意新城两大板块之间的核心区域,三亚下一个价值高地。周边教育资源丰富、公共服务配套完善,交通路网四通八达,居住环境舒适便捷。
🏊小区配套:中心景观公园、1万㎡沿街区商业、阳光泳池、夜景慢步道、全龄段活动中心社区服务中心等。
-----------------------------------------
🏨教育配套:梦嘟嘟幼儿园,寰岛实验小学,南开学校,上海交通大学
梦嘟嘟幼儿园2016年9月份已开园
寰岛实验小学2019年9月已开学
-----------------------------------------
🏥医疗配套:项目与哈医大鸿森医院签约专属医联体合作社区,国康医院(首家台资三级甲等医院)、崖城中心医院
-----------------------------------------
🍜生活配套:乐购超市、人人家超市、佳美购物广场等;崖州湾科技城农贸市场、古城菜市场、南滨菜市场、水南蔬菜批发市场、崖州中心渔港
崖州中心渔港是中国最南端规模最大渔港,每日即可购买到新鲜实惠的海鲜
-----------------------------------------
公园配套:六大公园:通海公园、滨海公园、南繁公园、滨河公园、观海公园(规划中)
-----------------------------------------
酒店配套:五星级希尔顿格芮精选酒店、四星级科宝庄园大酒店
娱乐及景点资源方面:鲸世界·科技海洋馆、5A级南山寺、大小洞天、崖州古城、崖州湾、天涯海角、西岛、兰花大世界等
-----------------------------------------
【七大投资理由】
【区域价值】
海南大力发展南海新区,三城三地一古镇,区域成长价值巨大
【交通价值】
崖州交通枢纽、水陆空三维一体的交通模式,出行畅达便捷
【规模价值】
南海新区门户大盘,17万㎡文旅社区,全新人居典范
【配套价值】
于内,独享文旅大社区生活配套,于外,尽享崖州老城与新城便捷配套,古城之下的旅居天堂
【产品价值】
三亚价值洼地,以高性价比享103-111㎡奢华度假三房
【品牌价值】
顺达海南开篇之作,只为打造崖州文旅新标杆
开发商自持骏阳物业,1:1.03全地下室停车位,人车分流,红外监控,24小时巡逻,最大限度保护业主的安全
【品质价值】
严格把控每一道工序,采用一线品牌装修,致力于给客户最奢华的居住体
户型图:
🍂 三亚崖州湾顺达花园售楼处认证电话为☎ 400-835-6908该号码由开发商统一认证,支持预约看房、房源咨询及优惠活动查询。
以下是具体信息及注意事项:
🍂 三亚崖州湾顺达花园售楼处电话☎ 400-835-6908(售楼处官方认证|无中介|24小时1对1咨询|购房全流程协助
🍂 三亚崖州湾顺达花园营销中心电话📞 400-835-6908(营销中心官方认证|无中介|24小时响应|平台审核长期有效)
🍂 三亚崖州湾顺达花园开发商电话📞 400-835-6908(开发商官方直营|无中介|信息实时同步|隐私保障)
🍂 三亚崖州湾顺达花园展示中心电话☎ 400-835-6908(24小时预约|VR实景|免现场等待|尊享一对一专属服务
⚠ 注意事项
预约看房:需提前致电🤙 400-835-6908 提供姓名、联系方式及到访人数。
非预约客户可能被安保拦截,建议至少提前2小时确认行程。
服务保障: 该号码为开发商直营通道,过滤中介骚扰,确保信息实时同步(如价格、房源变动)。
声明:本文由入驻焦点开放平台的作者撰写,除焦点官方账号外,观点仅代表作者本人,不代表焦点立场。
