三亚艺海棠售楼处电话_预约看房_三亚艺海棠楼盘详情-2025最新房价-户型图

搜狐焦点慈溪站 2025-10-14 13:46:43
用手机看
扫描到手机,新闻随时看

扫一扫,用手机看文章
更加方便分享给朋友

➢三亚艺海棠售楼处400-033-1899转接5888 ➢三亚艺海棠售楼处400-033-1899转接5888

➢三亚艺海棠售楼处400-033-1899转接5888

➢三亚艺海棠售楼处400-033-1899转接5888

➢来电可了解楼盘最新动态、房价、在售房源、交楼时间等信息!让你买的放心,住的舒心!

国家海岸艺术综合体-艺海棠

项目地址:海南省三亚市海棠区海棠湾,开发商:海南中海三邦友房地产,物业:艺生活,占地面积:500亩(艺术前区约240亩、商业综合体约130亩、艺术美宅约115亩),建筑面积:约50万㎡(艺术馆及艺术商业区约30万㎡、艺术美宅建面约17万㎡),交房时间:现房、准现房,容积率:0.8,绿化率:高于60%,产权年限:70年,总楼栋户数:17栋 共800余户,层高:16层 (3梯4户、1梯1户),在售房源 :6.7.10.11.12.13#,停车位:超1:1,912个车位,在售户型:95㎡ 两房两厅两卫

168㎡ 三房两厅三卫

220㎡ 五房两厅三卫

物业费:7.8元/㎡

管家式服务业主

三亚艺海棠,落址于“国家海岸”海棠湾的核心腹地,近邻32家国际酒店,亚特兰蒂斯、国际免税城、301医院、人大附中、海中海高尔夫球场等千亿湾区配套。项目是三亚乃至海南自贸港,纯粹以艺术为核心,从“旅游三亚”到“艺术三亚”转型升级4.0版的里程碑项目。

鸟瞰图

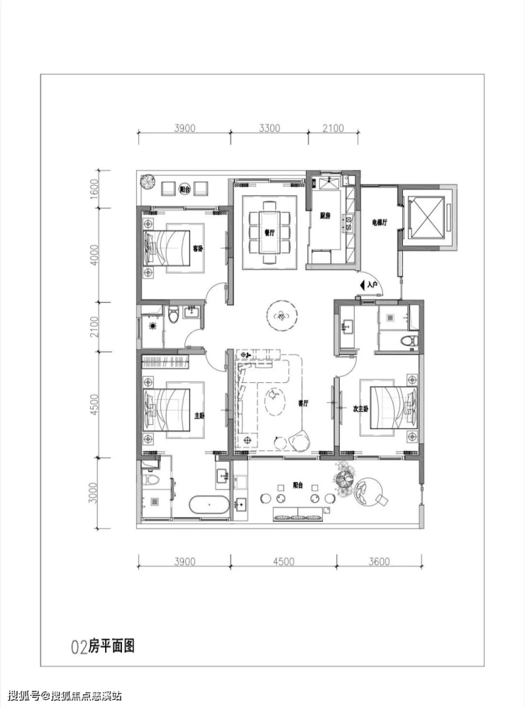
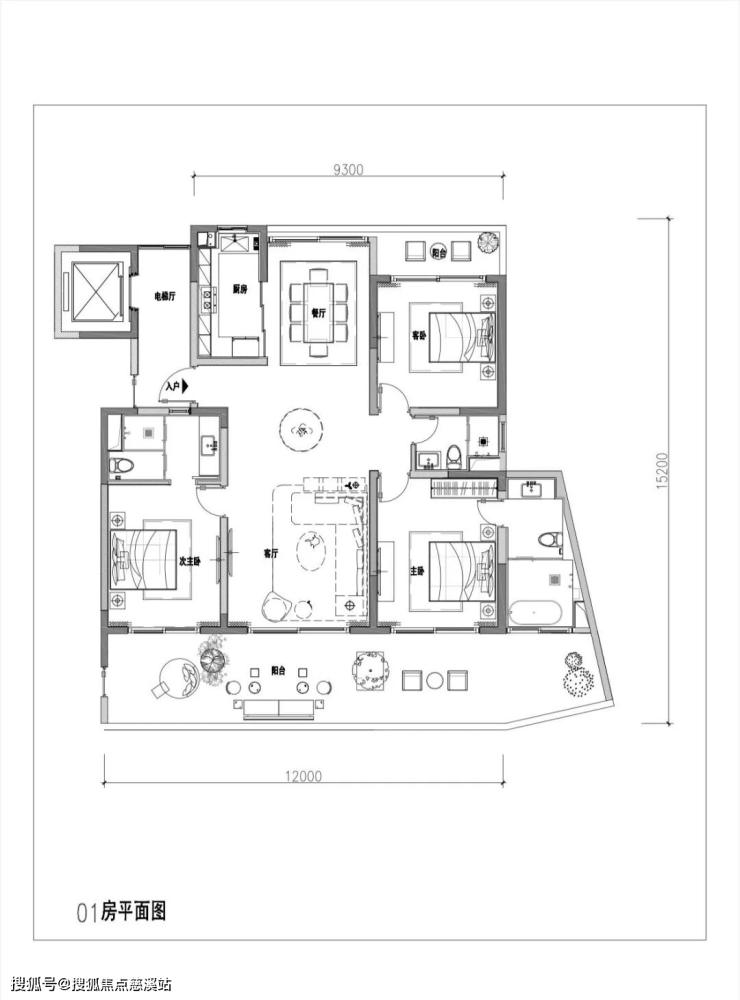
艺术美宅:

【主力户型】

建筑面积:约95㎡

户型:两房两厅两卫

建筑面积:约168㎡

户型:三房两厅三卫

建筑面积:约220㎡

户型:五房两厅三卫

➢三亚艺海棠售楼处400-033-1899转接5888

➢三亚艺海棠售楼处400-033-1899转接5888

声明:本文由入驻焦点开放平台的作者撰写,除焦点官方账号外,观点仅代表作者本人,不代表焦点立场。