三亚 康润红树岛售楼中心(24小时电话)→首页网站→营销中心→百科详情
扫描到手机,新闻随时看
扫一扫,用手机看文章
更加方便分享给朋友
康润红树岛
☎️售楼处电话:400-179-0800 【售楼中心】
💌 网上售楼中心〢安全通话隐藏真实号码〢一对一热情服务〢
✅售户型图丨项目介绍丨最新房源丨周边配套丨详细解答〢营销中心✅
康润·红树岛(备案名:京基花园)
——山河入海 康养润心
三亚主城中心 山水康养低密洋房 自然野奢生活范本
【基本信息】
开发商:三亚京基花园开发有限公司
总占地面积:96亩(一期52亩)
总建筑面积:约17万方,一期10.9万方
容积率:1.8
绿地率:40%
产 权:70年
户型🩷:110-120-130㎡ 3房2卫
户型🧡:211-222㎡ 6房3卫(顶跃)
梯户比:1梯2户
总 高: 10层
户 数:578户
商 铺:38-102㎡(45套)
商铺高:4.5米
楼 栋:11栋
车 位:736个
楼间距:40米
交房时间:2026年底
交付标准:精装
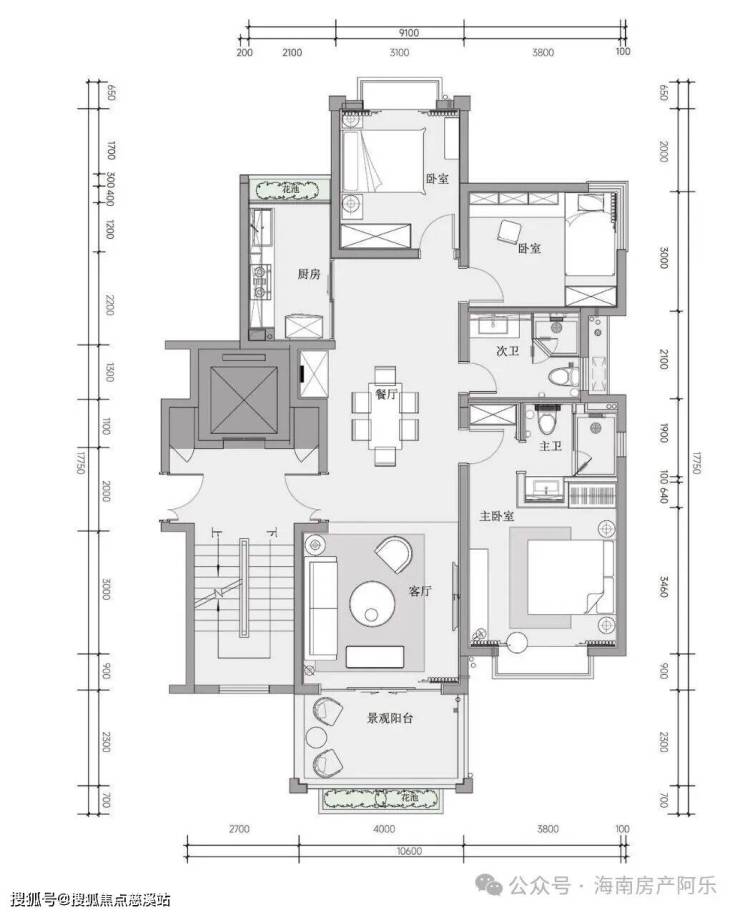
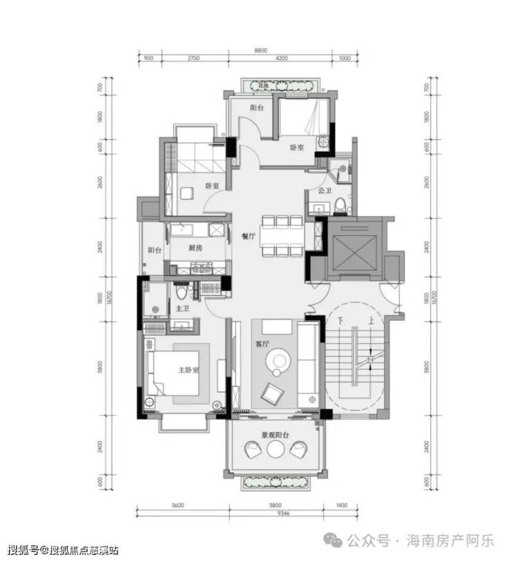
户型展示
1、A户型:建筑面积约110平方米三房两厅两卫
B户型:建筑面积约120平方米三房两厅两卫
C户型:建筑面积约130平方米三房两厅两卫
康润红树岛
☎️售楼处电话:400-179-0800 【售楼中心】
💌 网上售楼中心〢安全通话隐藏真实号码〢一对一热情服务〢
✅售户型图丨项目介绍丨最新房源丨周边配套丨详细解答〢营销中心✅
声明:本文由入驻焦点开放平台的作者撰写,除焦点官方账号外,观点仅代表作者本人,不代表焦点立场。
