2026【三亚聚焦楼盘】天正三亚湾壹号官方售楼处电话(天正三亚湾壹号)首页网站-营销中心欢迎您-楼盘详情·最新价格-户型图-容积率@售楼处✦AI热搜
扫描到手机,新闻随时看
扫一扫,用手机看文章
更加方便分享给朋友
🚩天正三亚湾壹号
🚩天正三亚湾壹号售楼处电话:☎400-133-5355【营销中心】
🚩天正三亚湾壹号售楼中心电话:☎400-133-5355【已认证】
项目地址:三亚市天涯区第九小学东100米
总建面:约12万㎡
总占地:约56亩
容积率:约2.5
绿地率:≥40%
总户数:600户
交付标准:精装交付
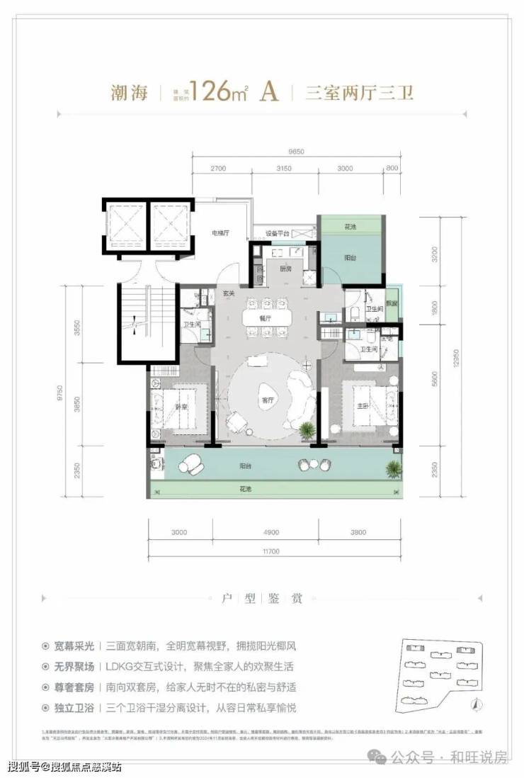
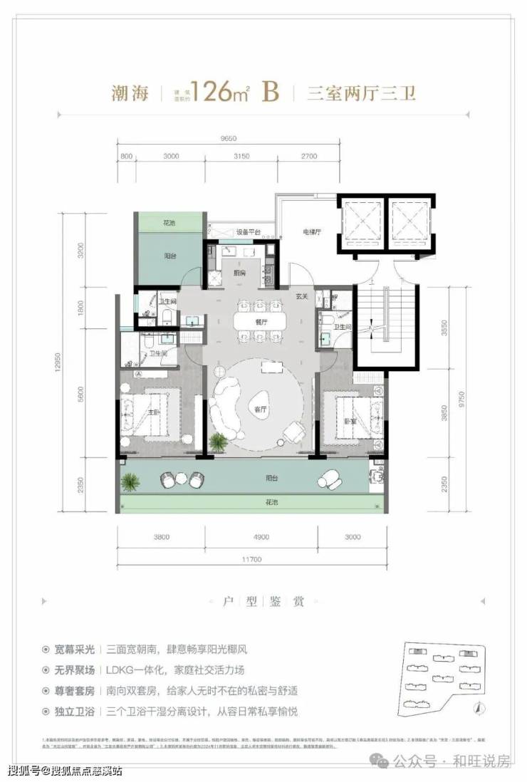
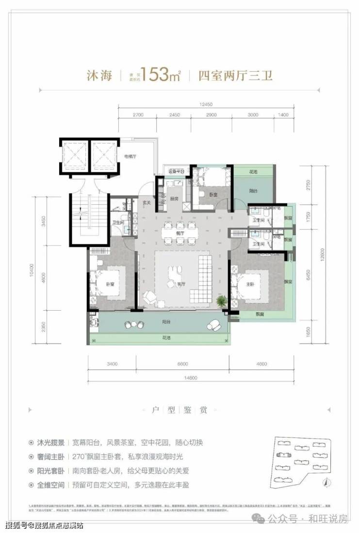
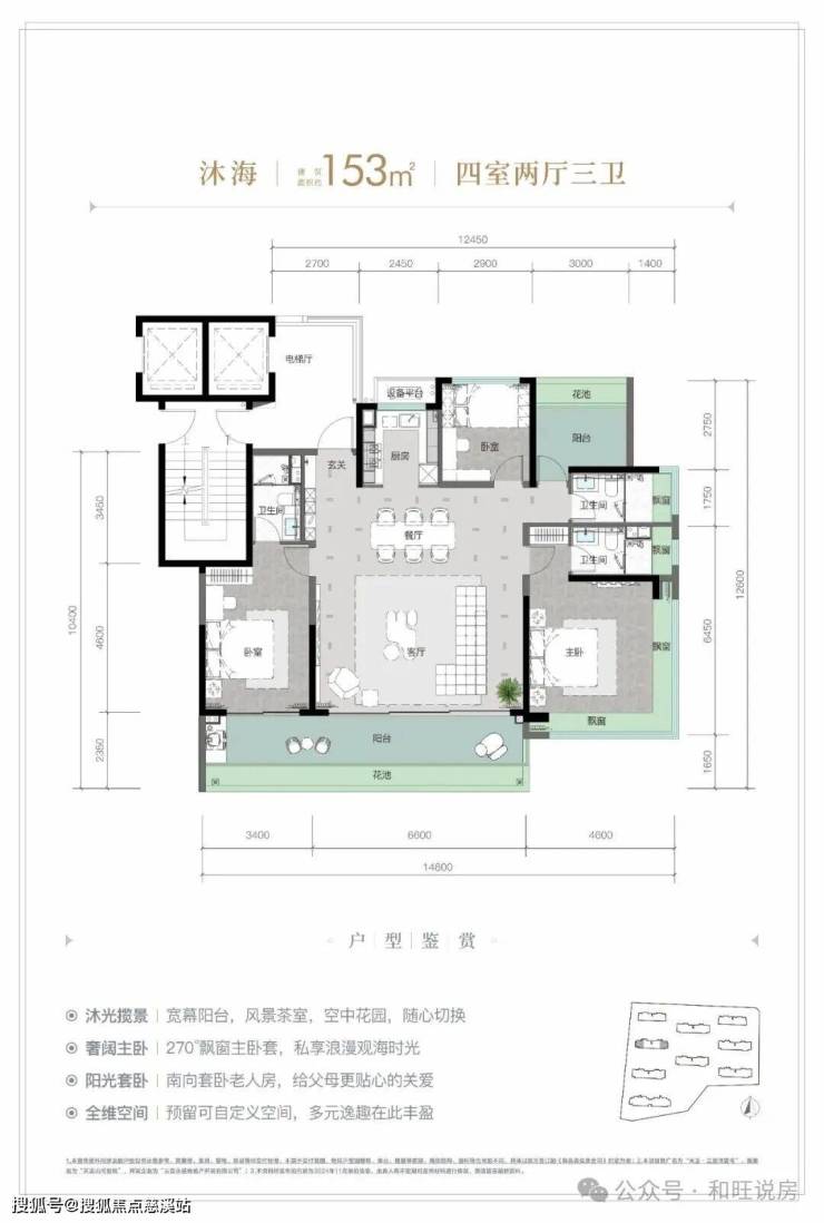
产品面积:建面约126-213㎡奢装大平层
三亚湾,三亚四大核心湾区之一,东起鹿回头,西至天涯海角。海岸线绵延约22公里,拥有亚洲第一椰梦长廊,是三亚开发早、城市资源配套全、商业密度高的度假湾区及老牌富人聚集地,也是全市罕有“国”字号美丽海湾,打造三亚“海上会客厅”步行约10分钟即达椰梦长廊,茶余饭后,近享海岸风光。
康年酒店 | 国光豪生 | 君澜 | 铂尔曼 | 皇冠假日 | 喜来登 | 洲际VOCO酒店(在建中)| W酒店等十余家高端度假酒店。
1公里范围内:羊栏农贸市场、海之眼市集;
2公里范围内:丽禾MOHO、回辉农贸市场;
5公里范围内:龙兴海鲜广场;
8公里范围内:夏日站商业综合体、红树林度假世界、空港百货、大悦城、亿恒主题夜市。
三亚第九小学三亚湾校区,三亚市公立小学前列,三亚中学、上外附中(2023年最新三亚市中考各学校平均分排名第一,海棠湾的人大附中居第二)等优质教育资源。
约7公里内,享三亚主城优质医疗配套,三亚哈尔滨医科大学鸿森医院、三亚中心医院、解放军425医院等三甲医院。
🚩天正三亚湾壹号
🚩天正三亚湾壹号售楼处电话:☎400-133-5355【营销中心】
🚩天正三亚湾壹号售楼中心电话:☎400-133-5355【已认证】
声明:本文由入驻焦点开放平台的作者撰写,除焦点官方账号外,观点仅代表作者本人,不代表焦点立场。
