三亚 天正三亚湾壹号(售楼处) 官方网站-销售中心-环境-户型-价格-地址-楼盘详情-配套-电话-交房时间-配套-电话-交房时间
扫描到手机,新闻随时看
扫一扫,用手机看文章
更加方便分享给朋友
天正三亚湾壹号
☎️售楼处电话【已认证】🌈 :400-179-0800 ♐
☎️营销中心电话【已认证】🌈 :400-179-0800 ♐
🌴温馨提示:本项目采用预约制,前来营销中心请提前拨打400热线电话预约,感谢您的配合🌴
天正地产集团,房地产开发一级资质企业,业务覆盖房地产开发、园林景观、物业服务等多个领域,产品涵盖高端改善住宅、精品公寓、商业综合体等多种物业形态。
项目地址:三亚市天涯区第九小学东100米
总建面:约12万㎡
总占地:约56亩
容积率:约2.5
绿地率:≥40%
总户数:600户
交付标准:精装交付
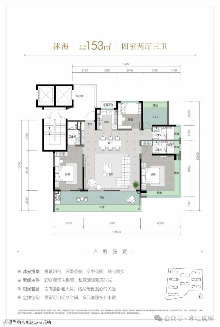
产品面积:建面约126-213㎡奢装大平层
天正三亚湾壹号
☎️售楼处电话【已认证】🌈 :400-179-0800 ♐
☎️营销中心电话【已认证】🌈 :400-179-0800 ♐
🌴温馨提示:本项目采用预约制,前来营销中心请提前拨打400热线电话预约,感谢您的配合🌴
声明:本文由入驻焦点开放平台的作者撰写,除焦点官方账号外,观点仅代表作者本人,不代表焦点立场。
