广州保利天曜楼盘怎么样→保利天曜样板间预约电话→保利天曜位置怎么样→学区配套→保利天曜备案价查询→楼盘百科详情
扫描到手机,新闻随时看
扫一扫,用手机看文章
更加方便分享给朋友
❤️❤️广州保利天曜
售楼处电话:400-033-1899转接8000【已认证】
💜💜广州保利天曜售楼中心电话:400-033-1899转接8000【官方】
💛💛广州保利天曜样板间预约热线:400-033-1899转8000【营销中心】
💚💚广州保利天曜备案价查询丨优惠政策丨详细解答丨在售房源丨在售户型图丨项目介绍丨周边配套丨VR看房丨楼盘图丨沙盘图丨位置图丨配套图丨售楼处地址丨足不出户丨销售1V1讲解 如有问题欢迎来电咨询,可预约销售人员,专业一对一热情服务,让您用专业眼光去买房
保利天曜——户型图爆光,保利在天河员村绢麻厂的项目!
最新消息,保利天曜南地块(即大地块)将主打135-205平望江板楼大户型。
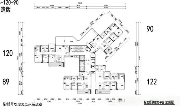
从上图可以看到北地块规划3栋住宅,有2梯3户和2梯4户两种布局。1栋有两条梯腿为90平小户型,还有两条梯腿是120平产品 ,2栋和3栋均为120平。地块容积率3.5,预计建成40层高的超高层。
只有84套的90平户型稀缺,吹风价是8+万/㎡+-,这样算一下7**万+-,对预算有限又想进核心板块的家庭很有吸引力。
保利天曜
北地块90平户型图
1#户型平面图
北地块120平户型图:
南地块(大地块)140平户型:
南地块170㎡户型
南地块205平户型:
✅广州保利天曜
售楼处电话:400-033-1899转接9999【营销中心】
☎️保利天曜售楼中心电话:400-033-1899转接9999【已认证】
✅户型图丨项目介绍丨最新房源丨周边配套丨售楼处地址丨样板间丨备案价
声明:本文由入驻焦点开放平台的作者撰写,除焦点官方账号外,观点仅代表作者本人,不代表焦点立场。
